查看完整案例


收藏

下载

翻译
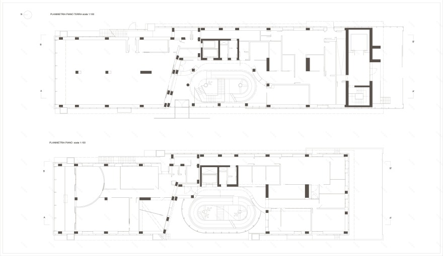
Un intervento di scala urbana che punta a rigenerare un'area centrale del complesso produttivo e terziario alle porte di Macerata. L'intenzione è quelladi realizzare un grande centro direzionale e commerciale atto adospitare la sede di un'importante azienda del territorio specializzata nella vendita di prodotti tecnologici, assistenza eformazione. Il concept nasce dalla necessità di rendere l'edificioun'icona dello spirito imprenditoriale caratterizzato da una fortepropensione alla dinamicità e proiettato verso il futuro purrestando legato al territorio. L'edificio risponde dunque ad undoppio registro. Da una parte le forme sinuose e saettanti realizzate con materiali tecnologici definiscono il lato moderno dell'azienda,dall'altra la presenza di rimandi all'attaccamento alle proprieradici consolida il rapporto con il proprio passato. É l'esempio dei due grandi alberi all'ingresso che sostengono la rampa di accesso alpiano sormontati da una grande cupola in vetro che si staglia sul paesaggio circostante come un oggetto misterioso atterrato sopra la struttura. L'edificio si compone di due strutture separate che accolgono le diverse funzioni che costituiscono il corpo aziendale.Queste strutture sono unite tra di loro da una passerella sospesa chele rende un unico grande complesso.
客服
消息
收藏
下载
最近





















