查看完整案例


收藏

下载
© Hyosook Chin
(三)舌骨下巴
架构师提供的文本描述。客户要求Villa Jeju是Villa Mangwon的变体,这也是类似名称的原因。有必要根据济州岛的地理特点,创造一个更先进、更进化的物种,同时保持堆叠的基本形式。韩国有比济州岛更古怪的地方吗?一座很可能位于地中海地区的白色建筑,仅仅因为它以济州岛本土玄武岩石为特色,就能获得济州岛独特的特色吗?这个项目是从这些简单而实际的问题开始的。有一些元素与济州岛有着独特的联系,并被视为该岛的特征:Dol hareubang(由多孔玄武岩雕刻的大型岩石雕像)、济州岛橘子、海野(女潜水员)等。
Text description provided by the architects. The client requested Villa Jeju to be a variation of Villa Mangwon, which is the reason for similar namesake. It was necessary to create a more advanced and evolved species in response to the geographical character of Jeju Island while maintaining the fundamental form of stacking. Is there any place in Korea that has more eccentric character than Jeju Island? Could a white building that is likely to be in the Mediterranean location acquire the unique characteristics of Jeju Island just because it features walls made of indigenous basalt stones of Jeju Island? The project began with these simple but practical questions. There are a number of elements that are uniquely associated with Jeju Island and regarded as the identity of the island: Dol hareubang (large rock statue carved from porous basalt), Jeju tangerine, Haenyeo (female divers) and others.
Text description provided by the architects. The client requested Villa Jeju to be a variation of Villa Mangwon, which is the reason for similar namesake. It was necessary to create a more advanced and evolved species in response to the geographical character of Jeju Island while maintaining the fundamental form of stacking. Is there any place in Korea that has more eccentric character than Jeju Island? Could a white building that is likely to be in the Mediterranean location acquire the unique characteristics of Jeju Island just because it features walls made of indigenous basalt stones of Jeju Island? The project began with these simple but practical questions. There are a number of elements that are uniquely associated with Jeju Island and regarded as the identity of the island: Dol hareubang (large rock statue carved from porous basalt), Jeju tangerine, Haenyeo (female divers) and others.
© Hyosook Chin
(三)舌骨下巴
从那些欢迎游客来到济州机场的雕塑到小学文具商店卖的橡皮擦,他们都是文化偶像,到处都是济州岛。如果可以将它们用作建筑元素呢?我们可以看到罗马诸神在罗马支撑古代建筑的雕像,那么为什么我们不能让jju的标志性的dolhareubang雕像支撑jeju的建筑呢?成功地执行了这一过程,它可以为从朝鲜族主义中解放出来的话语的某些有区别的范围提供各种可能性,这些范围在道德的前提下是相对严重的,而不是概念上和纯粹的层面。为此,首先要注意支柱。有许多建筑元素,但支柱在区分体系结构和其他人造对象方面发挥着关键作用。
From sculptures that welcome visitors upon their arrival at the Jeju airport to the erasers sold at elementary school stationery stores, they are cultural icons and omnipresent all over Jeju Island. What if they can be used as an architectural element? We can see statues of Roman gods supporting ancient buildings in Rome, then why can’t we have Jeju’s iconic Dol hareubang statues to support buildings in Jeju? Successfully implemented, it could present possibilities for somewhat differentiated scopes of the discourse freed from the Korean regionalism which had been relatively serious under the premise of ethics within a rather conceptual and pedantic level. To that end, attention was first given to pillars. There are a number of architectural elements, but pillars play a key role in differentiating architecture from other man-made objects.
From sculptures that welcome visitors upon their arrival at the Jeju airport to the erasers sold at elementary school stationery stores, they are cultural icons and omnipresent all over Jeju Island. What if they can be used as an architectural element? We can see statues of Roman gods supporting ancient buildings in Rome, then why can’t we have Jeju’s iconic Dol hareubang statues to support buildings in Jeju? Successfully implemented, it could present possibilities for somewhat differentiated scopes of the discourse freed from the Korean regionalism which had been relatively serious under the premise of ethics within a rather conceptual and pedantic level. To that end, attention was first given to pillars. There are a number of architectural elements, but pillars play a key role in differentiating architecture from other man-made objects.
© Hyosook Chin
(三)舌骨下巴
它们是最基本的作品,被称为识别不同时代历史风格的标志性符号。在这一背景下,采用了地域性和象征性的,但普通和不苛求的物体,如Dol hareubang和济州橘子,以发挥更高的支柱作用,并作为整个建筑的基本组成部分。因此,这种直接和庸俗的结果可以为公众所熟悉和相关。杜尔哈鲁邦塑像被放置在入口的一楼,似乎是轻轻地支撑在它的头上的混凝土板。它创造了第一印象,欢迎客人作为门户。另一边的圆盘状墙在地面和建筑物之间被压扁,造成几何张力,并确保底层单元的隐私。
They are fundamental pieces and have come to be referred to as an iconic symbol that identifies historic styles for different eras. Within that context, local and symbolic, but ordinary and undemanding objects such as Dol hareubang and Jeju tangerine were adopted to play an elevated role of pillars and serve as essential components of the whole building. As a result, this direct and kitsch outcome could be familiar and relatable to the general public. Dol hareubang statue is placed on the ground floor by the entrance and appears to be lightly supporting the concrete slab on its head. It creates the first impression and welcomes guests as the gateway. The disc-shaped wall on the other side is slighted wedged between the ground and the building creating geometric tension as well as ensuring privacy for the unit on the ground floor.
They are fundamental pieces and have come to be referred to as an iconic symbol that identifies historic styles for different eras. Within that context, local and symbolic, but ordinary and undemanding objects such as Dol hareubang and Jeju tangerine were adopted to play an elevated role of pillars and serve as essential components of the whole building. As a result, this direct and kitsch outcome could be familiar and relatable to the general public. Dol hareubang statue is placed on the ground floor by the entrance and appears to be lightly supporting the concrete slab on its head. It creates the first impression and welcomes guests as the gateway. The disc-shaped wall on the other side is slighted wedged between the ground and the building creating geometric tension as well as ensuring privacy for the unit on the ground floor.
© Hyosook Chin
(三)舌骨下巴
以济州岛传统私人住宅和棚子常用的泥砌成的玄武岩石完成后,这面圆盘状的墙让人想起济州岛著名的橘子。在海边,一根玄武岩石柱和一棵老树干并排立着,互相对比。这根由坚实的玄武岩石制成的柱子在起居室底层的中间有点儿陌生,引发了熔岩从窗户渗出的错觉。当支柱作为内部的焦点时,位于停车场的树干扮演着一个有趣的助手的角色。除了其设计意图外,这两根柱子还发挥着重要的功能作用,包括从屋顶和楼上的露台上下来的排水管。
Finished with mud-plastered basalt stones which are commonly used for traditional private houses and sheds in Jeju, this disc-shaped wall reminds of Jeju’s famous tangerines. On the ocean facing side, a pillar made of basalt stones and an old tree trunk stand in juxtaposition while contrasting each other. The pillar made of solid basalt stone stands a bit unfamiliar in the middle of the living room on the ground floor, triggering an illusion of a lava flow seeping through the window. While the pillar acts as a focal point of the interior, the tree trunk located by parking garage takes on the role of a playful sidekick. In addition to their design intention, the two pillars perform an important functional role by embracing the drain pipes running down from the roof and terraces on the upper floors.
Finished with mud-plastered basalt stones which are commonly used for traditional private houses and sheds in Jeju, this disc-shaped wall reminds of Jeju’s famous tangerines. On the ocean facing side, a pillar made of basalt stones and an old tree trunk stand in juxtaposition while contrasting each other. The pillar made of solid basalt stone stands a bit unfamiliar in the middle of the living room on the ground floor, triggering an illusion of a lava flow seeping through the window. While the pillar acts as a focal point of the interior, the tree trunk located by parking garage takes on the role of a playful sidekick. In addition to their design intention, the two pillars perform an important functional role by embracing the drain pipes running down from the roof and terraces on the upper floors.
济州岛别墅呈现出一种典型的双侧对称堆叠形式,但它再次颠覆了“堆叠屋”的类型,因为它看上去不稳定,而且由于放置在底层的物体而显得有点可笑。放置窗户的方法是理解济州别墅的另一个关键因素。这种对称不仅适用于水平方向,也适用于垂直方向。然后地心引力的方向迷失了方向,建筑物像玩具一样轻轻地盘旋着。面对海洋的高度被设计成一个透明的玻璃立面和梯田,以最大限度地利用其位置所允许的海洋景观。对面的立面是一块没有露台的小开口的砖墙立面,因此建筑物本身面向海洋。
Villa Jeju shows a firmly stacked form with the classical bilateral symmetry, but it overturns again the type of ‘stacked house’ as it looks unstable and slightly ridiculous due to the objects placed on the ground floor. The way of placing windows is another key element to understand Villa Jeju. They are laid on the top of slabs, but also hung on the bottom of slabs, thus the symmetry could be applicable to not only horizontal but also vertical orientation. Then the direction of gravity gets disoriented and the building hovers lightly like a toy. The elevation facing the ocean was designed to have a transparent glass facade with terraces to maximize the ocean view granted by its location. The opposite elevation features a brick facade with small openings without terraces and thus the building itself faces the ocean.
Villa Jeju shows a firmly stacked form with the classical bilateral symmetry, but it overturns again the type of ‘stacked house’ as it looks unstable and slightly ridiculous due to the objects placed on the ground floor. The way of placing windows is another key element to understand Villa Jeju. They are laid on the top of slabs, but also hung on the bottom of slabs, thus the symmetry could be applicable to not only horizontal but also vertical orientation. Then the direction of gravity gets disoriented and the building hovers lightly like a toy. The elevation facing the ocean was designed to have a transparent glass facade with terraces to maximize the ocean view granted by its location. The opposite elevation features a brick facade with small openings without terraces and thus the building itself faces the ocean.
© Hyosook Chin
(三)舌骨下巴
在其中包含排水管,梯田的列被阳极化铝薄板覆盖。这些柱子上天空的色彩的微妙反射提供了视觉愉悦,从客厅到海洋的视线。在济州岛旧镇与传统建筑共振的白色灰泥的橙色砖和水平带与传统建筑共振,使建筑高度可调节。楼层平面具有一个简单的A-B-A-B-A“”类型。两个房屋单元被划分为"A在其中存在诸如电梯和楼梯之类的设施的中间。客厅和厨房放在一个长方形的空间里,但是浴室和入口在它们之间产生了一个不明确的界限。
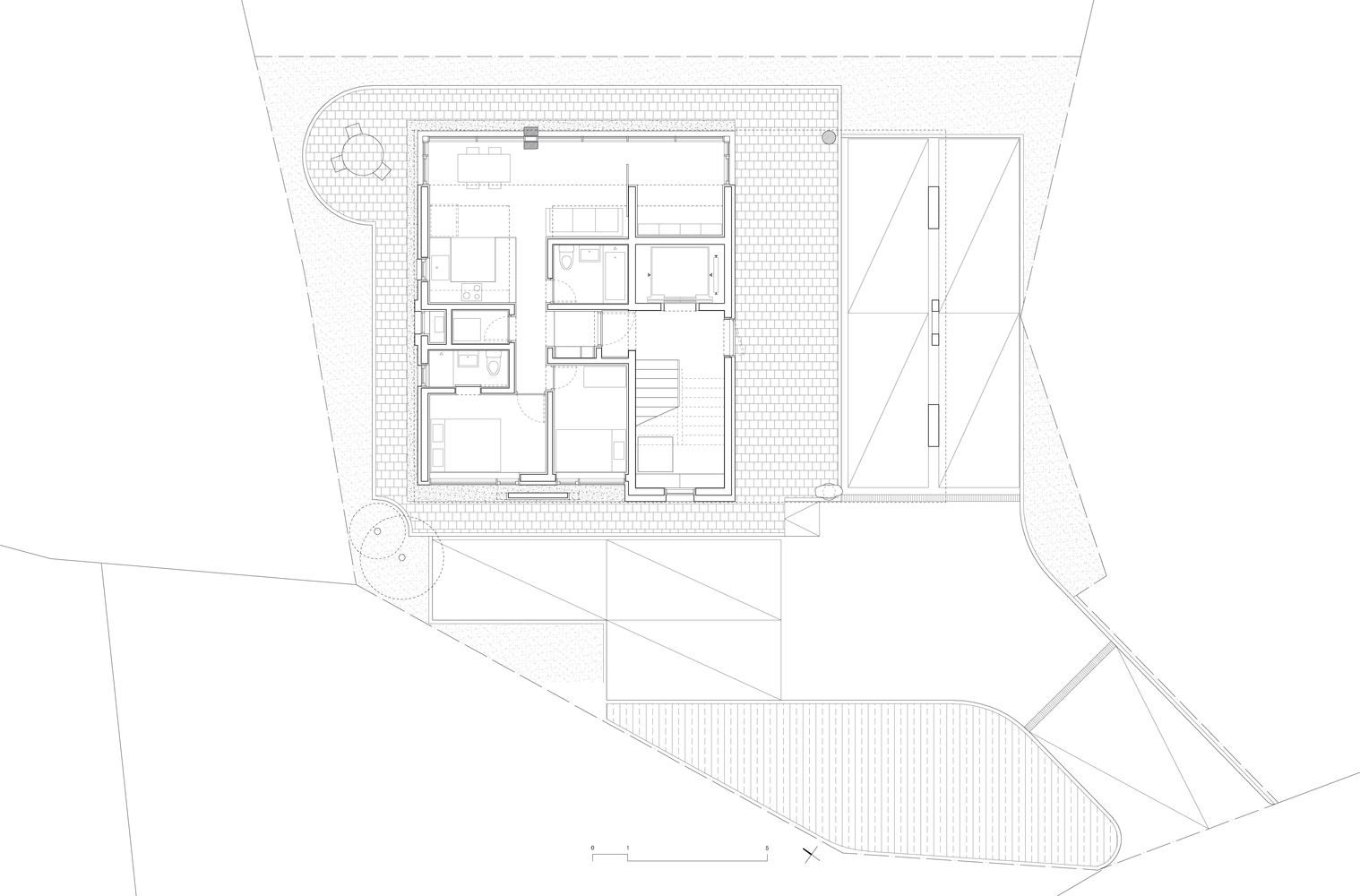
Embracing the drain pipes in them, the rows of columns of terraces are covered with anodized aluminum sheets. Subtle reflections of the color of the sky on these columns provide visual pleasure by gliding the sight from the living room into the ocean. Pastel-tone orange bricks and horizontal bands of white stucco used for the exterior resonate with conventional buildings in the old town of Jeju Island and make the building highly relatable. The floor plan has a simple A’-B-A-B-A’ type. Two house units are divided by ‘A’ in the middle where facilities such as an elevator and staircase are present. Living room and kitchen are put into one rectangular space, but the bathroom and entrance create an ambiguous boundary between them.
Embracing the drain pipes in them, the rows of columns of terraces are covered with anodized aluminum sheets. Subtle reflections of the color of the sky on these columns provide visual pleasure by gliding the sight from the living room into the ocean. Pastel-tone orange bricks and horizontal bands of white stucco used for the exterior resonate with conventional buildings in the old town of Jeju Island and make the building highly relatable. The floor plan has a simple A’-B-A-B-A’ type. Two house units are divided by ‘A’ in the middle where facilities such as an elevator and staircase are present. Living room and kitchen are put into one rectangular space, but the bathroom and entrance create an ambiguous boundary between them.
Elements Blocks Sketch
元素块草图
© Hyosook Chin
(三)舌骨下巴
Concept Sketch 1
概念草图1
分隔生活区和房间的墙由混凝土和砖组成。混凝土墙和梁外露,但涂漆的白色和相同但较大的砖用于外墙填充混凝土墙的开口。内壁与外壁几乎相同。混凝土和水磨石地板下的暴露天花板也带来了更高的外部空间感,就像客厅和厨房里的野餐一样。总体来说,VillaJeju是一个实验性的多家庭住宅,它在战略上考虑了区域局部性和通过其楼层平面的流行,并涵盖了济州岛独特的气候和放松情绪。
A wall separating the living area and the rooms are composed of concrete and bricks. Concrete wall and beams are exposed in raw but painted white and the same but bigger bricks used for the external wall fill the openings of the concrete wall. The inner wall is treated almost the same as the external wall. The exposed ceiling in concrete and terrazzo floor also brings a heightened sense of external room as if picnicking happens in the living room and kitchen. Overall, Villa Jeju is an experimental multi-family house that strategically contemplates regional locality and popularity through its floor plan and embraces the unique climate and relaxing emotion of Jeju Island.
A wall separating the living area and the rooms are composed of concrete and bricks. Concrete wall and beams are exposed in raw but painted white and the same but bigger bricks used for the external wall fill the openings of the concrete wall. The inner wall is treated almost the same as the external wall. The exposed ceiling in concrete and terrazzo floor also brings a heightened sense of external room as if picnicking happens in the living room and kitchen. Overall, Villa Jeju is an experimental multi-family house that strategically contemplates regional locality and popularity through its floor plan and embraces the unique climate and relaxing emotion of Jeju Island.
Architects aoa architects
Location Seogwipo-si, South Korea
Architects in Charge Jaewon Suh, Euihaing Lee
Area 445.2 m2
Project Year 2018
Photographs Hyosook Chin, Jaewon Suh
Category Houses
Manufacturers Loading...
客服
消息
收藏
下载
最近










































