查看完整案例

收藏

下载
架构师提供的文本描述。本研究以不同规模、不同工程性质为基础,使低密度织物与不确定的国内规模并存成为第一批腐败现象之一。
Text description provided by the architects. The research is based on the articulation of the different scales and project natures, making coexist one of the first irruptions of the fabric of low density with the indeterminate domestic scale.
Text description provided by the architects. The research is based on the articulation of the different scales and project natures, making coexist one of the first irruptions of the fabric of low density with the indeterminate domestic scale.
© Manuel Ciarlotti Bidinost
曼努埃尔·恰洛蒂·比迪诺斯特
布宜诺斯艾利斯"城镇"的典型组织是建造一座集商业空间和住房单元相结合的建筑的场所。它被插入位于主要广场、教堂、市政府和文化中心附近的城市最发达的商业走廊上。
A typical tissue of the "town" of Buenos Aires is a site for the construction of a building that combines a commercial space with housing units. It is inserted on the most developed commercial corridor of the city near the main Plaza, the Church, the Municipality, and the Cultural Center.
A typical tissue of the "town" of Buenos Aires is a site for the construction of a building that combines a commercial space with housing units. It is inserted on the most developed commercial corridor of the city near the main Plaza, the Church, the Municipality, and the Cultural Center.
© Manuel Ciarlotti Bidinost
曼努埃尔·恰洛蒂·比迪诺斯特
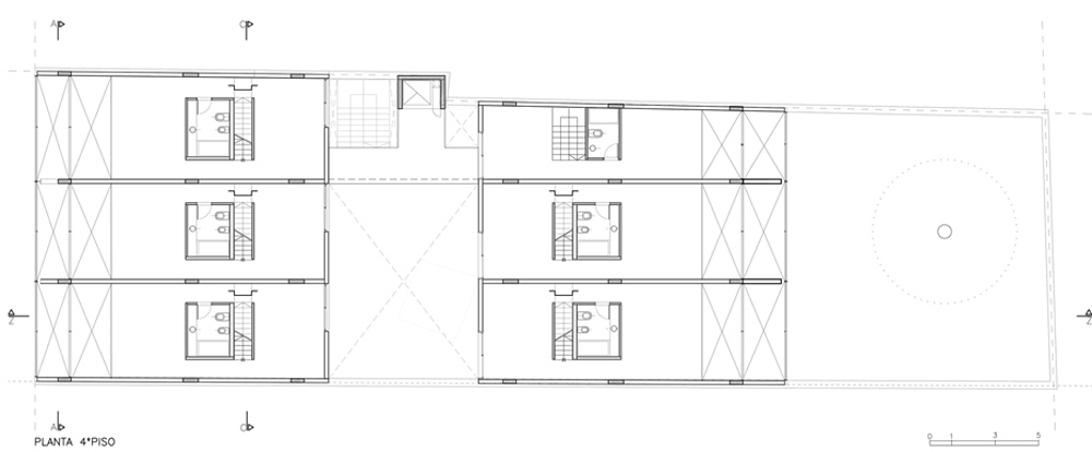
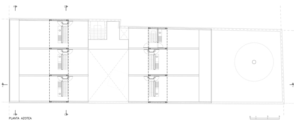
这座建筑被投影在两个规则的街区中,由大量的内部空间组成,这些空间通过两个空洞进行分级,一个是中央的,一个是沉思的露台,另一个是周边的广阔的视觉空间。
The building is projected in two regular blocks, composed of generous interior spaces which are hierarchized through two voids, one central: the contemplative patio, and one perimeter: of extensive visuals.
The building is projected in two regular blocks, composed of generous interior spaces which are hierarchized through two voids, one central: the contemplative patio, and one perimeter: of extensive visuals.
© Manuel Ciarlotti Bidinost
曼努埃尔·恰洛蒂·比迪诺斯特
中央露台在两个街区之间接收和分配用户,同时提供并确保不同单位之间的交叉视觉的亲密气氛。
The central patio receives and distributes the users between the two blocks, at the same time that it provides and ensures an intimate atmosphere of crossed visuals between the different units.
The central patio receives and distributes the users between the two blocks, at the same time that it provides and ensures an intimate atmosphere of crossed visuals between the different units.
Longitudinal section
正面和墙面是在两个平面上工作的,一个是使光线明亮完整的平面,另一个是用作调节气候和内部隐私的屏幕的纺织品,过滤街道的视觉效果,平均自然光的入口。
The facade as well as the counterfaced are worked in two planes, one glazed that allows a great light and complete visuals and another textile that works as a screen that regulates the climate and the interior privacy, filters the visuals of the street and average the entrance of natural light.
The facade as well as the counterfaced are worked in two planes, one glazed that allows a great light and complete visuals and another textile that works as a screen that regulates the climate and the interior privacy, filters the visuals of the street and average the entrance of natural light.
© Manuel Ciarlotti Bidinost
曼努埃尔·恰洛蒂·比迪诺斯特
用户可以很容易地对单位进行改造,不确定的室内空间可以根据使用者的使用和意愿变化。它们由宽敞的开放空间组成,为每个居民提供了职业自由和适应生活方式的自由。所有的房子都有外部空间。
The units can be easily transformed by the users, the indeterminate interior spaces will be able to change according to the use and the will of the inhabitant. They are made up of generous open spaces that offer a freedom of occupation and adaptation to the lifestyle of each inhabitant. All the houses incorporate exterior spaces.
The units can be easily transformed by the users, the indeterminate interior spaces will be able to change according to the use and the will of the inhabitant. They are made up of generous open spaces that offer a freedom of occupation and adaptation to the lifestyle of each inhabitant. All the houses incorporate exterior spaces.
© Manuel Ciarlotti Bidinost
曼努埃尔·恰洛蒂·比迪诺斯特
客服
消息
收藏
下载
最近

















