查看完整案例


收藏

下载
© Manolo R Solís
(Manolo R Solís)
© Manolo R Solís
(Manolo R Solís)
架构师提供的文本描述。虽然以住宅为出发点,建筑元素具有明显的趣味性,但由于住宅设计中不同风格的结合,导致住宅缺乏凝聚力,难以理解。因此,现有空间和整体风格的重新安排是整个干预的基石。拱门和殖民门仍然保留在最后的项目,以及与自然光共存通过无数的天窗,胆怯地直觉在50年代后期的原始项目。
Text description provided by the architects. Although, as a starting point, the house has certain architectural elements of obvious interest, the combination of different styles within the design of the house results in a lack of cohesiveness making it hard to understand. Hence, the rearrangement of both the existing spaces and the overall style of the house have been the cornerstones of the entire intervention. Arches and colonial doors remain in the final project, as well as the coexistence with the natural light through numerous skylights that timidly intuited in the original project of the late 50s.
Text description provided by the architects. Although, as a starting point, the house has certain architectural elements of obvious interest, the combination of different styles within the design of the house results in a lack of cohesiveness making it hard to understand. Hence, the rearrangement of both the existing spaces and the overall style of the house have been the cornerstones of the entire intervention. Arches and colonial doors remain in the final project, as well as the coexistence with the natural light through numerous skylights that timidly intuited in the original project of the late 50s.
© Manolo R Solís
(Manolo R Solís)
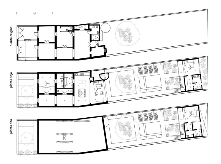
Floor Plans
平面图
© Manolo R Solís
(Manolo R Solís)
这种重新安排的结果是出现了一个全新的立面,但更符合现有的门台阶和拱门,以及明显的殖民追忆的原始高度、空间和数量。木匠,也是典型的这种建筑风格,被完全恢复和重新安排到新的外观。住房和街道之间的分界线因取消原大门而变得模糊,私人财产向公共空间开放,反之亦然。在屋面上,一棵树取代了原来45平方米的屋顶。
This rearrangement resulted in the appearance of a completely new façade but more in line with the existing door steps and arches, as well as the original heights, spaces and volumes of distinctly colonial reminiscences. The carpentry, also typical of this architectural style, was entirely recovered and rearranged into the new façade. The dividing line between housing and street is blurred by the elimination of the original gate, opening the private property to public space and vice versa. In the façade, a tree replaces 45 m2 of the original roofing.
This rearrangement resulted in the appearance of a completely new façade but more in line with the existing door steps and arches, as well as the original heights, spaces and volumes of distinctly colonial reminiscences. The carpentry, also typical of this architectural style, was entirely recovered and rearranged into the new façade. The dividing line between housing and street is blurred by the elimination of the original gate, opening the private property to public space and vice versa. In the façade, a tree replaces 45 m2 of the original roofing.
© Manolo R Solís
(Manolo R Solís)
地板被更换,墙壁被重新安置,隔板被提升,以提供新的空间,并有一个很大的开口把房子合并成一个花园,原来的项目总是对花园置之不理。由于屋顶保存状况差,需要拆除和随后进行重建。所有的墙壁灰泥都重新做了一次,加入了“暴露插座”的细节,将建筑石料从墙壁上剥离出来,以方便释放该地区建筑物中的水分。结果是一个基本的要素,良好的保护,除了一个显着的美学细节,整个房子的特点。
The floors were changed, walls were relocated, divisions were raised to enable new spaces and a great opening was made to incorporate the house into a garden to which the original project always turned its back. The poor state of preservation of the roofs required demolition and subsequent reconstruction. All the wall plaster was redone incorporating the detail of "exposed socle", stripping the construction stone from the walls to facilitate the release of moisture present in the buildings of the region. The result is a fundamental element for the good conservation of the finishes in addition to a remarkable aesthetic detail that characterizes the whole house.
The floors were changed, walls were relocated, divisions were raised to enable new spaces and a great opening was made to incorporate the house into a garden to which the original project always turned its back. The poor state of preservation of the roofs required demolition and subsequent reconstruction. All the wall plaster was redone incorporating the detail of "exposed socle", stripping the construction stone from the walls to facilitate the release of moisture present in the buildings of the region. The result is a fundamental element for the good conservation of the finishes in addition to a remarkable aesthetic detail that characterizes the whole house.
© Manolo R Solís
(Manolo R Solís)
© Manolo R Solís
(Manolo R Solís)
酒店后面有两间卧室,有浴室和更衣室,由花园和游泳池区的原始建筑隔开。通过解开这两个建筑,我们设法在公共区域和公共区域和私人房间之间建立一个明显的划分。这些卧室根据原始建筑中的投影显示了自然采光的若干细节。通过花园来连接空间和使用,使度假的家庭氛围与从项目开发之初所追求的外部体验有强烈的联系。尤卡坦气候的特殊特性使太阳、雨水和植被基本元素在整个项目的理解中得以实现。
At the back of the property, two bedrooms both with bathroom and dressing room are built, separated from the original construction by the garden and swimming pool area. By untying both constructions, we managed to create a marked division between common or public areas and private rooms. These bedrooms present several details of natural lighting in line with the projections developed in the original construction. The transit through the garden to connect spaces and uses, render a holiday home atmosphere strongly linked to the external experience that was pursued from the beginning of the project development. The particular characteristics of the Yucatan climate make the sun, rain and vegetation fundamental elements in the overall understanding of the project.
At the back of the property, two bedrooms both with bathroom and dressing room are built, separated from the original construction by the garden and swimming pool area. By untying both constructions, we managed to create a marked division between common or public areas and private rooms. These bedrooms present several details of natural lighting in line with the projections developed in the original construction. The transit through the garden to connect spaces and uses, render a holiday home atmosphere strongly linked to the external experience that was pursued from the beginning of the project development. The particular characteristics of the Yucatan climate make the sun, rain and vegetation fundamental elements in the overall understanding of the project.
© Manolo R Solís
(Manolo R Solís)
Interior Designer Nauzet Rodríguez
Location Mérida, Mexico
Area 230.0 m2
Project Year 2018
Photographs Manolo R Solís
Category Renovation
Manufacturers Loading...
客服
消息
收藏
下载
最近
















































