查看完整案例


收藏

下载
极简精神 梁思成说“中国建筑之个性乃即我民族之性格,即我艺术及思想特殊之一部,非但在其结构本身之材质方法而已。”而黑格尔说“建筑的艺术在于人类把外在本无精神的东西改造成为表现自己精神的一种创造。”中西方之融合在于形而上思想之间的互通,融创哈尔滨四季印象营销中心及样板房的设计项目,从室内设计中看到了另外一种境界,以匠心致敬初心,让设计回归精神之本,用传承千年极致的人文沉淀展现西方专注极简的生活态度。
天地四时,冥冥有度 空间中的布局安排与功能设计,以人为前提,而设计之美,美在“和而不同”,以文化内涵支撑设计精神,注重理念的表达和情绪的塑造,将传统的中国东方文化融入西式简约的生活方式。既能传达中式住宅庄重与优雅的韵味,又能符合西式的生活与审美需求,使之身处都市亦能安置心灵,简单不失深刻,含蓄而隽永,兼容而纯粹。
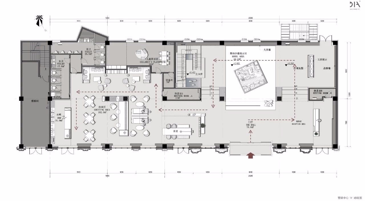
传承中式之传统美学,入口大堂,以大气、方正与对称的整体布局打开门厅视野,在较小的建筑面积之下,设计运用中空处理增加空间层次,以极简的形式将大气与光线似有似无置于交互之间。售楼中心平面图
铺陈大面积的淡墨色大理石作为空间主色调,色彩格调高雅而成熟,其中放置的雕塑为入口深度增加层次,点缀造型简约而庄重。楼梯处的水岸平台,扶摇而上青葱绿植,自然引入,有无万化,行云流水,简单而一气呵成,处处体现着东西文化交融之思想精髓。
以西方构造形态去表达中式文化内涵的设计元素,洽谈区和模型区借用温婉,素雅的茶道屏风以西式简单线条形式做隔断,而把分离的两个空间打造得更为灵动而隐秘。洽谈区解构了西式简单的几何形体,利用原始的柱子做了书架和座椅,赋予空间以意境情趣,用灰色格调凸显区域之安静。由近及远,层层递进从整体的格局到局部的装饰,西式现代家居的舒适与富有传统韵味的中式空间交相呼应,呈现一种淡雅庄重的现代文化氛围。
以器载道,以和为美 传承中国传统美学的精神,将古典的元素编织进入现代的生活之中,保持简约古雅的中式书柜,进守在方寸之间,白色雅致的帆布配合深色木纹,内在层次分明,自然而然的将区域划分,整体上又有物混成。在细节上体现的是功能的延展,而在空间上延展到了一定的幅度又回归了一体。
纵使日理万机,终不负诗情画意。销售中心的软装利用大量的留白,中心放置一副圆形墨宝图,凸显极富中国浪漫情趣的生活气息,用“天圆地方”体现的开阔之空间格局,而“知白守黑”彰显色彩朴素之美。
精致,现代的设计,开阔的空间的组织和流畅的动线,“无问西东”,现代中传承中式文化,沿用营销中心的设计理念,样板房亦用材质,比例关系,体现东方精神境界,去符号化。从“一堂两室”到“构木而居”,居室空间大量利用简化的几何图形,深沉的木色材质,沉稳的色彩,铺洒浑厚的空间基调。合乎中式自然的对称属性,又具有舒适宜人的居住功能。 由心而发地用一种致敬的姿态,解构中国千年文化的精神传承,秉持着自然,朴素的思想观念,从心出发,融合中西文化元素,用及其精致的匠心精神,以达到极致意境的空间形态。 营销中心效果图
样板房效果图▽
DIA丹健国际是由中德多位设计师合伙成立的国际化设计团队。在深圳、上海、德国Herford均设有创作团队和顾问团队。 DIA主要从事高端酒店、办公、住宅、会所、商业空间、交通枢纽等公共空间的室内设计。承接项目多为一线开发商的顶级项目,拥有如华侨城苏河湾、上海洛克外滩源、融创北京壹号院、深圳湾壹号、上海华润外滩九里等一系列重量级作品,自成立起一直坚持自我、坚守品质、不随波逐流,并以其良好的信誉和稳健的作风赢得了业内一致赞誉。
客服
消息
收藏
下载
最近
































