查看完整案例


收藏

下载
© Stéphane Brügge
(C)Stéphane Brügge
架构师提供的文本描述。建筑49自豪地公布了它的最新项目,高尔夫俱乐部,位于修女岛,圣劳伦斯河,面向蒙特利尔市中心的绿洲。这座建筑拥有令人印象深刻的木制框架,旨在为用户提供非凡的体验。它包括庇护驾驶范围的T恤,在一个宽敞的休息室中心的酒吧,一个完整的餐厅厨房,最先进的高尔夫模拟器,专业商店,办公室和机械空间。最初致力于设计一个可以让高尔夫球手在恶劣天气下使用练习场的隐蔽区域,建筑49与客户密切合作,将程序扩展到创建一个独特的多功能建筑。在俱乐部的最后形式,庇护驾驶范围内的发球者回到休息室和休闲区,为高尔夫球手创造了一种独特的体验。
Text description provided by the architects. Architecture49 is proud to unveil its latest project, the clubhouse for Golf Exécutif Montréal, located on Nuns’ Island, a green oasis in the St. Lawrence River facing downtown Montreal. The building, which boasts an impressive wooden framework, is designed to offer its users an exceptional experience. It includes sheltered driving-range tees, a bar in the center of a spacious lounge, a full restaurant kitchen, state-of-the-art golf simulators, a pro shop, offices, and mechanical spaces. Initially engaged to design a sheltered area that would allow golfers to use the driving range in inclement weather, Architecture49 worked closely with the client to extend the program to the creation of a unique multi-functional building. In the clubhouse’s final form, the sheltered driving-range tees back onto the lounge and relaxation areas, creating a unique experience for golfers.
Text description provided by the architects. Architecture49 is proud to unveil its latest project, the clubhouse for Golf Exécutif Montréal, located on Nuns’ Island, a green oasis in the St. Lawrence River facing downtown Montreal. The building, which boasts an impressive wooden framework, is designed to offer its users an exceptional experience. It includes sheltered driving-range tees, a bar in the center of a spacious lounge, a full restaurant kitchen, state-of-the-art golf simulators, a pro shop, offices, and mechanical spaces. Initially engaged to design a sheltered area that would allow golfers to use the driving range in inclement weather, Architecture49 worked closely with the client to extend the program to the creation of a unique multi-functional building. In the clubhouse’s final form, the sheltered driving-range tees back onto the lounge and relaxation areas, creating a unique experience for golfers.
© Stéphane Brügge
(C)Stéphane Brügge
© Stéphane Brügge
(C)Stéphane Brügge
功能激励来自会所的建筑标志,是对项目性质的直接反应。建筑物的曲线,与练习场相呼应,在满足高尔夫球手在比赛中的需要的同时,也与场地环境相协调。由于需要提供足够的避风塘,木屋的悬臂非常大,这也为高尔夫球手创造了一个沉思的空间。这个计划的精确性体现在俱乐部宽敞的窗户和不同的材料:锌、木头和玻璃上。
Function inspires form The clubhouse’s architectural signature is a direct response to the nature of the project. The building’s curve, echoing the driving range, harmonizes with the setting while meeting the needs of golfers working on their game. The exceptional size of the wooden roof’s cantilevers, dictated by the need to provide adequate shelter from the elements, also led to the creation of a contemplative space for golfers. The plan’s precision is evident in the clubhouse’s ample windows and a distinct arrangement of materials: zinc, wood, and glass.
Function inspires form The clubhouse’s architectural signature is a direct response to the nature of the project. The building’s curve, echoing the driving range, harmonizes with the setting while meeting the needs of golfers working on their game. The exceptional size of the wooden roof’s cantilevers, dictated by the need to provide adequate shelter from the elements, also led to the creation of a contemplative space for golfers. The plan’s precision is evident in the clubhouse’s ample windows and a distinct arrangement of materials: zinc, wood, and glass.
© Stéphane Brügge
(C)Stéphane Brügge
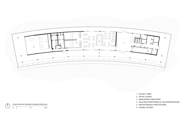
区域间的流体运动建筑物的曲线布局由交通区域构成,将户外体育活动与会所的内部功能隔开,并按顺序排列。在西侧的接待大厅,打开了一个遮蔽的室外空间,可以看到蒙特利尔市中心的景色。接下来是两个无窗服务核心中的第一个,有洗手间和两个隔音室,成员们可以使用高尔夫球模拟器进行游戏。毗邻的休息室是一个巨大的开放空间,中心酒吧周围设有各种座位类型。然后是大厅,它横贯整个大楼,提供通往练习场的通道,靠近专业商店和开放式厨房的服务柜台。最后,第二个无窗服务核心是厨房、行政办公室和机械室。会所设计使空间尽可能灵活,是一个聚会场所,适用于各种活动和活动,无论是在高尔夫赛季期间还是在高尔夫赛季之外。
Fluid movement between zones The building’s curvilinear layout is structured by traffic areas separating outdoor sporting activities and the clubhouse’s interior functions, which are arranged sequentially. The reception hall, on the west side, opens onto a sheltered outdoor space with views of downtown Montreal. Next is the first of two windowless service cores, with washrooms and two soundproofed rooms where members can work on their game using golf simulators. The adjacent lounge is a large open space featuring a variety of seating types arranged around a central bar. After that comes the hall, which cuts across the building to provide access to the driving range, which is near the pro shop and a service counter for the open kitchen. Lastly, a second windowless service core houses the kitchen, administrative offices, and mechanical rooms. Designed to make the spaces as flexible as possible, the clubhouse is a gathering place suitable for many kinds of activities and events, both during and outside golf season.
Fluid movement between zones The building’s curvilinear layout is structured by traffic areas separating outdoor sporting activities and the clubhouse’s interior functions, which are arranged sequentially. The reception hall, on the west side, opens onto a sheltered outdoor space with views of downtown Montreal. Next is the first of two windowless service cores, with washrooms and two soundproofed rooms where members can work on their game using golf simulators. The adjacent lounge is a large open space featuring a variety of seating types arranged around a central bar. After that comes the hall, which cuts across the building to provide access to the driving range, which is near the pro shop and a service counter for the open kitchen. Lastly, a second windowless service core houses the kitchen, administrative offices, and mechanical rooms. Designed to make the spaces as flexible as possible, the clubhouse is a gathering place suitable for many kinds of activities and events, both during and outside golf season.
© Stéphane Brügge
(C)Stéphane Brügge
无处不在的木材,屋顶的跨度,给人留下深刻印象的是它的大小和它所代表的结构挑战。屋顶的成功施工需要精确的设计工作,以确保结构的外部和内部比例之间的和谐关系。屋顶和建筑的曲线,背面和前面,给会所一个精致的触摸。机电元件被仔细地整合到木结构中,使它们消失,并尽可能地使内部保持极简主义。特别注意选择不含VOC的天然材料,因此在室内使用木材:枫木镶板的墙壁和门,烤木的墙壁和家具。最后,为了展示当地的专门知识和工匠,建筑师们选择了蒙特利尔和魁北克其他地方的材料、供应商和承包商。
Ubiquitous wood The roof’s span impresses by its size and the structural challenge it represents. The successful construction of the roof required precision design work to ensure a harmonious relationship between the structure’s exterior and interior proportions. The curves of both the roof and building, back and front, give the clubhouse a refined touch. The electro-mechanical elements are carefully integrated into the wooden structure, making them disappear and leaving the interior as minimalist as possible. Special care was taken to select VOC-free natural materials, hence the use of wood throughout the interior: walls and doors in maple paneling, walls in toasted wood, and furniture. Lastly, with the aim of showcasing local expertise and artisans, the architects made a point of selecting materials, suppliers and contractors from Montreal and elsewhere in Quebec.
Ubiquitous wood The roof’s span impresses by its size and the structural challenge it represents. The successful construction of the roof required precision design work to ensure a harmonious relationship between the structure’s exterior and interior proportions. The curves of both the roof and building, back and front, give the clubhouse a refined touch. The electro-mechanical elements are carefully integrated into the wooden structure, making them disappear and leaving the interior as minimalist as possible. Special care was taken to select VOC-free natural materials, hence the use of wood throughout the interior: walls and doors in maple paneling, walls in toasted wood, and furniture. Lastly, with the aim of showcasing local expertise and artisans, the architects made a point of selecting materials, suppliers and contractors from Montreal and elsewhere in Quebec.
© Stéphane Brügge
(C)Stéphane Brügge
Architects Architecture49
Location Île-des-Sœurs, Montreal, Quebec H3E, Canada
Area 855.0 m2
Project Year 2018
Photographs Stéphane Brügge
Category Recreation & Training
Manufacturers Loading...
客服
消息
收藏
下载
最近
















