查看完整案例


收藏

下载
© Adrian Mora Maroto
.Adrian Mora Maroto
架构师提供的文本描述。位于巴伦西亚内陆一个小市镇的上层地区,有一个不规则的阿拉伯裔街道网络,特别是在经过该镇时,可以看到形成Turia河的丘陵和山谷。
Text description provided by the architects. Located in the upper area of a small municipality in the interior of Valencia, with an irregular network of streets of Arab origin, and especially, with excellent views of the hills and the Valley that forms the Turia River as it passes through the town.
Text description provided by the architects. Located in the upper area of a small municipality in the interior of Valencia, with an irregular network of streets of Arab origin, and especially, with excellent views of the hills and the Valley that forms the Turia River as it passes through the town.
© Adrian Mora Maroto
.Adrian Mora Maroto
我们在一个有很大差距的地块上找到了一个古老的单层房子和一个美丽的叶子花花园,附近的房子有一定的年龄和很小的兴趣。提出了一个内向的项目,在三面封闭一个棱镜片,并将其完全打开到最佳视图中。以这种方式,外壳保持了来自街道和邻近家庭的最大隐私,而从两层完全打开。
We find an old one-storey house and a beautiful garden of bougainvillea on a plot with a large gap, and nearby homes of a certain age and little interest. An introvert project is proposed, with a prismatic piece closed on three sides, and fully open to the best views. In this way, housing preserves maximum privacy from the street and from neighboring homes, while from the two floors it is fully open.
We find an old one-storey house and a beautiful garden of bougainvillea on a plot with a large gap, and nearby homes of a certain age and little interest. An introvert project is proposed, with a prismatic piece closed on three sides, and fully open to the best views. In this way, housing preserves maximum privacy from the street and from neighboring homes, while from the two floors it is fully open.
Ground floor plan
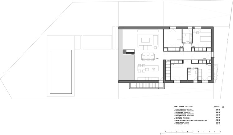
First floor plan
一楼平面图
此外,增加了包括住宅的体积,目的是解决地块的不均匀性,从两层产生对房屋的访问,并导致程序的合理划分,在地面的停车和休闲区域,以及从街道层面进入的顶层的夜间和白天区域。两个楼层通过楼梯连接,楼梯的发展以倾斜的侧向附件体积提出。
In addition, the volume comprising the home is raised with the intention of resolving in itself the unevenness of the plot, generating access to housing from the two levels and leading to a rational division of the program, with parking and leisure area in ground floor, and night and day area on the top floor, which has access from the street level. Both floors are joined by a staircase, whose development is proposed in an inclined lateral annex volume.
In addition, the volume comprising the home is raised with the intention of resolving in itself the unevenness of the plot, generating access to housing from the two levels and leading to a rational division of the program, with parking and leisure area in ground floor, and night and day area on the top floor, which has access from the street level. Both floors are joined by a staircase, whose development is proposed in an inclined lateral annex volume.
© Adrian Mora Maroto
.Adrian Mora Maroto
上层是一个纯白色的体积,前侧有一个大悬臂,在与客厅和厨房相连的露台上开放。这个白色棱镜“飞”在无烟煤灰色板岩上,侧方坡道休息,它消失在前侧,使它在悬臂式门廊和多功能玻璃房完全开放。
The upper floor is constituted as a pure white volume, with a large cantilever on the front side, and open on the terraces that link to the living room and kitchen. This white prism ‘flies’ over an anthracite gray slate plinth on which the side ramps rest, and which vanishes on the front side, leaving it completely open on the cantilevered porch and in the multi-purpose glazed room.
The upper floor is constituted as a pure white volume, with a large cantilever on the front side, and open on the terraces that link to the living room and kitchen. This white prism ‘flies’ over an anthracite gray slate plinth on which the side ramps rest, and which vanishes on the front side, leaving it completely open on the cantilevered porch and in the multi-purpose glazed room.
© Adrian Mora Maroto
.Adrian Mora Maroto
房子的内向性格,虽然通过前壁板条和叶子花花园暗示,但不允许进一步认识它,它也延伸到房子的内部。以这种方式,当穿过伟大的走廊-穿越夜间休息-你到达白天的区域时,就会产生一种惊奇的效果,这是一个巨大的开阔空间,可以看到丘陵和山谷的极好的景色。
The introverted character of the house, which although insinuated through the front wall slats and through the bougainvillea garden, does not allow to recognize it further, it also extends to the interior of the house. In this way, a surprise effect occurs when advancing through the great hallway - traversing the night area that remains hidden - you reach the day area, as a single large open space with excellent views of the hills and the Valley.
The introverted character of the house, which although insinuated through the front wall slats and through the bougainvillea garden, does not allow to recognize it further, it also extends to the interior of the house. In this way, a surprise effect occurs when advancing through the great hallway - traversing the night area that remains hidden - you reach the day area, as a single large open space with excellent views of the hills and the Valley.
© Adrian Mora Maroto
.Adrian Mora Maroto
上层和底层的日间面积由横向楼梯连接,通过一个多用途空间,连接到门廊悬臂上,面向室外游泳池。在室内,非常纯净和清醒的环境,与大型陶瓷路面,白色垂直覆盖,白色屋顶与隐藏装置的集成,和间接线性照明。他们也有伟大的自然照明从南方,保护大悬臂和前露台。
The day area of the upper floor and the ground floor are connected by the lateral staircase, with access through a multipurpose space, attached to the porch-cantilever and facing the outdoor pool. In the interior, very pure and sober environments are generated, with large-format porcelain pavements, white vertical coverings, white roofs with integration of hidden installations, and with indirect linear lighting. They also have great natural lighting from the south, protected by the large cantilever and the front terraces.
The day area of the upper floor and the ground floor are connected by the lateral staircase, with access through a multipurpose space, attached to the porch-cantilever and facing the outdoor pool. In the interior, very pure and sober environments are generated, with large-format porcelain pavements, white vertical coverings, white roofs with integration of hidden installations, and with indirect linear lighting. They also have great natural lighting from the south, protected by the large cantilever and the front terraces.
© Adrian Mora Maroto
.Adrian Mora Maroto
屋外,保留了园林箱、绿地和地势背景的园景露台,甚至汽车坡道也是由混凝土和天然草混合而成,形成了自然环境,与长景融合在一起,与建筑的复杂程度形成了鲜明对比。当然,把房子和街道分开并结合在一起的花束也会被保存下来.
Outside, garden boxes, green areas and landscaped terraces of the plot background are kept, and even the vehicle ramp is materialized with a mix of concrete and natural grass giving rise to a natural environment, which fuses with the long views, and which contrasts with the sophistication of the block built. And of course, the bougainvilleas that separate and unite the house with its street are preserved...
Outside, garden boxes, green areas and landscaped terraces of the plot background are kept, and even the vehicle ramp is materialized with a mix of concrete and natural grass giving rise to a natural environment, which fuses with the long views, and which contrasts with the sophistication of the block built. And of course, the bougainvilleas that separate and unite the house with its street are preserved...
© Adrian Mora Maroto
.Adrian Mora Maroto
Architects Ruben Muedra Estudio de Arquitectura
Location Valencia, Spain
Authors Ruben Muedra, Emilio Belda, Raquel Morata, Javier Muedra
Area 450.0 m2
Project Year 2018
Photographs Adrian Mora Maroto
Category Houses
Manufacturers Loading...
客服
消息
收藏
下载
最近



























