查看完整案例


收藏

下载
© Diego Opazo
(迭戈·奥帕佐)
架构师提供的文本描述。该项目将一个新的入口点配置到位于Torrent的Santa Teresa de Jesús学校。一个单层的展馆与Avenida Constiución平行,而另一边则是现存的壮丽的松林。混凝土门廊为学生、家长和教师的行程安排提供了保护和租赁的遮阳平台。不同的体积从这个桥墩中冒出来,它们的形状在天空中像松树顶一样被剪裁出来。
Text description provided by the architects. The project configures a new entry point to the School of Santa Teresa de Jesús in Torrent. A single level pavilion stands parallel to the Avenida Constitución, while, on the other side, it embraces the existing magnificent pine forest. The concrete porch shelters the itineraries of students, parents and teachers and provides a shaded plinth for protection and leasure. The different volumes emerge out of this plinth, their shapes cut out in the sky like the pine tree tops.
Text description provided by the architects. The project configures a new entry point to the School of Santa Teresa de Jesús in Torrent. A single level pavilion stands parallel to the Avenida Constitución, while, on the other side, it embraces the existing magnificent pine forest. The concrete porch shelters the itineraries of students, parents and teachers and provides a shaded plinth for protection and leasure. The different volumes emerge out of this plinth, their shapes cut out in the sky like the pine tree tops.
多功能厅位于入口的一侧,对花园和城市开放。对面是通往新行政区域和学校操场的走廊。因此,建筑在其边界、外部和内部空间、建筑和城市设计之间以及不同的混合用途之间建立了一种轻微的模糊性。
The multi-purpose hall is located on one side of the entryway, open to the garden and the city. On the opposite side, the access lobby to the new administration area and the school playground. The building thus establishes a daliberate ambiguity of its borders, between exterior and interior spaces, between construction and urban design, and between its different, mixed uses.
The multi-purpose hall is located on one side of the entryway, open to the garden and the city. On the opposite side, the access lobby to the new administration area and the school playground. The building thus establishes a daliberate ambiguity of its borders, between exterior and interior spaces, between construction and urban design, and between its different, mixed uses.
© Diego Opazo
(迭戈·奥帕佐)
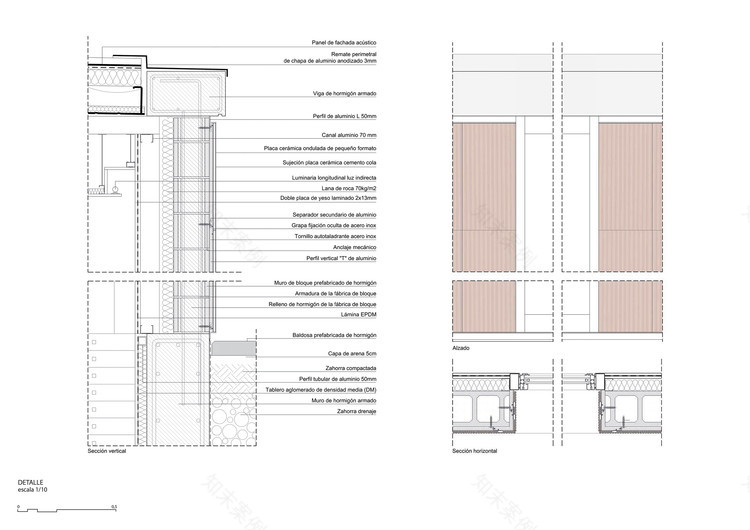
与原建筑的连续性,新展馆的材料与条纹陶瓷件,遮挡在一个细长的柱子,部分包裹在陶瓷件下。在水平线上出现的纯体积由金属面板组成,这些金属板反映了天空,由钢质轮廓构成。
In continuity with the original building, the new pavilion materializes with striped ceramic pieces, sheltered under a canopy of slender columns, partially wrapped in ceramic pieces. The pure volumes emerging over the horizontal line are cladded with metal panels that reflect the sky, framed by steel profiles.
In continuity with the original building, the new pavilion materializes with striped ceramic pieces, sheltered under a canopy of slender columns, partially wrapped in ceramic pieces. The pure volumes emerging over the horizontal line are cladded with metal panels that reflect the sky, framed by steel profiles.
© Diego Opazo
(迭戈·奥帕佐)
© Diego Opazo
(迭戈·奥帕佐)
然后将陶瓷作为垂直表面的熔覆直接以其工业形式使用,并对其进行修饰和修整,以保护和强调柱的长细,并根据阿尔瓦·阿尔托等一些大师的经验进行更新。
Ceramic is then used directly in its industrial form as cladding for the vertical surfaces, and also modified and trimmed for protecting and emphasizing the slenderness of the columns, following and updating the lessons by some masters like Alvar Aalto.
Ceramic is then used directly in its industrial form as cladding for the vertical surfaces, and also modified and trimmed for protecting and emphasizing the slenderness of the columns, following and updating the lessons by some masters like Alvar Aalto.
Ground Floor
土质陶瓷材料和工业过程的资源突出了自然与艺术、有机与系统之间的二重性。聚集、停留或通过的空间,城市环境的直线性和有趣的学习品质交织在一起,交织在一起。
The resource of both the earthy ceramic material and the industrial processes underline the duality between nature and artífice, between the organic and the systematic. A space for gathering, staying, or passing through, where the straightness of the urban environment and the playful quality of learning mix together and intertwine.
The resource of both the earthy ceramic material and the industrial processes underline the duality between nature and artífice, between the organic and the systematic. A space for gathering, staying, or passing through, where the straightness of the urban environment and the playful quality of learning mix together and intertwine.
© Diego Opazo
(迭戈·奥帕佐)
© Diego Opazo
(迭戈·奥帕佐)
Architects Peñín Architects
Location Carrer de la Constitució, Torrent, Valencia, Spain
Architect in Charge Peñin Arquitectos
Area 1099.0 m2
Project Year 2016
Photographs Diego Opazo
Category Extension
Manufacturers Loading...
客服
消息
收藏
下载
最近

















