查看完整案例


收藏

下载
© Patrick Bingham-Hall
帕特里克·宾厄姆-霍尔
架构师提供的文本描述。金钟港是新加坡首个集公共设施和服务于一体的综合性公共发展项目。传统的做法是由每个政府机构开辟自己的土地,形成几座独立的建筑物。另一方面,这个一站式综合体最大限度地利用了土地,是满足新加坡老龄化人口需求的原型。
Text description provided by the architects. Kampung Admiralty is Singapore’s first integrated public development that brings together a mix of public facilities and services under one roof. The traditional approach is for each government agency to carve out their own plot of land, resulting in several standalone buildings. This one-stop integrated complex, on the other hand, maximises land use, and is a prototype for meeting the needs of Singapore’s ageing population.
Text description provided by the architects. Kampung Admiralty is Singapore’s first integrated public development that brings together a mix of public facilities and services under one roof. The traditional approach is for each government agency to carve out their own plot of land, resulting in several standalone buildings. This one-stop integrated complex, on the other hand, maximises land use, and is a prototype for meeting the needs of Singapore’s ageing population.
© K. Kopter
(K.Kopter)
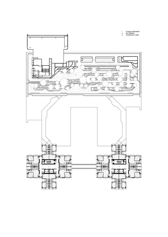
该方案位于一个高度限制为45米的面积为0.9ha的狭小场地上,采用分层的“俱乐部三明治”方法。设计了一个“垂直Kampung(村)”,下层有社区广场,中间有医疗中心,上层有供老年人居住的社区公园。这三个不同的层次并列在不同的建筑用途,以促进多样性的交叉编程和解放地面水平的活动产生。邻近医疗保健、社会、商业和其他便利设施,支持代际联系,促进积极老龄化。
Located on a tight 0.9Ha site with a height limit of 45m, the scheme builds upon a layered ‘club sandwich’ approach. A “Vertical Kampung (village)” is devised, with a Community Plaza in the lower stratum, a Medical Centre in the mid stratum, and a Community Park with apartments for seniors in the upper stratum. These three distinct stratums juxtapose the various building uses to foster diversity of cross-programming and frees up the ground level for activity generators. The close proximity to healthcare, social, commercial and other amenities support inter-generational bonding and promote active ageing in place.
Located on a tight 0.9Ha site with a height limit of 45m, the scheme builds upon a layered ‘club sandwich’ approach. A “Vertical Kampung (village)” is devised, with a Community Plaza in the lower stratum, a Medical Centre in the mid stratum, and a Community Park with apartments for seniors in the upper stratum. These three distinct stratums juxtapose the various building uses to foster diversity of cross-programming and frees up the ground level for activity generators. The close proximity to healthcare, social, commercial and other amenities support inter-generational bonding and promote active ageing in place.
© Patrick Bingham-Hall
帕特里克·宾厄姆-霍尔
1st floor plan
一楼图则
© Darren Soh
c.Soh
社区广场是一个完全公开,多孔和行人专用区的地面飞机,设计为一个社区客厅。在这个欢迎和包容的空间内,公众可以参加有组织的活动,参加这个季节的庆祝活动,购物,或在二楼的小贩中心用餐。有风的热带广场被上面的医疗中心遮住,无论雨天如何,活动都可以继续进行。
The Community Plaza is a fully public, porous and pedestrianised ground plane, designed as a community living room. Within this welcoming and inclusive space, the public can participate in organised events, join in the season’s festivities, shop, or eat at the hawker centre on the 2nd storey. The breezy tropical plaza is shaded and sheltered by the Medical Centre above, allowing activities to continue regardless of rain or shine.
The Community Plaza is a fully public, porous and pedestrianised ground plane, designed as a community living room. Within this welcoming and inclusive space, the public can participate in organised events, join in the season’s festivities, shop, or eat at the hawker centre on the 2nd storey. The breezy tropical plaza is shaded and sheltered by the Medical Centre above, allowing activities to continue regardless of rain or shine.
© Patrick Bingham-Hall
帕特里克·宾厄姆-霍尔
© Patrick Bingham-Hall
帕特里克·宾厄姆-霍尔
在金钟甘邦设立一个医疗中心,意味着居民不需要大老远地去医院咨询专科医生,也不需要做一次简单的日复一日的手术。为了促进健康和疗伤,中心的咨询和等候区在自然日光下从周边窗户和通过中央庭院清洗。对下面的社区广场和上面的社区公园的看法也帮助老年人感觉到与自然和其他人的联系。
Locating a Medical Centre in Kampung Admiralty means that residents need not go all the way to the hospital to consult a specialist, or to get a simple day surgery done. To promote wellness and healing, the centre’s consultation and waiting areas are washed in natural daylight from perimeter windows and through a central courtyard. Views towards the Community Plaza below, and the Community Park above also help seniors feel connected to nature and to other people.
Locating a Medical Centre in Kampung Admiralty means that residents need not go all the way to the hospital to consult a specialist, or to get a simple day surgery done. To promote wellness and healing, the centre’s consultation and waiting areas are washed in natural daylight from perimeter windows and through a central courtyard. Views towards the Community Plaza below, and the Community Park above also help seniors feel connected to nature and to other people.
© Patrick Bingham-Hall
帕特里克·宾厄姆-霍尔
社区公园是一个规模更紧密、高度较高的村庄绿地,居民们可以积极地聚集在一起锻炼、聊天或照料社区农场。诸如托儿和积极的老龄中心(包括老年人照料)等补充方案并排设在一起,使年轻人和老年人聚集一堂,共同生活、吃饭和玩耍。共有104套公寓位于两栋11层楼高的公寓楼内,供单身老人或夫妇居住.在共享入口处的“巴迪长凳”鼓励老年人走出家门,与邻居互动。该机组采用通用设计原则,采用自然交叉通风和最佳日光设计。
The Community Park is a more intimately scaled, elevated village green where residents can actively come together to exercise, chat or tend community farms. Complementary programmes such as childcare and an Active Aging Hub (including senior care) are located side by side, bringing together young and old to live, eat and play. A total of 104 apartments are provided in two 11-storey blocks for elderly singles or couples. “Buddy benches” at shared entrances encourage seniors to come out of their homes and interact with their neighbours. The units adopt universal design principles and are designed for natural cross ventilation and optimum daylight.
The Community Park is a more intimately scaled, elevated village green where residents can actively come together to exercise, chat or tend community farms. Complementary programmes such as childcare and an Active Aging Hub (including senior care) are located side by side, bringing together young and old to live, eat and play. A total of 104 apartments are provided in two 11-storey blocks for elderly singles or couples. “Buddy benches” at shared entrances encourage seniors to come out of their homes and interact with their neighbours. The units adopt universal design principles and are designed for natural cross ventilation and optimum daylight.
© Patrick Bingham-Hall
帕特里克·宾厄姆-霍尔
Architects WOHA
Location 676 Woodlands Drive 71, 730676 Singapore
Project Team Wong Mun Summ, Richard Hassell, Pearl Chee, Goh Soon Kim, Phua Hong Wei, Richard Kuppusamy, Jonathan Hooper, Yang Han , Lau Wannie, Gillian Hatch, Kwong Lay Lay, Zhou Yubai
Project Year 2017
Photographs Darren Soh, Patrick Bingham-Hall, K. Kopter
Category Buildings
客服
消息
收藏
下载
最近

























