查看完整案例


收藏

下载
© Andres Orozco
C.安德烈斯·奥罗斯科
架构师提供的文本描述。餐饮对身心都是一种协同作用的体验。哥伦比亚大学(Columbia University)君子厨房(Junzi Kitchen)的设计意图来自于食物,最终放大了与用户的对话,唤起了人们与整个餐饮体验的充分共鸣。
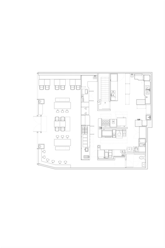
Text description provided by the architects. Dining is a synergetic experience for both body and mind. The design intent of Junzi Kitchen at Columbia University was derived from the food, ultimately amplifies the dialogue with its users that evokes one’s full sensation resonating with the overall dining experience.
Text description provided by the architects. Dining is a synergetic experience for both body and mind. The design intent of Junzi Kitchen at Columbia University was derived from the food, ultimately amplifies the dialogue with its users that evokes one’s full sensation resonating with the overall dining experience.
© Andres Orozco
C.安德烈斯·奥罗斯科
在保持形式语言和材料简洁的同时,设计强调细节控制。木纹取向,织物柔软,网筛透明,标定接头。本设计旨在揭示材料的本质属性,同时明确两者之间的联系。
While the formal language and material is kept at its simplicity, the design emphasizes detail control. Wood grain orientation, softness of fabric, transparency of mesh screen, calibrated joints. The design intends to reveal the nature attributes of materials, at the same time articulate the connection lies in between.
While the formal language and material is kept at its simplicity, the design emphasizes detail control. Wood grain orientation, softness of fabric, transparency of mesh screen, calibrated joints. The design intends to reveal the nature attributes of materials, at the same time articulate the connection lies in between.
© Andres Orozco
C.安德烈斯·奥罗斯科
该设计使得具有不同字符的两条产品线在相同的空间中共存,共享当天的不同时隙。在白天的空间和材料语言唤起了早期春天的气氛,与月历传统联系在一起,与朱子白天模式中提供的食物有着深刻的联系。在夜晚,场景被色彩和活力转换,容纳了一个以亚洲街头食物为特色的深夜菜单。
The design makes possible of two product lines with distinctive characters to co-exist in the same space, sharing different time slots of the day. During the day spatial and material language of the space evokes an ambience of early spring, connecting to the lunar calendar tradition deeply associated with the food provided in Junzi’s daytime mode. While the scene is transformed at night with colors and vibrancy, accommodating a late-night menu featuring Asian street foods.
The design makes possible of two product lines with distinctive characters to co-exist in the same space, sharing different time slots of the day. During the day spatial and material language of the space evokes an ambience of early spring, connecting to the lunar calendar tradition deeply associated with the food provided in Junzi’s daytime mode. While the scene is transformed at night with colors and vibrancy, accommodating a late-night menu featuring Asian street foods.
该空间还提供策划展示,展示来自当地社区艺术家的艺术作品。
The space also provides curated display to showcase artworks by artists from local community.
The space also provides curated display to showcase artworks by artists from local community.
© Andres Orozco
C.安德烈斯·奥罗斯科
Architects Xuhui Zhang
Location 2896 Broadway, New York, NY 10025, United States
Architect in Charge Xuhui Zhang
Area 1800.0 m2
Project Year 2017
Photographs Andres Orozco
Category Interior Design
Manufacturers Loading...
客服
消息
收藏
下载
最近














