查看完整案例


收藏

下载
架构师提供的文本描述。国家歌剧院被公认为墨西哥娱乐业最重要的场所,是世界上同类论坛中最优秀的三大论坛之一,是国内外艺术家的参照系和必备品。这座建筑由建筑师特奥多罗·冈萨雷斯·德莱昂设计,它反映了他作品的力量、表现和不朽特征。位于大楼梯下的干预区域是一个具有标志性特征的空间,因为它的形状是弯曲的。
Text description provided by the architects. The Auditorio Nacional is recognized as the most important venue for the entertainment industry in Mexico, stands out among the three best forums in the world in its kind and is a reference and a must for national and foreign artists. The building, designed by the architect Teodoro Gonzalez de León, it reflects the strength, expression and monumentality characteristic of his work. The area of intervention located under a grand staircase is a space with an iconic character due to its curved shape.
Text description provided by the architects. The Auditorio Nacional is recognized as the most important venue for the entertainment industry in Mexico, stands out among the three best forums in the world in its kind and is a reference and a must for national and foreign artists. The building, designed by the architect Teodoro Gonzalez de León, it reflects the strength, expression and monumentality characteristic of his work. The area of intervention located under a grand staircase is a space with an iconic character due to its curved shape.
© Jaime Navarro
(c)JaimeNavarro
Planta Baja
普兰塔巴哈
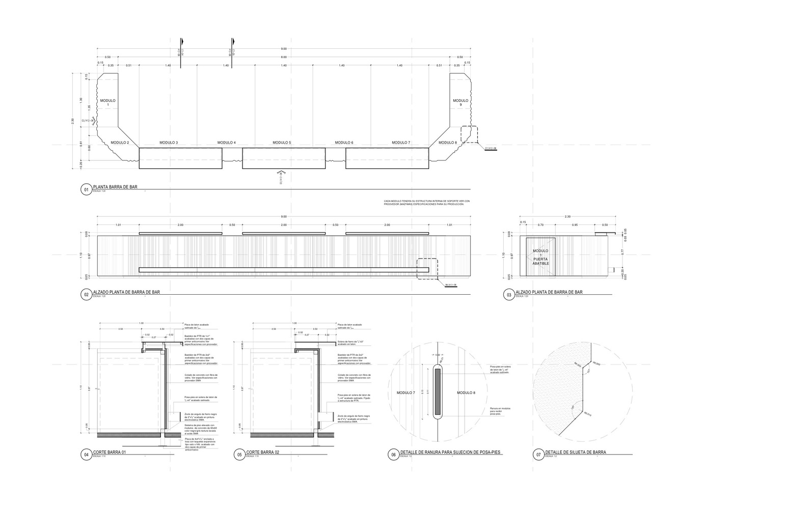
三个响亮的纯洁和简单的几何形状组成了空间;拱形天花板,带有合理表达的带条纹的混凝土条,最后是黄铜柜台。该项目具有一个永恒的特征,以及一个中性色对比,其中天花板的反射是由一个具有铜色的漆包陶瓷的重复所产生的。该零件的设计特别适用于Vault的涂层。
Three resounding gestures of pure and simple geometry make up the space; the arch-shaped ceiling, the striatedconcrete bar with rational expression and finally the brass counter-bar. The project has a timeless character, and a neutral chromatic contrast where the reflections of the ceiling created from the repetition of an artisan piece of enameled ceramic with a copper tone. This piece was designed especially for the coating of the vault.
Three resounding gestures of pure and simple geometry make up the space; the arch-shaped ceiling, the striatedconcrete bar with rational expression and finally the brass counter-bar. The project has a timeless character, and a neutral chromatic contrast where the reflections of the ceiling created from the repetition of an artisan piece of enameled ceramic with a copper tone. This piece was designed especially for the coating of the vault.
© Jaime Navarro
(c)JaimeNavarro
背面是黄铜制造的高亮度,是视觉光洁度和另一个元素的对比度和亮度在一个空间的黑暗和中性色调。支撑楼梯的两根大圆柱体被整合在一起,反映出围护结构实质上的粗糙表达。
The back bar was manufactured in brass at high brightness, is the visual finish and another element of contrast and luminosity within a space of dark and neutral tones. Two large circular columns that support the staircase, are integrated and reflect the rough expression present in the materiality of the enclosure.
The back bar was manufactured in brass at high brightness, is the visual finish and another element of contrast and luminosity within a space of dark and neutral tones. Two large circular columns that support the staircase, are integrated and reflect the rough expression present in the materiality of the enclosure.
客服
消息
收藏
下载
最近














