查看完整案例

收藏

下载
© Robert Yu Photography
(三)余荣文摄影
架构师提供的文本描述。Civitas资本集团的新总部占地22,000平方英尺,位于达拉斯艺术区的艺术广场一号八楼。Civitas是一个年轻的投资集团,他们想要一个设备完善的办公室,代表他们作为创造性思考者和负责任的客户投资管理者的方式。
Text description provided by the architects. The new headquarters for Civitas Capital Group occupies 22,000 square feet on the eighth floor of One Arts Plaza in Dallas' Arts District. Civitas is a youthful investment group and they wanted a well-appointed office that represents their approach as creative thinkers and responsible stewards of client investments.
Text description provided by the architects. The new headquarters for Civitas Capital Group occupies 22,000 square feet on the eighth floor of One Arts Plaza in Dallas' Arts District. Civitas is a youthful investment group and they wanted a well-appointed office that represents their approach as creative thinkers and responsible stewards of client investments.
Diagram 01
Diagram 01
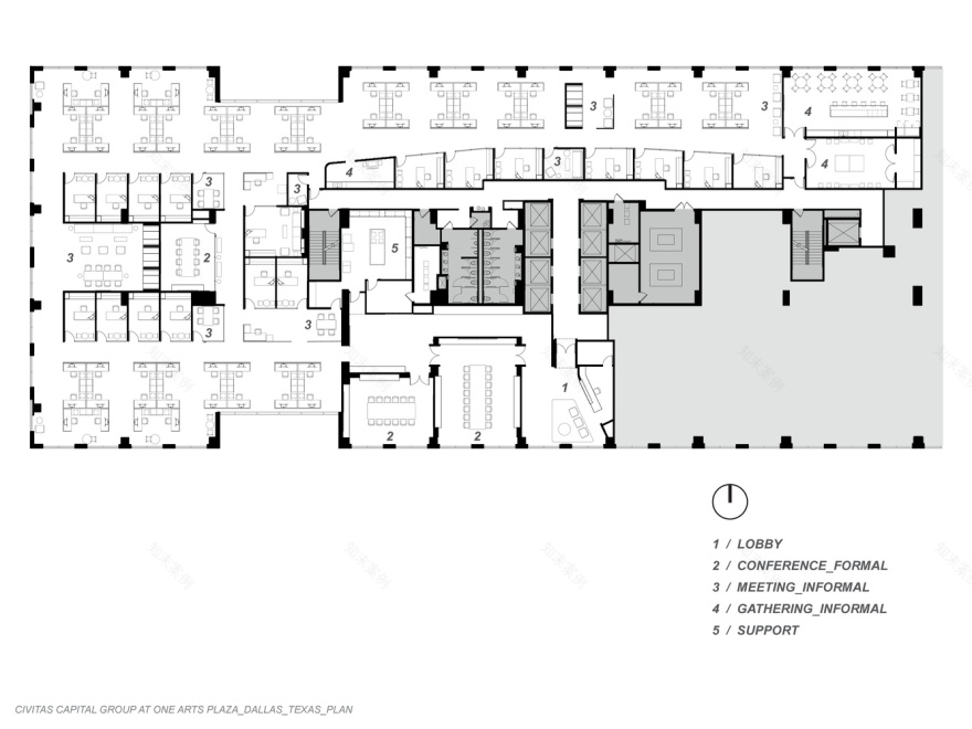
这间办公室是由一系列正式和非正式的通道组织起来的,这些通道隐藏并展示了不同的工作区域,从大堂外的大型会议室到为个人焦点提供软垫的小会议室,再到小型会议室进行远程会议。循环路径由地板和天花板元素定义,而重要的阈值则由颜色为红色。辅助路径作为日常用户的快捷方式,而客人则选择编排路线。
The office is organized by a series of formal and informal paths that both conceal and reveal different work areas from the large conference rooms off the lobby to upholstered booths for individual focus to small meeting rooms for teleconferencing. Circulation paths are defined by floor and ceiling elements while significant thresholds are demarcated by the color red. Auxiliary paths act as shortcuts for daily users while guests take choreographed routes.
The office is organized by a series of formal and informal paths that both conceal and reveal different work areas from the large conference rooms off the lobby to upholstered booths for individual focus to small meeting rooms for teleconferencing. Circulation paths are defined by floor and ceiling elements while significant thresholds are demarcated by the color red. Auxiliary paths act as shortcuts for daily users while guests take choreographed routes.
离开电梯的客人被一个红色的入口接合,这导致整个达拉斯艺术区的壮观景象。在大厅的内部,一个宽敞的地板到天花板的地形图像参考了CiVitas的全球范围。
Upon exiting the elevator guests are engaged by a red portal that leads to a dramatic view of the entirety of the Dallas Arts District. Once inside the lobby an expansive floor to ceiling topographic image references the global reach of Civitas.
Upon exiting the elevator guests are engaged by a red portal that leads to a dramatic view of the entirety of the Dallas Arts District. Once inside the lobby an expansive floor to ceiling topographic image references the global reach of Civitas.
© Robert Yu Photography
(三)余荣文摄影
大堂为Civitas及其客户提供了一个可以容纳全体员工的会议室,进入正式的会议空间。一扇红色的滑动门在通往开放式办公室的过渡过程中点缀着,一旦过了这一步,这个空间就变成了以团队为中心的空间。
The lobby filters into formal meeting spaces for Civitas and its clients with a board room that can accommodate the full staff. A sliding red door punctuates the transition to the open office and once beyond it, the space becomes team centric.
The lobby filters into formal meeting spaces for Civitas and its clients with a board room that can accommodate the full staff. A sliding red door punctuates the transition to the open office and once beyond it, the space becomes team centric.
© Robert Yu Photography
(三)余荣文摄影
Collaborative height workstations wrap the perimeter, allowing the majority of the staff to embrace the views and natural light. Private offices define the core while still maintaining visual connectivity to their team and the view beyond. Uniformity and democracy of the work station and office sizes was paramount to Civitas. Workstation clusters are numerically labeled and call rooms are color coded for ease of communication and directions for both staff and visitors. The semi-open office space is complemented by a series of less formal break-out spaces that have been visually distinguished and offer a multitude of working conditions to give the staff variety in terms of lighting, privacy, and interactivity. These spaces include a single person phone room with acoustic walls and a large social café visually and aromatically separated from the office areas. Required by the design brief, a tournament grade ping pong room sits at the far end of the office. The perforated steel cube breaks up the open office by providing a partially obscured space with lounge chairs and upholstered booth seating with custom shelving that supports cell phone video conferencing and charging of devices. An extra large break-out room is concealed on the northernmost end of the space. With work booths, couches, adjustable conference tables, white boards, and video monitors it facilitates all types of work and is often used for team brainstorming sessions. The overall layout of the space takes the good aspects of open office in terms of team unification and collaboration while respecting the needs of an individual by providing many different work environment options.
Collaborative height workstations wrap the perimeter, allowing the majority of the staff to embrace the views and natural light. Private offices define the core while still maintaining visual connectivity to their team and the view beyond. Uniformity and democracy of the work station and office sizes was paramount to Civitas. Workstation clusters are numerically labeled and call rooms are color coded for ease of communication and directions for both staff and visitors. The semi-open office space is complemented by a series of less formal break-out spaces that have been visually distinguished and offer a multitude of working conditions to give the staff variety in terms of lighting, privacy, and interactivity. These spaces include a single person phone room with acoustic walls and a large social café visually and aromatically separated from the office areas. Required by the design brief, a tournament grade ping pong room sits at the far end of the office. The perforated steel cube breaks up the open office by providing a partially obscured space with lounge chairs and upholstered booth seating with custom shelving that supports cell phone video conferencing and charging of devices. An extra large break-out room is concealed on the northernmost end of the space. With work booths, couches, adjustable conference tables, white boards, and video monitors it facilitates all types of work and is often used for team brainstorming sessions. The overall layout of the space takes the good aspects of open office in terms of team unification and collaboration while respecting the needs of an individual by providing many different work environment options.
© Robert Yu Photography
(三)余荣文摄影
中央走廊内有24个时区时钟,与Civitas所在的城市相对应。在一个讲超过14种语言的办公室里,这种功能装置是它们在全球范围内的视觉表现。
A central corridor contains 24 time zone clocks that correspond to cities that Civitas works within. In an office that speaks over fourteen languages, this functional installation is a visual representation of their global reach.
A central corridor contains 24 time zone clocks that correspond to cities that Civitas works within. In an office that speaks over fourteen languages, this functional installation is a visual representation of their global reach.
© Robert Yu Photography
(三)余荣文摄影
官方选择了所有的家具、材料和照明。选择了经典的家具系统,并强调了现有的外壳空间中的自然光和全景视图。现代的白色墙壁、经典的木材和充满活力的色彩体现在空间的表达体积中,强调自然光是由原始的混凝土地板和粗糙的铸造柱表面来平衡的。这种设计支持创造一个特殊的工作环境的任务,促进人们在一个特殊的层次上工作。
OFFICIAL chose all of the furniture, materials, and lighting. Classic furniture systems were selected and emphasized the natural light and panoramic views that were in the existing shell space. The modern composition of white walls, classic woods, and vibrant colors embodied in expressive volumes of space with an emphasis on natural light is balanced by raw concrete floors and rough cast column surfaces. This design supports the mission of creating an exceptional work environment that promotes people to work at an exceptional level.
OFFICIAL chose all of the furniture, materials, and lighting. Classic furniture systems were selected and emphasized the natural light and panoramic views that were in the existing shell space. The modern composition of white walls, classic woods, and vibrant colors embodied in expressive volumes of space with an emphasis on natural light is balanced by raw concrete floors and rough cast column surfaces. This design supports the mission of creating an exceptional work environment that promotes people to work at an exceptional level.
© Robert Yu Photography
(三)余荣文摄影
Architects OFFICIAL
Location Dallas, Texas, United States
Area 22000.0 m2
Project Year 2018
Photographs Robert Yu Photography
Category Offices Interiors
Manufacturers Loading...
客服
消息
收藏
下载
最近










































