查看完整案例


收藏

下载
架构师提供的文本描述。穿过西阿扎尔巴扬马库的加霍特旅游区,一座白色建筑被视为没有任何装饰,在绿色环境中安顿下来,拥抱着一个木质立方体-亲切的…。内向的构造,也是外向的;内向来自于它对内部空间的看法,而对观众则是虚幻的;当通过一个平台邀请观众进入室内空间时,外向是可以感觉到的。
Text description provided by the architects. Moving through Gajot tourism area in Maku, West Azarbayjan, a white building is seen devoid of any ornament, settled in a green context and embracing a wooden cube kindly… An introvert construction as well as being extrovert; introversion comes from its look toward inner spaces while being illusive for the viewer and extroversion is felt when inviting the viewer to the interior space through a platform.
Text description provided by the architects. Moving through Gajot tourism area in Maku, West Azarbayjan, a white building is seen devoid of any ornament, settled in a green context and embracing a wooden cube kindly… An introvert construction as well as being extrovert; introversion comes from its look toward inner spaces while being illusive for the viewer and extroversion is felt when inviting the viewer to the interior space through a platform.
© Farshid Nasrabadi
(Farshid Nasrabadi)
Design Procces
设计过程
© Farshid Nasrabadi
(Farshid Nasrabadi)
这座建筑的建筑是一种体积和空间的再创造,旨在重新定义建筑与观众之间的关系;试图通过这座建筑来反映人类的情感,并将这些情感转化为建筑环境。
Architecture of this building was a recreation of volume and space aimed to redefine the relationship between architecture and the viewer; there was an attempt to reflect human feelings through this building and to transform the feelings into built environment.
Architecture of this building was a recreation of volume and space aimed to redefine the relationship between architecture and the viewer; there was an attempt to reflect human feelings through this building and to transform the feelings into built environment.
© Farshid Nasrabadi
(Farshid Nasrabadi)
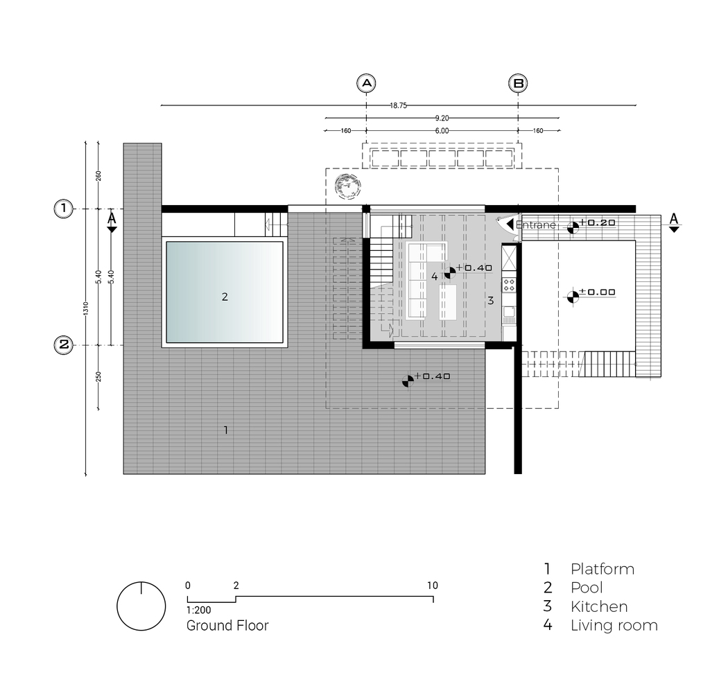
30平方米的建筑面积的挑战导致一楼的面积为5×6平方,在一楼北面和南面有悬臂面,以满足空间要求,并在塑造建筑形式方面发挥基本作用。一楼通过平台连接到地面,专门用于客厅和厨房,一楼包括一间卧室和一间浴室。这两个层次是通过一个轻型悬臂楼梯连接起来的.上楼梯通向屋顶,作为自然景观的观察空间。在平台的西部增加一个水池,以改善舒适平台的自然通风。
The challenge of 30-square-meter gross area leaded to a 5*6 square at ground floor and cantilevered surfaces in northern and southern faces at the first floor to meet spatial requirements as well as playing a fundamental role in shaping the form of the building. Ground floor connected to the earth by a platform is dedicated to living room and kitchen and the first floor includes a bedroom and a bathroom. The two levels are connected by a light-weight cantilevered stairway. The upper stairway leads to the roof which is functioning as an observation space over natural sceneries. A pool is added to the western part of the platform to improve natural ventilation in the cosy platform.
The challenge of 30-square-meter gross area leaded to a 5*6 square at ground floor and cantilevered surfaces in northern and southern faces at the first floor to meet spatial requirements as well as playing a fundamental role in shaping the form of the building. Ground floor connected to the earth by a platform is dedicated to living room and kitchen and the first floor includes a bedroom and a bathroom. The two levels are connected by a light-weight cantilevered stairway. The upper stairway leads to the roof which is functioning as an observation space over natural sceneries. A pool is added to the western part of the platform to improve natural ventilation in the cosy platform.
Section 02
Section 02
这座建筑位于一个处女地,乍一看,自然的支配是显而易见的。体积既独立又相互结合,利用两种具有高对比度的天然材料,强调了形式的简单性。大图片窗口被添加,以允许流动性和透明度的环境。(鼓掌)
The building is located in a district with virgin nature and domination of nature is obvious at the first glance. The volumes are independent as well as combined and the simplicity of forms is emphasized by utilizing two natural materials with high contrast. Large picture windows are added to permit fluidity and transparency to the environment.
The building is located in a district with virgin nature and domination of nature is obvious at the first glance. The volumes are independent as well as combined and the simplicity of forms is emphasized by utilizing two natural materials with high contrast. Large picture windows are added to permit fluidity and transparency to the environment.
© Farshid Nasrabadi
(Farshid Nasrabadi)
我们打算建造一座建筑,它体现了它的性质和功能,作为居住环境的一个粒子。
We were intended to build a building which epitomizes its nature and functions as a particle of the built environment to be inhabited.
We were intended to build a building which epitomizes its nature and functions as a particle of the built environment to be inhabited.
© Farshid Nasrabadi
(Farshid Nasrabadi)
客服
消息
收藏
下载
最近
























