查看完整案例


收藏

下载
© Marie-Caroline Lucat
(c)Marie-CarolineLucas
架构师提供的文本描述。原来房子的建筑结构紧凑而不透明,并没有利用公共公园附近的景观质量。为了满足扩建的需要,该机构建议对这所房子进行翻修,以占用夜间空间,给予它更多的亲密空间,并设计一个对比鲜明的延伸部分,为白天空间提供一个非常开放的空间。
Text description provided by the architects. The compact and opaque typology of the buildings of the original house did not take advantage of the landscaping quality offered by the immediate proximity of a public park. To meet the need for expansion, the agency recommended that the house is renovated by occupying the night area, giving it more intimate spaces, and designing a contrasting extension, by means of a very open volume for the day spaces.
Text description provided by the architects. The compact and opaque typology of the buildings of the original house did not take advantage of the landscaping quality offered by the immediate proximity of a public park. To meet the need for expansion, the agency recommended that the house is renovated by occupying the night area, giving it more intimate spaces, and designing a contrasting extension, by means of a very open volume for the day spaces.
© Marie-Caroline Lucat
(c)Marie-CarolineLucas
Floor Plan
© Marie-Caroline Lucat
(c)Marie-CarolineLucas
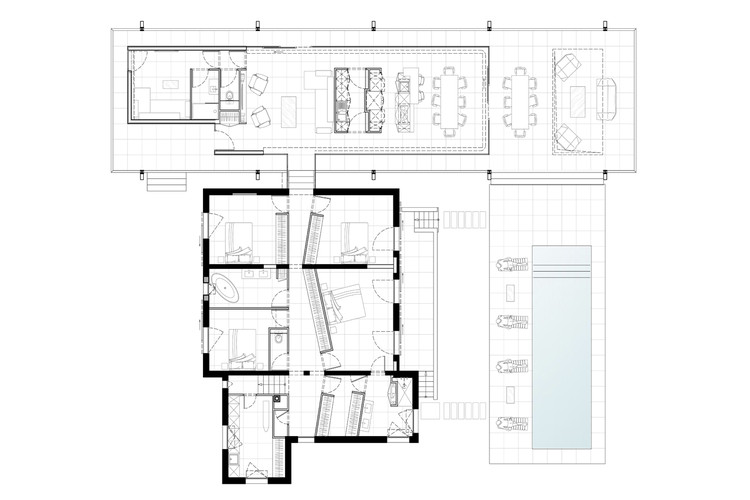
安装一个狭窄的延伸部分是为了占据所有的外部空间。这个布局会产生更清晰的阅读和识别空间,例如向北的新入口,或向南的游泳池。参照米斯·范德洛(Mies Van Der Rohe)的“法恩斯沃思之家”(Farnsworth House),这种结构的类型转化为一个理性而自信的黑色金属框架,允许完全透明,并交替使用大量的玻璃和休息室露台。
The installation of a narrow extension has been designed to occupy all the exterior. This layout generates a clearer reading and identifies spaces, such as the new entrance to the north, or the pool to the south. With reference to the Farnsworth House by Mies Van Der Rohe, the typology of the construction translates into a rational and assertive black metal frame, allowing total transparency, and alternating volumes of glass and lounge terraces.
The installation of a narrow extension has been designed to occupy all the exterior. This layout generates a clearer reading and identifies spaces, such as the new entrance to the north, or the pool to the south. With reference to the Farnsworth House by Mies Van Der Rohe, the typology of the construction translates into a rational and assertive black metal frame, allowing total transparency, and alternating volumes of glass and lounge terraces.
Axonometry 1
轴线测定,轴量法 1
与花园相比,扩建水平是现有房屋水平的中点。楼梯是与原始房屋唯一的物理接触,允许连接不同的楼层。光的技巧使得两个历元之间的过渡。结构的水平性强调了公园的植被和树木的随机性。
© Marie-Caroline Lucat
(c)Marie-CarolineLucas
Architects Brengues Le Pavec architectes
Location Montpellier, France
Lead Architects Julien Brengues, Lionel Le Pavec
Area 205.0 m2
Project Year 2018
Photographs Marie-Caroline Lucat
Category Houses
Manufacturers Loading...
客服
消息
收藏
下载
最近


























