查看完整案例


收藏

下载
© Hiroyuki Oki
(C)小平之(Hirouki Oki)
架构师提供的文本描述。我们的CC住宅项目的设计任务类似于越南霍基明市的大多数其他住宅项目,目的是寻求解决热带人口稠密城市地区的舒适生活条件的方案。这座房子为主人服务,不仅为了保护人们免受炎热、潮湿和高度太阳辐射的热带天气的影响,而且要创造尽可能多的空间,并提供愉快的生活氛围。
Text description provided by the architects. The design task of our project CC Residence, similar to most of other housing projects in Hochiminh City, Vietnam is to find a solution to comfortable living condition in a high populated urban area in the tropics. The house is to serve its owner by creating a shelter not only to protect the people from the hot, humid and highly solar-radiated tropical weather, but also to create as much space as possible as well as to provide an enjoyable living atmosphere.
Text description provided by the architects. The design task of our project CC Residence, similar to most of other housing projects in Hochiminh City, Vietnam is to find a solution to comfortable living condition in a high populated urban area in the tropics. The house is to serve its owner by creating a shelter not only to protect the people from the hot, humid and highly solar-radiated tropical weather, but also to create as much space as possible as well as to provide an enjoyable living atmosphere.
© Hiroyuki Oki
(C)小平之(Hirouki Oki)
随着经济的增长,与亚洲其他城市一样,霍奇明市的人口也在迅速增长,人们对生活的需求也越来越多,为了最大限度地扩大建筑物的建筑面积,越来越多的楼板堆放在一起。因此,自然采光、通风或放松空间等适宜的生活条件越来越难以采用。(鼓掌)
Along with the growth of economy, like other Asian cities, Hochiminh City has a rapidly expanding its population and the demand of living had led to more and more slabs being stacked on one another to maximize floor area of buildings. Consequently, suitable living conditions such as natural lighting, ventilation or relaxing spaces are more and more difficult to be adopted.
Along with the growth of economy, like other Asian cities, Hochiminh City has a rapidly expanding its population and the demand of living had led to more and more slabs being stacked on one another to maximize floor area of buildings. Consequently, suitable living conditions such as natural lighting, ventilation or relaxing spaces are more and more difficult to be adopted.
© Hiroyuki Oki
(C)小平之(Hirouki Oki)
我们对这个项目的想法是重新安排允许的可建造体积,从主卷中提取两个内部空隙的体积,将它们分成几个较小的体积,并将它们连接回周边作为阳台。通过这样做,作为一个整体,我们创造了一个多孔的体积,允许风和自然光在房子的每一个角落流动,同时仍然保持必要的体积。
Our idea for this project is to rearrange the allowed build-able volume by taking the volumes of two internal voids from the main volume, dividing them into several smaller volumes and attached them back to perimeter to serve as balconies. By doing this, as a whole, we create a porous volume which allow wind and natural light to flow in every corner of the house while still keep the necessary required volume.
Our idea for this project is to rearrange the allowed build-able volume by taking the volumes of two internal voids from the main volume, dividing them into several smaller volumes and attached them back to perimeter to serve as balconies. By doing this, as a whole, we create a porous volume which allow wind and natural light to flow in every corner of the house while still keep the necessary required volume.
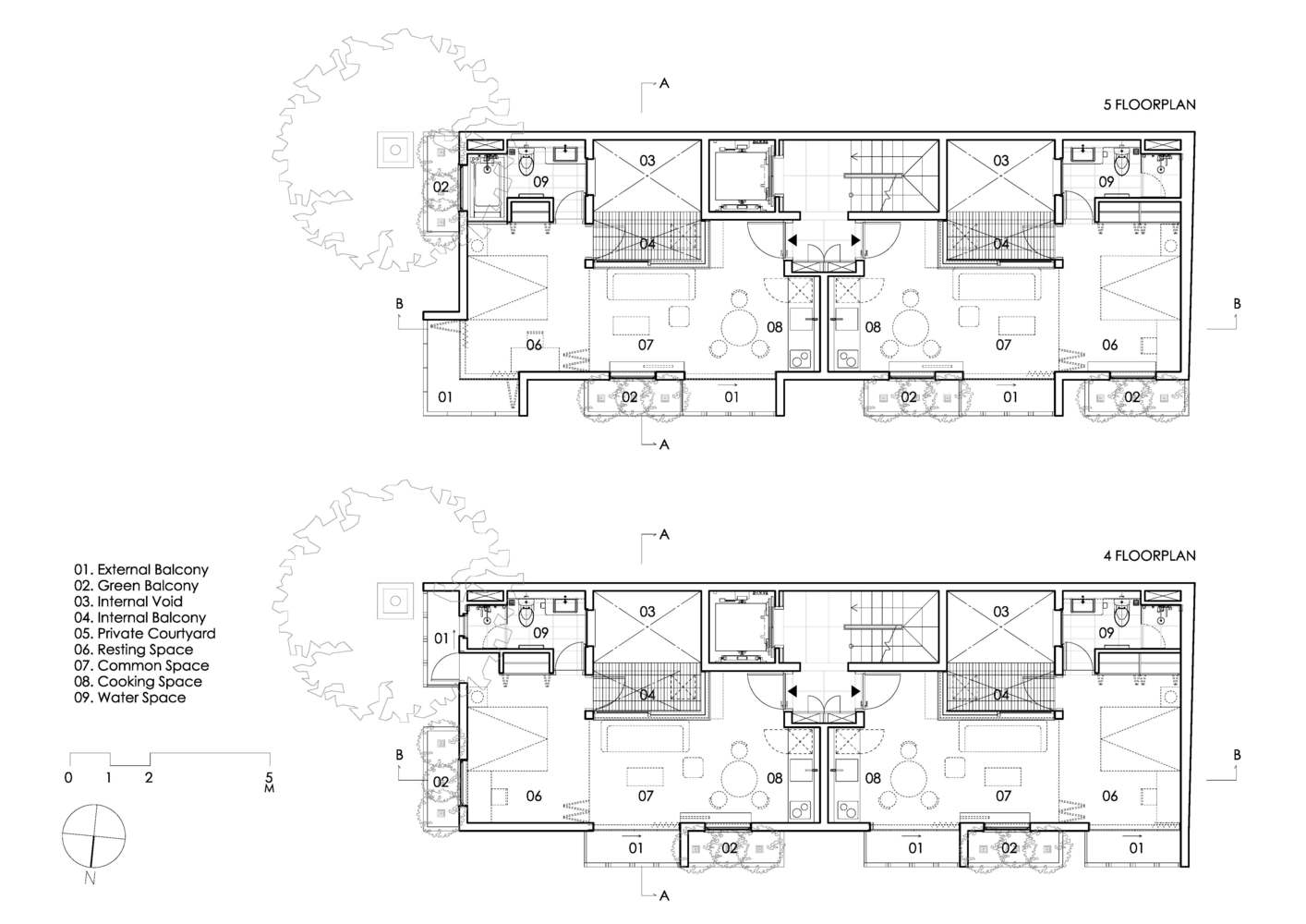
CC住宅有5个故事,由7个公寓组成,其中2个与私人庭院复式。这7个单元包含2个内部空隙,多个阳台面向外部。内部空隙为住宅提供私人庭院、洗衣房阳台和通风竖井,外部阳台与双层砖外部一起创造了一个“双层皮肤”立面,保护了热带天气的住宅。
CC Residence has 5 stories and consists of 7 apartments in which 2 are duplex with private courtyards. These 7 units embrace 2 internal voids with several balconies facing the outside. Internal voids provide private courtyards, laundry balconies and ventilation shafts for the dwellings while external balconies together with the double layer brick exterior create a “double skin” facade protecting the dwellings from the tropical weather.
CC Residence has 5 stories and consists of 7 apartments in which 2 are duplex with private courtyards. These 7 units embrace 2 internal voids with several balconies facing the outside. Internal voids provide private courtyards, laundry balconies and ventilation shafts for the dwellings while external balconies together with the double layer brick exterior create a “double skin” facade protecting the dwellings from the tropical weather.
© Hiroyuki Oki
(C)小平之(Hirouki Oki)
“双层”外墙由内砖层内层、玻璃开口与外砖层、阳台空心砖、绿色植物两层组合而成。这个立面创造了遮阳,允许空气在各层之间流动,更多的使用生物皮肤绿色植物来减少热辐射,并提供放松的气氛作为奖励。
The “double skin” facade is combined with two layers, internal layer of inner brick layer, glass openings and external layer of outer brick layer, balconies’ hollow brick, and greenery. This facade creates sunshade, allows airflow in between the layers and more over uses the bio-skin greenery to reduce heat radiation and provide relaxing atmosphere as a bonus.
The “double skin” facade is combined with two layers, internal layer of inner brick layer, glass openings and external layer of outer brick layer, balconies’ hollow brick, and greenery. This facade creates sunshade, allows airflow in between the layers and more over uses the bio-skin greenery to reduce heat radiation and provide relaxing atmosphere as a bonus.
我们试图通过从屋檐、空心砖墙或绿色植物中创造几种形式的遮阳来捕捉热带住宅的感觉.以缓解严酷的太阳辐射,并提供舒适的自然风流动的放松空间。
We try to capture the sense of a tropical dwelling by creating several forms of sun shade from either an eave, hollow brick walls or greenery, etc...in order to ease up the harsh solar radiation and provide comfortable relaxing spaces where natural wind flows.
We try to capture the sense of a tropical dwelling by creating several forms of sun shade from either an eave, hollow brick walls or greenery, etc...in order to ease up the harsh solar radiation and provide comfortable relaxing spaces where natural wind flows.
© Hiroyuki Oki
(C)小平之(Hirouki Oki)
阳台和绿色植物的位置被研究为随机和自发的,这使房子稍微融入了周围的环境,引进了一种新的建筑,同时也尊重了它的邻里关系。
Locations of the balconies and greenery are studied to be random and spontaneous which slightly make the house blend in the surrounding context introducing a new kind of architecture yet paying respect to its neighborhood.
Locations of the balconies and greenery are studied to be random and spontaneous which slightly make the house blend in the surrounding context introducing a new kind of architecture yet paying respect to its neighborhood.
城市的发展必然会给我们的生活条件带来许多影响,既有积极的一面,也有消极的一面。通过这个项目,我们想提出一种生活在高密度的热带城市地区的解决方案,它满足我们对空间的需求,同时仍然给我们带来了一个“密闭性”愉快的环境。
Development of a City inevitably brings many impacts on our living conditions including both positive and negative ones. Through this project, we would like to propose a solution for a way of living in a high density tropical urban area which satisfies our demand of spaces while still brings us a “close-to-nature” enjoyable environment.
Development of a City inevitably brings many impacts on our living conditions including both positive and negative ones. Through this project, we would like to propose a solution for a way of living in a high density tropical urban area which satisfies our demand of spaces while still brings us a “close-to-nature” enjoyable environment.
© Hiroyuki Oki
(C)小平之(Hirouki Oki)
Architects Trinhvieta-Architects
Location Ho Chi Minh City, Vietnam
Lead Architects Trinh Viet A
Area 700.0 m2
Project Year 2018
Photographs Hiroyuki Oki
Category Apartments
Manufacturers Loading...
客服
消息
收藏
下载
最近




































