查看完整案例


收藏

下载
家是华灯初上时一个温暖的息影。能为业主打造属于他们的个性空间,帮他们实现理想中家的样子就是设计师的愿景。
设计 ▏Designer:合肥麻吉空间设计
撰文 ▏Copywriter:麻吉酱
项目 ▏Project:芜湖蓝鼎观湖苑
面积 ▏Square Meters:148
摄影 ▏Photographer:蔡振铭
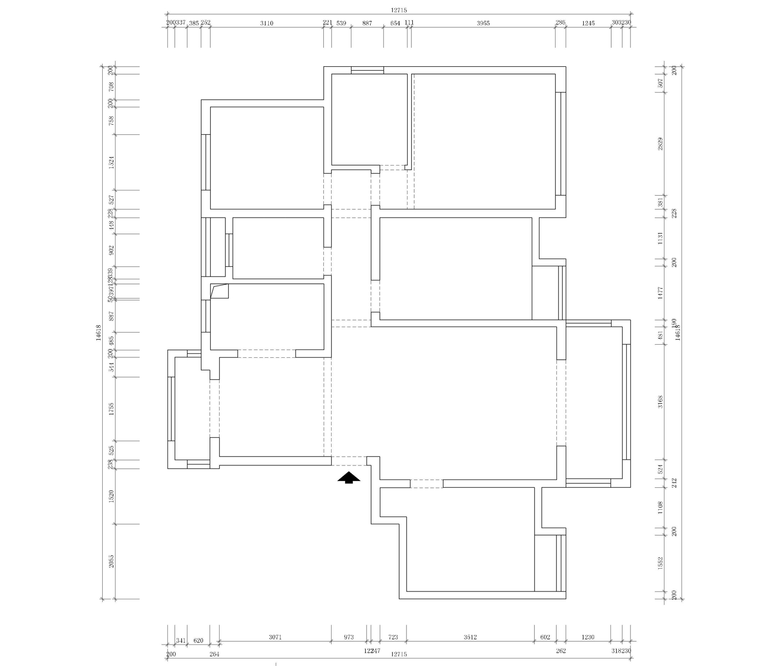
【原始户型图】
【平面方案】
本案的户型改动较大,为了满足本案业主家高频率家庭聚餐的需求,本案直接把客厅南面房间的的整面墙打掉,改为足够满足家庭聚餐的餐厅。客厅西面的原本餐厅的位置改为西厨,这样西厨连接着中厨房,厨房的面积变得足够大,可以在家庭聚餐的时候,方便家人进出取食物。
另一处比较大的改动是主卧室的卫生间,原始主卫右侧墙打掉,空间右移加一面隔断墙,扩大主卫空间,做了完美的干湿分离区域。
【客厅】
案例中的客厅更偏向于沉稳,皮质的沙发与中式椅子组合的搭配独具特色、两个中式黄色鼓凳成为客厅的亮点。
多种风格的融合提供了一个多样化的环境,拥有一定的时尚感与设计感。
【主卧】
木色地板、蓝色床品背景墙、下垂吊灯、通透大窗,在沉稳的色调和用材之下,金色的床头吊灯在室内点缀,烘托着居家的暖意,让居住者在令人心神安定的氛围中,感受到家的方向,也享受着家的温馨。这是家带给我们最迷人的地方。
鱼骨拼接造型地板也是今年很流行的元素,作为卧室的地板。
【次卧】
次卧飘窗做成榻榻米形式,增加储物空间,也是一小块娱乐空间。
阳光如流水般一点点涌入,形成空间的光影流动,温馨而浪漫~
【榻榻米房】
榻榻米风格的娱乐室,是可以做到隐藏功能的,我们可以按遥控或手摇的方式升高地面作为一个桌子,朋友来聚会的时候围炉夜话,桌子降落之后空间也可容纳访客小住。
【厨房】
原本餐厅的位置,设计成了开放式的西厨,热爱烹饪西餐的女主人有了自己独立的操作空间,同时西厨台面也方便两个人的简餐~
【过道】
过道空间看似简单,其实设计师也是在最简单的造型里精心安排了灯光的布局,顶面的射灯也选择了黑色斗胆射灯,排布的位置根据墙面上的内容分布,利用光影丰富了狭长的过道空间。
【卫生间】
卫生间则是遵循干净简洁的原则,但是仍有体现细节的设计。考虑到业主家会有老人居住,淋浴区设置了贴心的扶手。此外,为了给太过于干净的卫生间增添一些活力,设计师选择了浮世绘风格的装饰画,不论是画的内容还是色彩感觉,都是可以融入这个空间的。
【阳台】
阳台放置了吊椅,白日晒晒太阳发发呆。。。多么舒服的阳光午后。夜间在灯光下惬意的阅读享受岁月的静好。
阳台的窗帘也是很特别的设计,其实这里是灰色的纱帘,但是却采用了3倍以上的褶皱打造出蓬松厚重的质感,细节之处尽显设计师的用心。
【END】
客服
消息
收藏
下载
最近

























