查看完整案例


收藏

下载
架构师提供的文本描述。这座宽敞的建筑位于万隆西部一处安静的专用住宅建筑群中。这房子有一个大院子,完整的儿童游乐场,这是符合业主的最初意图。由Rakta工作室设计,现代热带风格成为这座建筑的特色。在房子的某些部分,从建筑物、地板、楼梯和内墙的外墙开始,简单而几何的建筑线条与木材元素相结合,为这座住宅提供了一种温暖自然的氛围。
Text description provided by the architects. This spacious building is located in a quiet exclusive residential complex in West Bandung area. This house has a large yard, complete with a children playground, which is in line with the initial intention of the homeowner. Designed by Rakta Studio, the Modern Tropical style become the characteristic of this building. Simple and geometric building lines combined with wood elements in some parts of the house, starting from the façade of buildings, floors, stairs, and inner walls, provide a warm and natural atmosphere in this residence.
Text description provided by the architects. This spacious building is located in a quiet exclusive residential complex in West Bandung area. This house has a large yard, complete with a children playground, which is in line with the initial intention of the homeowner. Designed by Rakta Studio, the Modern Tropical style become the characteristic of this building. Simple and geometric building lines combined with wood elements in some parts of the house, starting from the façade of buildings, floors, stairs, and inner walls, provide a warm and natural atmosphere in this residence.
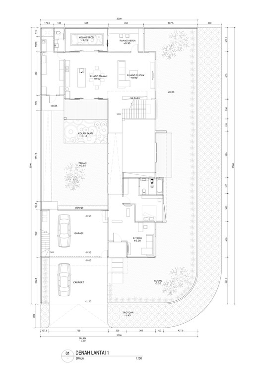
Lower Floor Plan
低层平面图
房子的内部设计与现代装饰和家具相当独特。开放的印象在其空间的功能上是非常强烈的。在建筑物的各个部分,如墙壁和门,玻璃的使用给这座建筑留下了广泛而友好的印象。舒适的儿童游乐场面向露台,那里建了一个方形鱼池。在池塘的边缘是一对白色的椅子,以放松休闲时间。操场的边缘是一个木制楼梯,它的一侧是一个木制分隔墙,也用作装饰家具,容纳各种装饰品和书籍。
The interior design of the house is quite unique with modern and contemporary decorations and furniture. The open impression is very strong in the function of its spaces. The use of glass in various parts of the building such as walls and doors gives a broad and friendly impression on this building. The comfortable children's playground faces the terrace where a square fish pond is built. On the edge of the pond is a pair of white chairs to relax in leisure times. The playground is bordered by a wooden staircase which at its side is built a wooden dividing wall also functioned as decorative furniture that accommodates various ornaments and books.
The interior design of the house is quite unique with modern and contemporary decorations and furniture. The open impression is very strong in the function of its spaces. The use of glass in various parts of the building such as walls and doors gives a broad and friendly impression on this building. The comfortable children's playground faces the terrace where a square fish pond is built. On the edge of the pond is a pair of white chairs to relax in leisure times. The playground is bordered by a wooden staircase which at its side is built a wooden dividing wall also functioned as decorative furniture that accommodates various ornaments and books.
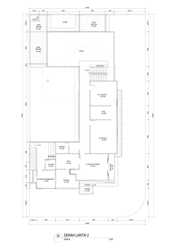
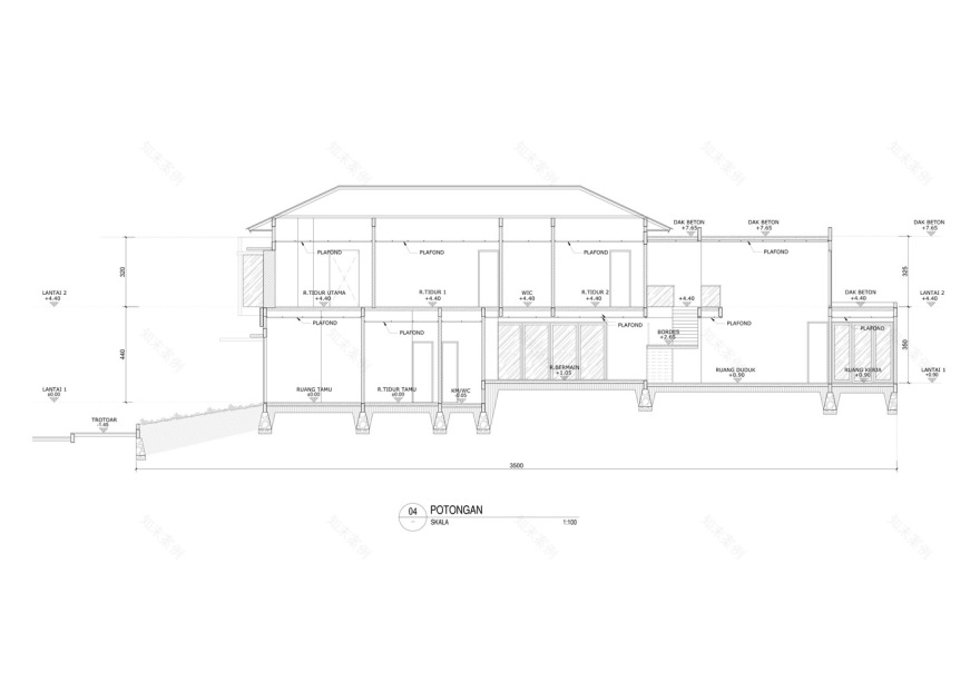
这间家庭客房配有一张黑色沙发和一张躺椅,面对着一台电视机,上面是白色的自助餐。这间家庭客房配有一张木制餐桌,有四把餐椅,上面安装了一盏独特的现代风格灯,吸引了人们的注意。这间餐厅还配有一个简单的厨房,配有现代化的白色装饰。这座建筑的二楼由几间带有木制微风的房间和几扇窗户的玻璃墙组成,这样你就可以立即看到侧院子的景色。总体来说,XZ大厦,一座位于道路钩上的住宅建筑,给人一种宏伟、现代和温暖的印象,给来访或经过的人留下了鲜明的印象。
The family room features a black sofa and a recliner facing a television set on a long white wooden buffet. This family room is united with a wooden dining table with four dining chairs on which a unique contemporary style lamp is installed which attract enough attention. This dining room is also united with a simple kitchen with modern white decor. The second floor of this building consists of several rooms with wooden breezes and glass walls with several windows so that you can immediately see a view of the side yard. Overall, XZ House, a residential building located on the hook of the road, gives a grand, modern and warm impression that creates a distinct impression for people who visit or pass by.
The family room features a black sofa and a recliner facing a television set on a long white wooden buffet. This family room is united with a wooden dining table with four dining chairs on which a unique contemporary style lamp is installed which attract enough attention. This dining room is also united with a simple kitchen with modern white decor. The second floor of this building consists of several rooms with wooden breezes and glass walls with several windows so that you can immediately see a view of the side yard. Overall, XZ House, a residential building located on the hook of the road, gives a grand, modern and warm impression that creates a distinct impression for people who visit or pass by.
Architects Rakta Studio
Location Bandung, Indonesia
Lead Architects Vidor Saputro & Ronald Adikusumo
Area 600.0 m2
Project Year 2018
Photographs KIE
Category Houses
Manufacturers Loading...
客服
消息
收藏
下载
最近

















