查看完整案例

收藏

下载
架构师提供的文本描述。这座房子位于大浪市的一条小巷里,宽度只有4米,深度超过25米。任务是为一个4人的小家庭设计一个完整的生活空间,包括车库、住所、厨房和餐厅、自习室和3间独立的卧室。
Text description provided by the architects. This house is located in a small alley in Danang City with a width of only 4m and a depth of more than 25m. The task is to design a full living space for a small family of 4 people including a Garage, Living, Kitchen and Dining, Study room, and 3 separate bedrooms.
Text description provided by the architects. This house is located in a small alley in Danang City with a width of only 4m and a depth of more than 25m. The task is to design a full living space for a small family of 4 people including a Garage, Living, Kitchen and Dining, Study room, and 3 separate bedrooms.
Sectional perspective
分段透视
越南联排别墅的特色是非常小的房子,它是建在一起的。如果没有一个良好的交通和设计解决方案,它将是非常黑暗和闷热,因为缺乏光和空气。所以,我立刻想到了一个解决方案,使用两个单独的交通和楼梯,结合天窗和垂直花园。第一个目标是让阳光和风进入房子,使房子尽可能明亮和通风。第二种方法是避免交通重叠,避免使用私人空间作为一种从房间到房间的移动方式。我用玻璃做屋顶,打开许多窗户,让所有的空间都能享受天窗和垂直花园的绿色。无论是在客厅、厨房还是卧室,你都可以看到和感受到绿色空间带来的舒适。
The specialty of Vietnam's townhouses is very small houses and it is built close together. Without a good traffic and design solution, it would be very dark and stuffy due to the lack of light and air. So, I immediately thought of the solution that would use two separate traffic and staircases combined with the skylights and Vertical garden. The first goal is to get sun and wind into the house and to make the house as bright and airy as possible. The second one is to keep traffic from overlapping, avoiding the use of private space as a way to move from room to room. I use glass for the roof and open many windows, so that all the space is enjoying the green from the skylight and vertical garden. Whether in the living room, kitchen or bedroom, you can see and feel the comfort that green spaces bring.
The specialty of Vietnam's townhouses is very small houses and it is built close together. Without a good traffic and design solution, it would be very dark and stuffy due to the lack of light and air. So, I immediately thought of the solution that would use two separate traffic and staircases combined with the skylights and Vertical garden. The first goal is to get sun and wind into the house and to make the house as bright and airy as possible. The second one is to keep traffic from overlapping, avoiding the use of private space as a way to move from room to room. I use glass for the roof and open many windows, so that all the space is enjoying the green from the skylight and vertical garden. Whether in the living room, kitchen or bedroom, you can see and feel the comfort that green spaces bring.
© To Huu Dung
(三)对虎粪
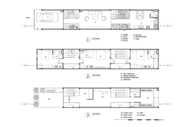
一楼设有汽车车库,并通过滑动门系统与其他空间隔开。客厅很宽敞,很舒服,旁边是客厅和厨房之间的一个小鱼池。从一楼到屋顶,垂直花园使用顺畅,使房屋空间变得绿色,人们更接近自然。
The first floor is arranged garage for cars and separated from other spaces by the sliding door system. The living room is quite spacious and comfortable, beside it is a small Koi fish pond between the living room and the kitchen. The Vertical gardens is used smoothly from the first floor to the roof make the house space green and people will be closer to nature.
The first floor is arranged garage for cars and separated from other spaces by the sliding door system. The living room is quite spacious and comfortable, beside it is a small Koi fish pond between the living room and the kitchen. The Vertical gardens is used smoothly from the first floor to the roof make the house space green and people will be closer to nature.
© To Huu Dung
(三)对虎粪
二楼有3间卧室,包括中间卧室和两侧儿童的两个卧室。卧室是通过桥梁走廊连接的,所以父母可以很容易地控制两个孩子的活动和学习。这两个楼梯的布局确实促进了使用中的效率,私人空间和公共空间的连接非常简单,非常有效。
The second floor has 3 bedrooms, including a parent bedroom in the middle and two bedrooms of the children on two sides. The bedrooms are connected by bridge corridors, so parents can easily control the activities and studying of two children. The layout of the two stairs really promote efficiency in the use, the connection of private and common space is very simple and extremely effective.
The second floor has 3 bedrooms, including a parent bedroom in the middle and two bedrooms of the children on two sides. The bedrooms are connected by bridge corridors, so parents can easily control the activities and studying of two children. The layout of the two stairs really promote efficiency in the use, the connection of private and common space is very simple and extremely effective.
三楼包括礼拜室、书房、洗衣房、更衣室相结合的阅读空间。也有一个绿色的空间和游乐场,为家庭在美丽的日子或浪漫的夜晚的父母。
The 3rd floor includes the worshipping poom, the reading space combined with the study room, laundry room and the dressing room. There is also a green space and playground for families on beautiful days or for romantic evenings of parents.
The 3rd floor includes the worshipping poom, the reading space combined with the study room, laundry room and the dressing room. There is also a green space and playground for families on beautiful days or for romantic evenings of parents.
© To Huu Dung
(三)对虎粪
客服
消息
收藏
下载
最近















































