查看完整案例


收藏

下载
© Hiroyuki Oki
(C) 小平之 (Hirouki Oki)
建筑师提供的文字说明。这家度假别墅位于越南东南沿海的海滨城市 NhaTrang,位置非常优越。雕刻在山上,500 平方米的场地享有独特的海景,可以俯瞰背景中的海湾和山脉。目的是在概念的早期发现解决方案,以优化该观察体验,并在未来管理该住宅区域的高建筑密度。
Text description provided by the architects. Located in Nha Trang, a sea side city of Vietnam’s south east coast, this vacation villa has a very privileged location. Carved into the hill, the site of 500 sqm enjoys a unique ocean view, overlooking the bay and mountains in the background. The goal was to find solutions at early stage of the conception to optimize this viewing experience and manage the high constructions density of this residential area in the future.
Text description provided by the architects. Located in Nha Trang, a sea side city of Vietnam’s south east coast, this vacation villa has a very privileged location. Carved into the hill, the site of 500 sqm enjoys a unique ocean view, overlooking the bay and mountains in the background. The goal was to find solutions at early stage of the conception to optimize this viewing experience and manage the high constructions density of this residential area in the future.
© Hiroyuki Oki
(C) 小平之 (Hirouki Oki)
整体设计强调建筑造型的简单性、原材料和天然材料的使用以及一些创新的内部功能。此外,主要建筑的野蛮影响和精心设计的内部之间的对比也是强烈的。游客的体验,当进入,是真实的。
The overall design put the accent on the simplicity of the construction shapes, the use of raw and natural materials and some innovative interior functions. Also, the contrast between the brutalist influences of the main construction and the interiors carefully crafted is intense. The visitors experience, when coming inside, is real.
© Hiroyuki Oki
(C) 小平之 (Hirouki Oki)
该物业可从后街进入,在网站的上部。由粗糙雕刻的石雕组成的墙,参照非常岩石的直接环境,街道的正面是完全不透明的。它确保了隐私,并从根本上使别墅朝向大海。花岗岩砌块上的阴影和灯光组合增加了戏剧效果,并在街道、白天和夜晚的到来中给人留下了强烈的印象。
The property is accessible from the back street, on the upper part of the site. Consisting of a wall of coarsely carved sculptural stones, in reference to the very rocky immediate environment, the facade on the street is completely opaque. It ensures privacy and orients radically the villa towards the sea. The sets of shadows and lights on the granite blocks array add drama effect and create a strong impression at the arrival from the street, day and night.
© Hiroyuki Oki
(C) 小平之 (Hirouki Oki)
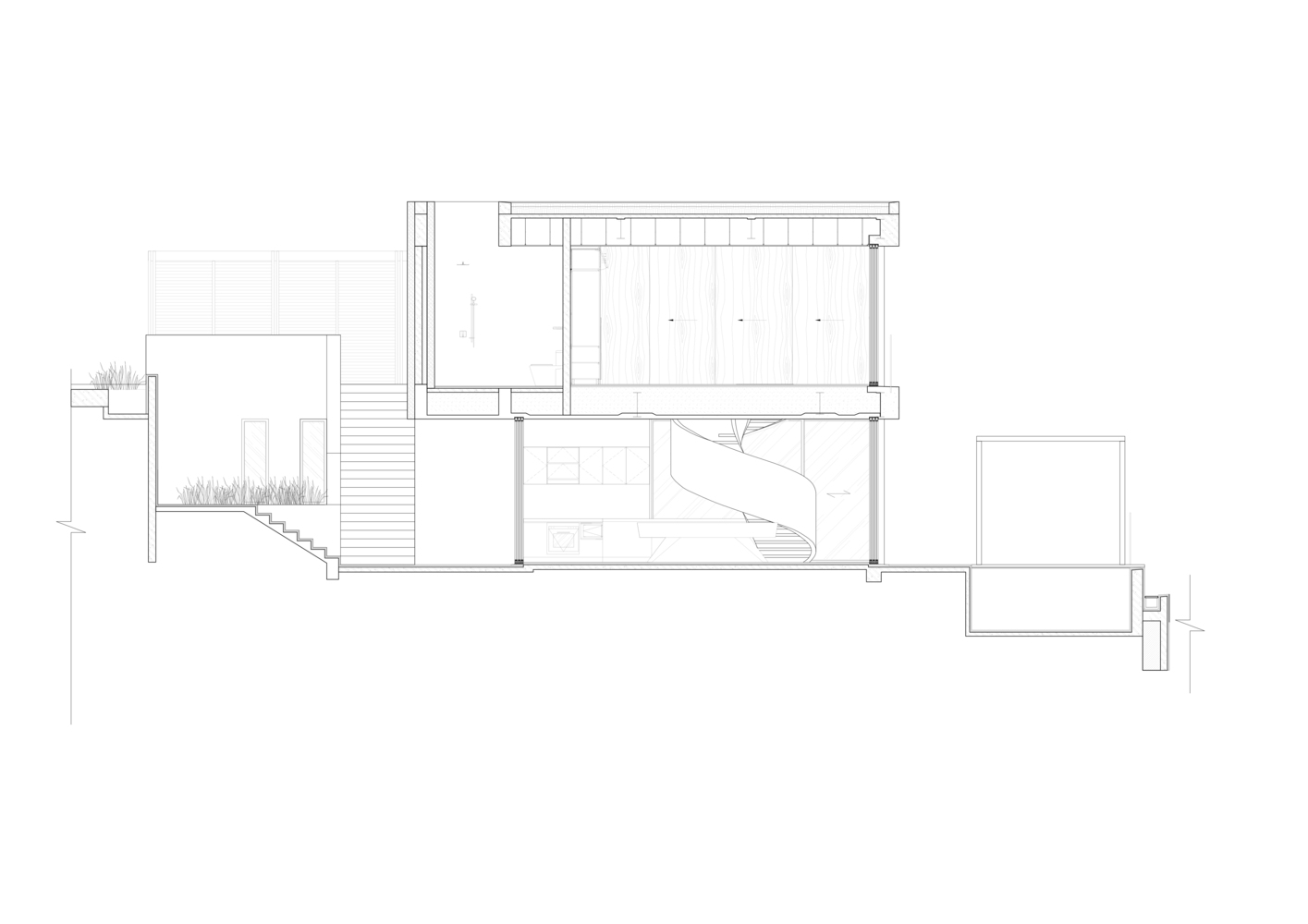
室外楼梯通向一楼。该空间是完全开放的,由于结构设计,它已经允许删除所有的前柱,除了两个支架集成到窗口框架。厨房和技术空间保持在后面,全景视野畅通无阻。
An outdoor staircase leads to the ground floor. The space is fully open thanks to the structure design which has allowed to remove all front columns except 2 supports integrated into the windows frame. Kitchen and technical spaces are kept in the back, the panoramic view is unobstructed.
© Hiroyuki Oki
(C) 小平之 (Hirouki Oki)
Ground floor plan
© Hiroyuki Oki
(C) 小平之 (Hirouki Oki)
随着大窗户的打开,室内和室外都处于完美的空间连续性。沙拉已经在地面水平上被凹槽,以保持视野清晰,而无限池连接天空和风景与地方。
With the large windows opened, Indoors and outdoors are in perfect spatial continuity. The Sala has been recessed on ground level to keep the view cleared while the infinity pool connects the sky and the scenery with the place.
© Hiroyuki Oki
(C) 小平之 (Hirouki Oki)
位于中心位置的雕塑式螺旋楼梯,是室内设计的焦点,视觉上足够强大,能够与海洋景观的自然吸引力保持平衡。
The sculptural spiral stair, placed in central position, is the focal point of the interior design, visually strong enough to do the balance with the ocean view’s natural attraction.
The sculptural spiral stair, placed in central position, is the focal point of the interior design, visually strong enough to do the balance with the ocean view’s natural attraction.
© Hiroyuki Oki
(C) 小平之 (Hirouki Oki)
根据个人和家庭的需要,一楼可以完全通过移动的滑动木墙进行调整。从一个完全开放的空间到一层,分裂成多个组合,最多有 3 个空调卧室,每个房间都有开放式的浴室。这个好玩的系统是为了能够最大限度地实现视图和交互而实现的。涂油的木材是主要的材料,提供舒适和豪华的外观和感觉,相比之下,未经切割的石头块浴室。
Depending on the needs of the individuals and families, the first floor can be totally modulated with moving sliding timber walls. From a space fully opened to a floor split into multiple combinations with a maximum of 3 air-conditioned bedrooms, each with open-to-sky bathroom. This playful system was implemented in order to be able to maximize the views and interactions. Oiled timber is the dominant material, offering cozy and luxurious look and feel, in contrast with the raw cut stone blocks of the bathrooms.
© Hiroyuki Oki
(C) 小平之 (Hirouki Oki)
主卧室的设计采用的是可伸缩玻璃门框。在延伸的位置,房子消失在后面和“海景”的观察经验下的星星是总计。
The master bedroom has been designed with a retractable glass loggia motorized. In extended position, the house disappears in the back and the “sea-scene” viewing experience under the stars is total.
© Hiroyuki Oki
(C) 小平之 (Hirouki Oki)
与建筑造型的简单性相比,多重审美的效果和功能元素给人留下了强烈的印象,而别墅的首要价值是你可以从各个角落欣赏到的美景。
In contrast with the simplicity of the construction shapes, the multiples esthetic’s effects and functional’s elements create a strong impression while the first value of the villa is the beauty of the scenery you can enjoy from every corner.
© Hiroyuki Oki
(C) 小平之 (Hirouki Oki)
Architects MM++ architects
Location Nha Trang, Vietnam
Lead Architects Mỹ An Phạm Thị, Michael Charruault
Area 300.0 m2Project Year 2018
Photographs Hiroyuki Oki
客服
消息
收藏
下载
最近












































