查看完整案例


收藏

下载
天有时,地有气,材有美,工有巧,合此四者,然后可以为良。 ——《考工记》
1.项目格调水岸清华瀚宫建筑外主面恢弘大气,色彩简洁,是东方的建造布局,却没有东方的浓墨重彩,有对细节的绝对强调,却没有拘泥小节的刻板,尽显苏式格调,乃苏州开山力作!
2.材质应用黑胡桃木本色自然,木质搭配皮质、棉麻、刺绣,岩板,无形之中增加了一种现代的干净气质,东方焦墨山水画的意境也随之而出。
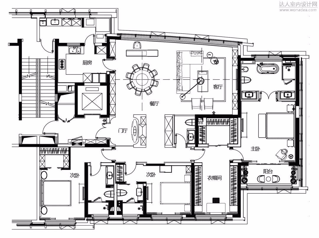
3.平面方案
4.案例实景玄关设计感十足的MSC-6175玄关柜搭配名家刺绣山水图置于订制曲形木饰背景,彰显了主人既东方又国际的美学品味。
客厅简约又不失精致细节的木质家具组合让客厅摆脱了繁琐与浮夸,呈现出一种令人舒心的美,这种美源自于传世家具中“激情”的形体美感,和“简于形·奢于心”的独特魅力。
餐厅温润的木色,洁净的岩板、优美的曲线造型、以及其深远的意境,化解了现代居住空间钢筋水泥的冰冷,营造了一室温馨淡雅。眼前是美食,窗外是世界,如此,便是向往的生活。
茶空间 一盏灯,一壶茶,一卷书来细思量。
主卧TREASURE传世产品都源自于对自然的感悟的灵感,汲取于自然万物的形体造型之美,刚好完美迎合了卧室空间对于舒适、沉稳、悦目格调的氛围营造需求。
卫浴卫浴柜结合户型和风格需求进行定制,台面选西班牙德赛斯岩板,既现代又统一,且满足了卫浴空间明快,便利的功能和审美需求。
衣帽间定制衣柜解决了户型结构对于柜体尺寸的限制, 独有的定制给人以专属,温和的黑胡桃木色给人以温度,再搭配浅色欧枫让整个更加精致洁净,精湛的工艺给人以态度,定制的不是家具,更是一种精致的生活方式。
走廊狭长的走廊墙面订制木饰面,拉散了视觉的聚焦,简化了行走中的视觉重点,木面本身纵向条纹视觉延伸性拉伸了空间高度,缓解了狭长横向过道空间所长生的紧张感。廊道尽头的陈设与其营造了曲径通幽之感。
门业主对TREASURE传世产品情有独钟,为了空间的整体呈现更完美,最后空间里所有的门及门套都要求为其量身订制,干净简练不做作,更显从容大气。
客服
消息
收藏
下载
最近















































