查看完整案例

收藏

下载
© Walter Gustavo Salcedo
c.Walter Gustavo Salcedo
架构师提供的文本描述。这项工作提出了一种非常简单的操作,即在强制性取款和现有棚屋(棚屋)多余地板的应用之后,最大限度地利用可用土壤产生的体积。
Text description provided by the architects. The work proposes a very simple operation, the addition of a volume resulting from the exploitation to the maximum of the usable soil after the application of the obligatory withdrawals and of the excess floor of the existing shed (shed).
Text description provided by the architects. The work proposes a very simple operation, the addition of a volume resulting from the exploitation to the maximum of the usable soil after the application of the obligatory withdrawals and of the excess floor of the existing shed (shed).
© Walter Gustavo Salcedo
c.Walter Gustavo Salcedo
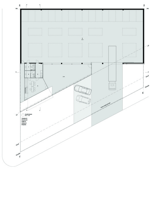
Ground Floor Plan
© Walter Gustavo Salcedo
c.Walter Gustavo Salcedo
背景:该路线位于一条快速车辆交通走廊(Juan Domingo Perón)上,沿索-东北方向横过罗萨里奥市,这条路线是33国道的延续,离Av非常近。直到大约10年前,它还作为城市的外围环工作,但由于南方和西方伟大的罗莎莉的成长,它成为了这一新格局的接缝。该社区主要是住宅用途的低密度住房,工业,大企业,和仓库.位于拐角处的地块有一个梯形的长方形几何图形,必须在胡安多明戈Perón大道的市政线上强制撤出10米。
Context: It is located on a fast vehicular traffic corridor (Juan Domingo Perón) that crosses the city of Rosario in the SO-NE direction, this route is the continuation of the national route 33 and very close to Av. De Circunvalación, which, until About 10 years ago it worked as a peripheral ring to the city but due to the growth of the great Rosary to the South and the West, it became a seam of this new configuration. The neighborhood is predominantly residential use of low-density housing, industries, large businesses, and warehouses. The plot located on the corner has a trapezoid rectangle geometry to which a mandatory 10-meter withdrawal on the municipal line on Juan Domingo Perón Avenue was to be applied.
Context: It is located on a fast vehicular traffic corridor (Juan Domingo Perón) that crosses the city of Rosario in the SO-NE direction, this route is the continuation of the national route 33 and very close to Av. De Circunvalación, which, until About 10 years ago it worked as a peripheral ring to the city but due to the growth of the great Rosary to the South and the West, it became a seam of this new configuration. The neighborhood is predominantly residential use of low-density housing, industries, large businesses, and warehouses. The plot located on the corner has a trapezoid rectangle geometry to which a mandatory 10-meter withdrawal on the municipal line on Juan Domingo Perón Avenue was to be applied.
© Walter Gustavo Salcedo
c.Walter Gustavo Salcedo
重要性:外部封闭。对于外部封口,采用了微穿孔灰颜色的预涂瓦楞纸.上层的办公室通过5 5mm的夹层玻璃从视觉上转向外部,这反过来反映了眼前的景观,并允许观察内部的物化情况。内设办公室、接待室、更衣室和会议室等设施的体积由18毫米桉树酚醛木制成。
Materiality: Exterior closure. For the external closures, pre-painted corrugated sheets with a microperforated gray ash color were used. The offices on the upper floor are visually turned towards the outside by means of laminated glass 5 + 5mm which in turn reflect the immediate landscape and allow to observe the materialization of the interior. Interiors The volume that makes up the program of offices, reception, changing rooms and meeting room is made of phenolic wood of 18 mm of eucalyptus.
Materiality: Exterior closure. For the external closures, pre-painted corrugated sheets with a microperforated gray ash color were used. The offices on the upper floor are visually turned towards the outside by means of laminated glass 5 + 5mm which in turn reflect the immediate landscape and allow to observe the materialization of the interior. Interiors The volume that makes up the program of offices, reception, changing rooms and meeting room is made of phenolic wood of 18 mm of eucalyptus.
Perspective Section
透视科
链接:这个项目最初的意图之一是如何从工作内部到工作的内部,从内部到外部,从外部到内部产生物理和感性的视觉效果。为了获得这些不同的视觉和身体残疾,使用了不同的物质和技术资源。在城市地下室层,他们使用了凹槽微穿孔板,允许内部-外部视觉和持续的空气流动,在管理部门是在这个过滤器后面的2M,由木工产生一个封闭的外壳。这些链接是在存款和管理所所在的底层提供即时和接近视觉效果的,并在办公室和会议室所在的上一层的领土上有广泛的视觉效果。
Links: One of the initial intentions of the project was how to generate physical and perceptual visuals from inside the work to the inside of the work, from the inside to the outside and from the outside to the inside. Different material and technical resources were used to obtain these different visual and physical disabilities. At the urban basement level, they used grooved microperforated sheets allowing the interior-exterior visual and continuous air flow, in the administration sector is behind this filter at 2m separated by carpentry generating a closed enclosure. The links are generated with immediate and near visuals on the ground floor where the deposit and administration are located and with extensive visuals to the territory on the upper floor where the offices and meeting room are located.
Links: One of the initial intentions of the project was how to generate physical and perceptual visuals from inside the work to the inside of the work, from the inside to the outside and from the outside to the inside. Different material and technical resources were used to obtain these different visual and physical disabilities. At the urban basement level, they used grooved microperforated sheets allowing the interior-exterior visual and continuous air flow, in the administration sector is behind this filter at 2m separated by carpentry generating a closed enclosure. The links are generated with immediate and near visuals on the ground floor where the deposit and administration are located and with extensive visuals to the territory on the upper floor where the offices and meeting room are located.
© Walter Gustavo Salcedo
c.Walter Gustavo Salcedo
调查:这项工作被认为是一个连接并在相邻街区之间产生联系的对象,认为它是两种城市环境结合的工具。在构造上,试图产生一个从外部被认为是固体的、封闭的、紧凑的、从内部到开放、流动、照明和温暖的外部的一片。
Investigation: The work was conceived as an object that links and generates a link between the blocks adjacent to it, thinking as a vehicle of union between both urban situations. Tectonically an attempt was made to generate a piece that is perceptually seen from the outside as solid, closed and compact and from the inside to the open, flowing, illuminated and warm exterior.
Investigation: The work was conceived as an object that links and generates a link between the blocks adjacent to it, thinking as a vehicle of union between both urban situations. Tectonically an attempt was made to generate a piece that is perceptually seen from the outside as solid, closed and compact and from the inside to the open, flowing, illuminated and warm exterior.
© Walter Gustavo Salcedo
c.Walter Gustavo Salcedo
Detail Type
细节类型
© Walter Gustavo Salcedo
c.Walter Gustavo Salcedo
Architects Federico Marinaro Arquitecto
Location S2010ABR, Av. Pres. Perón 6780, S2010ABR Rosario, Santa Fe, Argentina
Architect in Charge Federico Marinaro
Area 753.5 m2
Project Year 2016
Photographs Walter Gustavo Salcedo
Category Institutional Buildings
客服
消息
收藏
下载
最近























