查看完整案例


收藏

下载
走过了很多路,看过了世界,
不追求奢侈,但需要完美。 我们费尽周折,
只为让生活成为它本来应该是的样子。
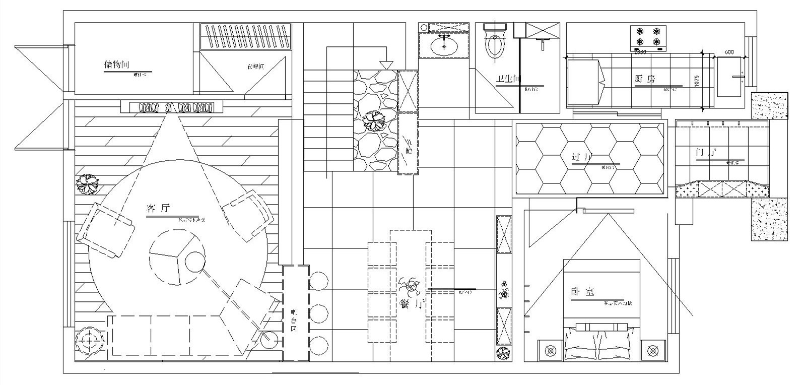
项目地址:湖北十堰▪祥源湾 风格:北欧 硬装设计:湖北三棱镜设计 软装设计:湖北三棱镜设计 设计师:敬伟 ---------------------------------------------------------- 平面图: 一层平面:
国际室内设计师协会高级设计师
晋江广播电视台嘉宾主持人
十堰广播电视台家装栏目特约嘉宾
2014年金堂奖年度新锐设计师
2016年中国装饰协会休闲娱乐空间银奖
2016年中国装饰协会办公类优秀创意奖
2017年中国装饰协会家居别墅金奖
2017年中国装饰协会休闲娱乐类银奖
客服
消息
收藏
下载
最近

































