查看完整案例

收藏

下载
1.工作与生活共生3/1大厦位于一个狭窄的住宅区,在重工业地区是很难找到的。当你走在离狭窄街道几步远的地方,你会看到各种类型的工厂。虽然许多工厂由于资本主义价值观被转移到市郊,但宋苏东仍然提供了活跃和健康的城市景观,在那里工作和生活是没有边界的。
1. Symbiosis of Work and Life Seongsu-dong 3/1 Building is located in a narrow residential area which is hard to find in heavy industry areas. When you walk few steps away from the narrow street, you will see various types of running factories. While many factories are transferred to outskirts of the city due to capitalistic values, Seongsu-dong still provides active and health cityscape where work and life exist together without boundary.
1. Symbiosis of Work and Life Seongsu-dong 3/1 Building is located in a narrow residential area which is hard to find in heavy industry areas. When you walk few steps away from the narrow street, you will see various types of running factories. While many factories are transferred to outskirts of the city due to capitalistic values, Seongsu-dong still provides active and health cityscape where work and life exist together without boundary.
© Kyung Roh
(C)卢京生
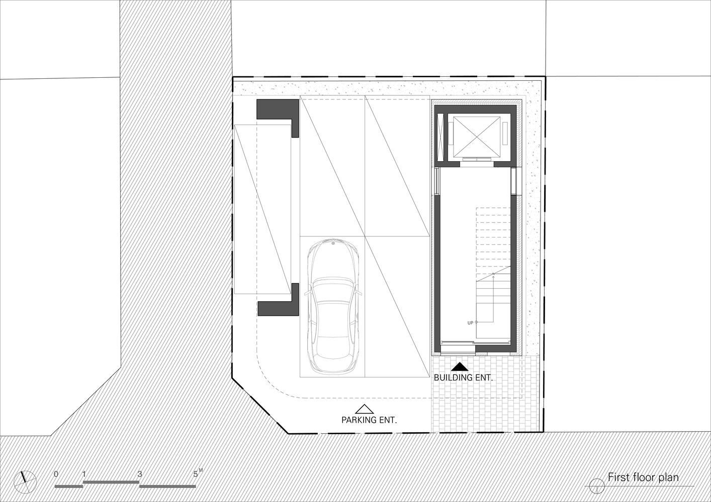
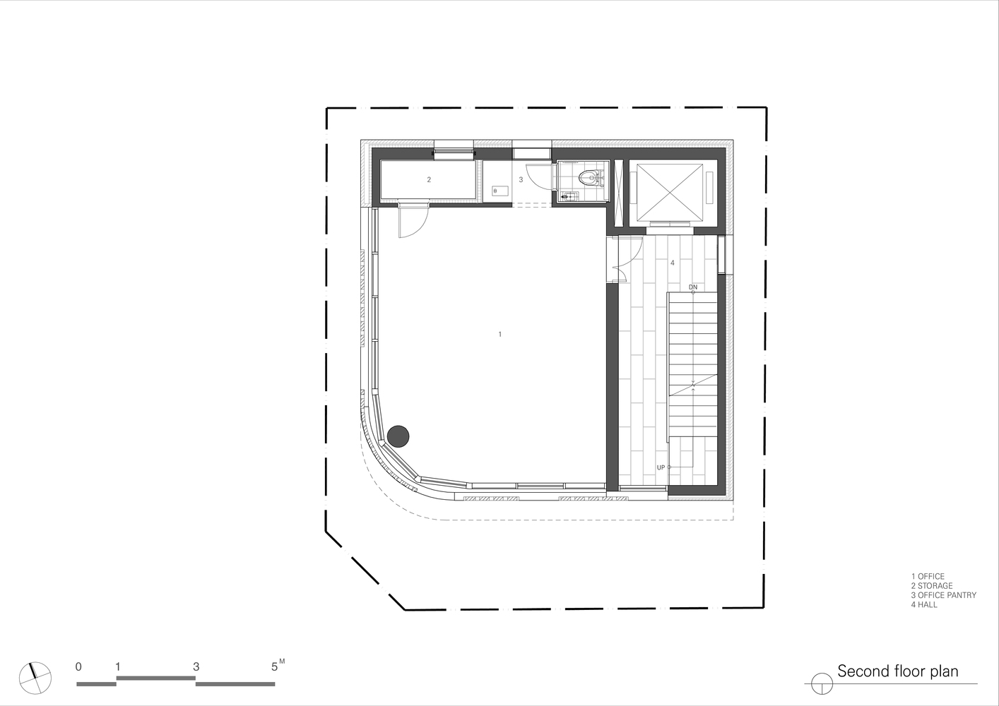
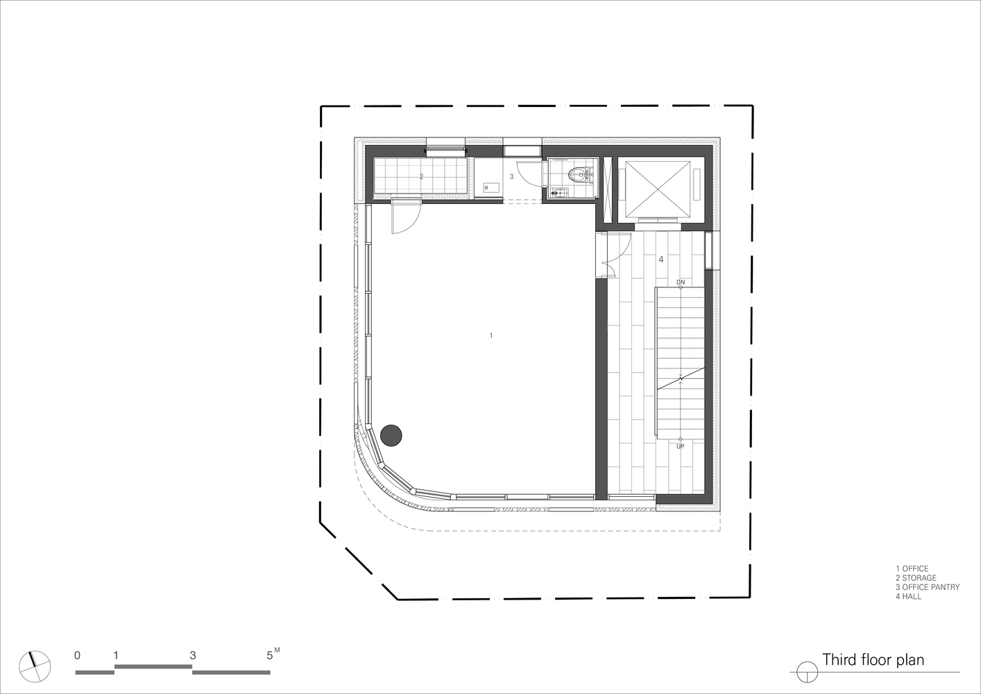
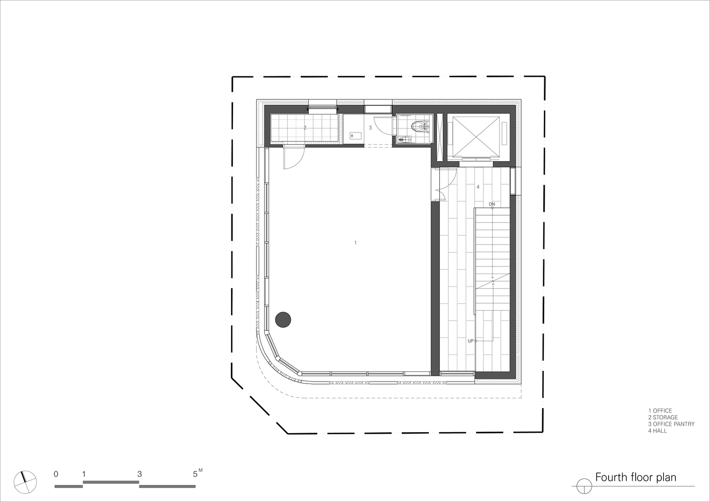
与宋苏东的城市景观一样,3/1大楼是一个工作与生活共存的地方。3/1楼是一座综合建筑,底层有商业设施,上层有演播室公寓。有了这样的复合建筑,白天和晚上不同的用户可以有效地共享小场地的密闭空间。
Like Seongsu-dong’s cityscape, 3/1 Building is a place where work and life exist together. 3/1 Building is a composite building with commercial facilities in the lower floors and studio apartments in upper floors. With such composite building, different users at day time and night time can effectively share confined space in the small site.
Like Seongsu-dong’s cityscape, 3/1 Building is a place where work and life exist together. 3/1 Building is a composite building with commercial facilities in the lower floors and studio apartments in upper floors. With such composite building, different users at day time and night time can effectively share confined space in the small site.
© Kyung Roh
(C)卢京生
2.颠倒弥撒3/1大楼位于延木江7ga-吉尔,森素东,你会看到类似的三层多户住宅的线与阳台上的外观。虽然它们与首尔的其他老住宅区相似,但成东是一个重工业地区,建筑面积比例高达400%。在这条街上新建的建筑物有7到8层以上,他们将填补狭窄的街道。
2. Upside Down Mass 3/1 Building is located in Yeonmujang 7ga-gil, Sengsu-dong and you will see the lines of similar three-story multi-household houses with balcony on the façade. Although they are similar to other old residential areas in Seoul, Seongsu-dong is a heavy industry area with floor area ratio of up to 400%. The newly built buildings in the street have more than 7 to 8 floors and they will be stuffing the narrow street.
2. Upside Down Mass 3/1 Building is located in Yeonmujang 7ga-gil, Sengsu-dong and you will see the lines of similar three-story multi-household houses with balcony on the façade. Although they are similar to other old residential areas in Seoul, Seongsu-dong is a heavy industry area with floor area ratio of up to 400%. The newly built buildings in the street have more than 7 to 8 floors and they will be stuffing the narrow street.
Section perspective 01
剖面透视01
另一方面,3/1楼有倒向结构,底层比上层小。这种结构垂直扩展狭窄的街道。较小的较低楼层扩大了周围建筑物之间的距离,以尽量减少对邻居隐私的侵犯,并为在街上行走的人们提供轻松的风景。我们希望3/1大厦的这类特色,也能在松东的其他建筑物中共享。
On the other hand, 3/1 Building has a upside down structure and the lower floor is smaller than the upper floor. Such structure vertically expands the narrow street. The smaller lower floors widen the distance between the surrounding buildings to minimize the invasion of neighbor’s privacy and to provide the relaxed scenery to people walking on the street. We hope such features of 3/1 Building would be also shared in other buildings in Seongsu-dong.
On the other hand, 3/1 Building has a upside down structure and the lower floor is smaller than the upper floor. Such structure vertically expands the narrow street. The smaller lower floors widen the distance between the surrounding buildings to minimize the invasion of neighbor’s privacy and to provide the relaxed scenery to people walking on the street. We hope such features of 3/1 Building would be also shared in other buildings in Seongsu-dong.
© Kyung Roh
(C)卢京生
3.当你从地铁2号线往下看时,你会注意到,在松东,小型和大型的红砖建筑是混合在一起的。虽然3/1建筑的形状与其他城市环境不同,但3/1建筑试图通过材料来反映过去的记忆,并与周围的建筑保持和谐。尽管3/1的建筑使用了过去的材料,但该建筑考虑了新方案,并以独特的方式建造了砖块。为了表达两种不同方案的共存,3/1建筑的布设密度不同。在较低楼层的商业区设计了双层幕墙,以在相对狭小的室内空间中最大限度地提高开放性。此外,考虑到周围建筑物的视觉干扰,高层住宅区的窗户较少。这种砖瓦作为一个屏幕,允许光线进入建筑物内,同时保护邻居的隐私。
3. Memory of Seongsu-dong When you look down at Seongsu-dong from Subway Line 2, you will notice that small and large red brick buildings are mixed in Seongsu-dong. Although 3/1 Building has a shape different from other urban contexts, 3/1 Building tries to reflect the past memory through materials and be in harmony with surrounding buildings. Although 3/1 Building uses the past material, the building considers about the new program and build bricks in a unique way. To express the co-existence of two different programs, 3/1 Building has a different density in laying brinks. The commercial areas in the lower floors are designed with double-skin curtain wall to maximize the sense of openness in relatively narrow indoor space. Also, the residential areas in the upper floors have less windows in consideration of visual interference from surrounding buildings. Such brickwork acts as a screen which allows the light to come inside the building while protecting the privacy of the neighbors.
3. Memory of Seongsu-dong When you look down at Seongsu-dong from Subway Line 2, you will notice that small and large red brick buildings are mixed in Seongsu-dong. Although 3/1 Building has a shape different from other urban contexts, 3/1 Building tries to reflect the past memory through materials and be in harmony with surrounding buildings. Although 3/1 Building uses the past material, the building considers about the new program and build bricks in a unique way. To express the co-existence of two different programs, 3/1 Building has a different density in laying brinks. The commercial areas in the lower floors are designed with double-skin curtain wall to maximize the sense of openness in relatively narrow indoor space. Also, the residential areas in the upper floors have less windows in consideration of visual interference from surrounding buildings. Such brickwork acts as a screen which allows the light to come inside the building while protecting the privacy of the neighbors.
© Kyung Roh
(C)卢京生
4.长期的城市价值是随着时间积累起来的各种痕迹.我们相信,宋东之所以出名,是因为它提供了独特的氛围,而不是追求幻想或便利。将于2018年新建的3/1大楼也考虑到了未来的时间。材料的选择经过充分考虑耐久性和时间性的同时,采用自由结构,以不断变化的城市用途。
4. Long-Lasting The urban value is the various traces accumulated over time. We believe that Seongsu-dong is becoming famous as it provides unique atmosphere instead of seeking fanciness or convenience. 3/1 Building which will be newly built in 2018 also considered about the future time in Seongsu-dong. The materials have been selected after thorough consideration on durability and temporality while applying free structure for constantly changing urban purpose.
4. Long-Lasting The urban value is the various traces accumulated over time. We believe that Seongsu-dong is becoming famous as it provides unique atmosphere instead of seeking fanciness or convenience. 3/1 Building which will be newly built in 2018 also considered about the future time in Seongsu-dong. The materials have been selected after thorough consideration on durability and temporality while applying free structure for constantly changing urban purpose.
© Kyung Roh
(C)卢京生
客服
消息
收藏
下载
最近













































