查看完整案例


收藏

下载
© Carmen Troesser
C.Carmen Troesse
架构师提供的文本描述。现有的两层砖石建筑是一个离群的街道上,主要是单一和多家庭的建筑物。显然,这是一栋前店主建筑,底层有零售空间,楼上有一套住宅公寓;这正是我们喜欢的建筑类型-这是一座需要二次生活的奇怪建筑。在我们的研究中,我们发现一楼很有可能是一家肉店,里面有一个布罗曼兄弟的冷藏室,这个冷藏室已经保存下来了。冷却器是一个免费的元素,作为分隔我们的客户购物空间,将工作区与其他生活空间分开。主程序的中心是在现有平面图的第二层增加一套主套房,包括两间卧室和一间浴室。解决方案是形成一个悬臂,现代Corten(又称风化钢)在结构的后面加上一个双高度卧室,浴室和一个私人甲板。
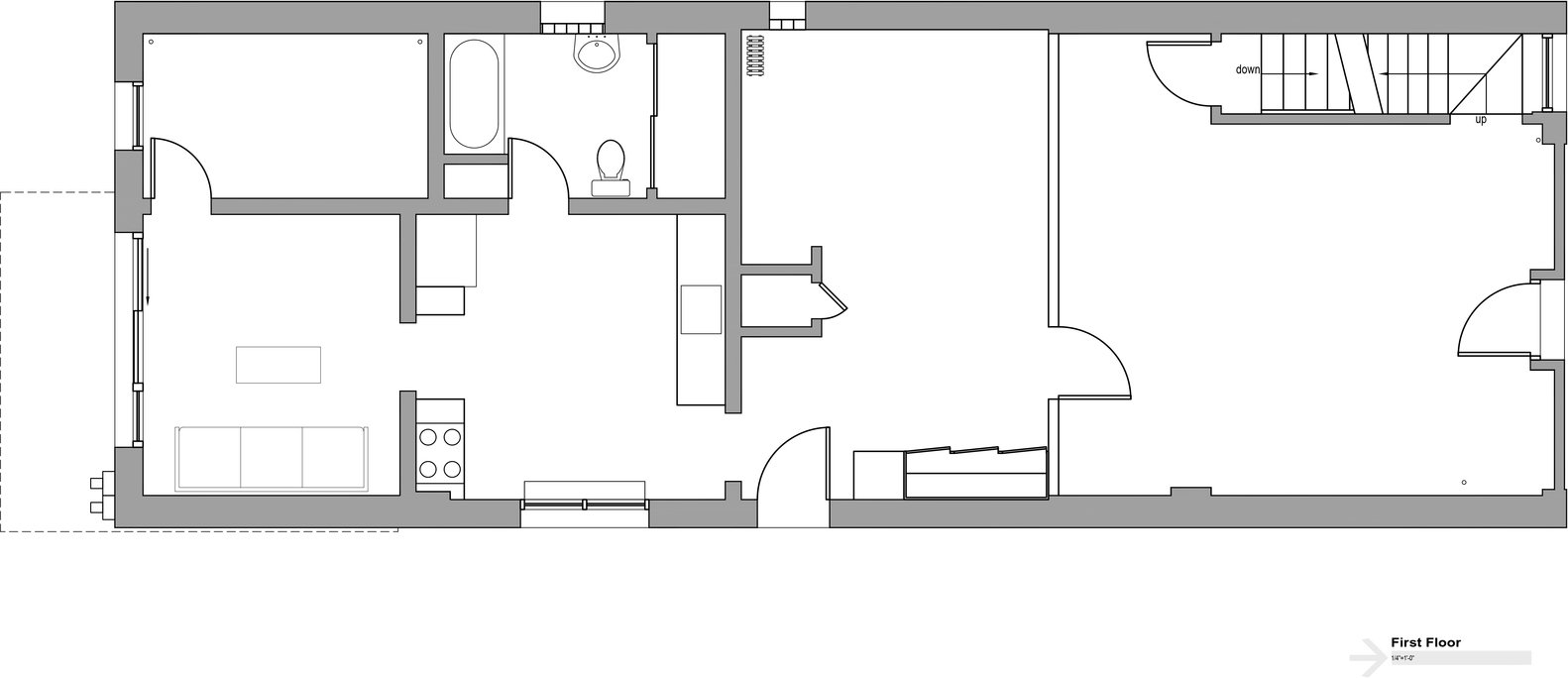
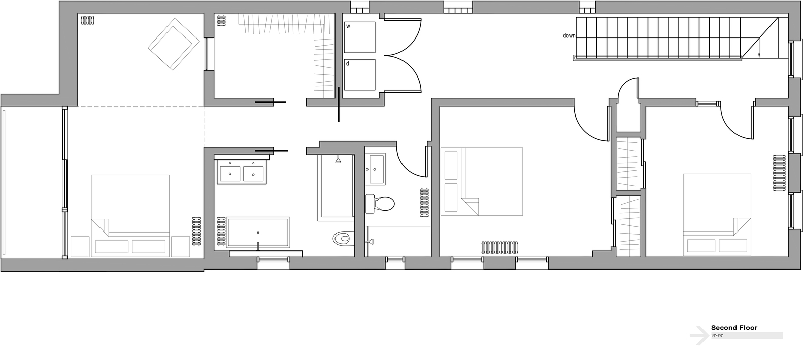
Text description provided by the architects. The existing two-story masonry building was an outlier on the street of mostly single and multi-family buildings. Clearly a former shopkeeper building with a retail space on the ground floor and a residential apartment situated above; this is just the building type we enjoy working with – an odd building that needed a second life. During our research, we discovered that the ground floor was most likely a butcher shop complete with a Bromann Brothers cooler which had been preserved. The cooler is a free element that acts as a divider for our clients shop space, separating the work area from the rest of the living space. The main program centered around adding a master suite to the second floor of the existing floor plan consisting of two bedrooms and one bathroom. The solution was to form a cantilevered, modern Corten (aka weathering steel) addition at the rear of the structure with a double height bedroom, bathroom and a private deck.
Text description provided by the architects. The existing two-story masonry building was an outlier on the street of mostly single and multi-family buildings. Clearly a former shopkeeper building with a retail space on the ground floor and a residential apartment situated above; this is just the building type we enjoy working with – an odd building that needed a second life. During our research, we discovered that the ground floor was most likely a butcher shop complete with a Bromann Brothers cooler which had been preserved. The cooler is a free element that acts as a divider for our clients shop space, separating the work area from the rest of the living space. The main program centered around adding a master suite to the second floor of the existing floor plan consisting of two bedrooms and one bathroom. The solution was to form a cantilevered, modern Corten (aka weathering steel) addition at the rear of the structure with a double height bedroom, bathroom and a private deck.
© Carmen Troesser
C.Carmen Troesse
建筑物聚集为遮阳和雨水,增加的形式是由建筑物在现场的方向驱动。现有的后门廊和楼梯被拆除,然后我们形成了额外的遮阳窗户和收集雨水。我们想在主套房外增加一个阳台,所以我们在现代的Corten加法立方体中创建了一个休憩处,以便在夏季提供遮荫,并允许太阳在冬季被动地加热空间。教堂的窗户位于建筑的北侧,全年都能提供照明。立方体的屋顶向北倾斜,以便于收集主屋顶上的水,然后排入收集区,供花园使用。
BUILDING MASSING FOR SHADE AND RAINWATER The form of the addition was driven by the orientation of the building on the site. The existing rear porch and stair was removed and then we formed the addition to shade the windows and collect rainwater. We wanted to add a balcony off of the master suite, so we created a recess in the modern Corten addition cube to provide shade during the summer months and allowing the sun in to passively heat the space during winter. The clerestory windows located on the north side of the building provides even light throughout the year. The roof of the cube pitches back to the north to facilitate water collection on the main roof, where it drains into a collection area for use in the garden.
BUILDING MASSING FOR SHADE AND RAINWATER The form of the addition was driven by the orientation of the building on the site. The existing rear porch and stair was removed and then we formed the addition to shade the windows and collect rainwater. We wanted to add a balcony off of the master suite, so we created a recess in the modern Corten addition cube to provide shade during the summer months and allowing the sun in to passively heat the space during winter. The clerestory windows located on the north side of the building provides even light throughout the year. The roof of the cube pitches back to the north to facilitate water collection on the main roof, where it drains into a collection area for use in the garden.
© Carmen Troesser
C.Carmen Troesse
现代Corten加料墙板在苔藓上最受欢迎的墙面材料,Corten覆层作为雨幕应用于加料。这意味着水蒸气屏障(我们在这个项目中使用了VaproShield)直接应用到外墙板上。毛条贴在外脸上,这样Corten就可以贴在这些条上了。这个系统允许在Corten壁板后面渗出的水有一个排水平面从墙后而不是在建筑物内流出。除了美丽的科滕美学,材料自然形成了一层防锈层,随着时间的推移,与建筑其他地方的芝加哥普通砖很好地混合在一起,突出了自然温暖的色调。
MODERN CORTEN ADDITION SIDING A favorite siding material at moss, Corten cladding was applied to the addition as a rain screen. Meaning the water and vapor barrier (we used VaproShield for this project) is applied directly to the exterior wall board. Furring strips were attached to the exterior face so the Corten could be attached to the strips. This system allows for the water that seeps behind the Corten siding to have a drainage plane to get out from behind the wall, instead of inside the building. Aside from the beautiful aesthetics of Corten, the material naturally forms a protective layer of rust that blends nicely over time with the Chicago Common brick on the rest of the building, highlighting the natural warm hues.
MODERN CORTEN ADDITION SIDING A favorite siding material at moss, Corten cladding was applied to the addition as a rain screen. Meaning the water and vapor barrier (we used VaproShield for this project) is applied directly to the exterior wall board. Furring strips were attached to the exterior face so the Corten could be attached to the strips. This system allows for the water that seeps behind the Corten siding to have a drainage plane to get out from behind the wall, instead of inside the building. Aside from the beautiful aesthetics of Corten, the material naturally forms a protective layer of rust that blends nicely over time with the Chicago Common brick on the rest of the building, highlighting the natural warm hues.
Design Sketches 01
设计草图01
拐角处有一段时间在芝加哥和大多数城市,一个街角的杂货店就像一个A。
THE CORNER STORE There was a time in Chicago, and most cities, when a corner general/grocery store like an A&P could be found on just about every corner. Back in the day, the project building served the neighborhood as a general store and social gathering spot. According to an eyewitness in the neighborhood, they claimed to have frequented the store to buy meat and other sundries. The antique, mirror covered cooler wall (pictured below) is still in place on the ground floor level of the building. It was protected over the years and still exists today in it’s original form and adds to the character of the space.
THE CORNER STORE There was a time in Chicago, and most cities, when a corner general/grocery store like an A&P could be found on just about every corner. Back in the day, the project building served the neighborhood as a general store and social gathering spot. According to an eyewitness in the neighborhood, they claimed to have frequented the store to buy meat and other sundries. The antique, mirror covered cooler wall (pictured below) is still in place on the ground floor level of the building. It was protected over the years and still exists today in it’s original form and adds to the character of the space.
© Carmen Troesser
C.Carmen Troesse
Architects moss Design
Location Chicago, United States
Lead Architects Matt Nardella, AIA , Chris Koster
Area 3945.0 ft2
Project Year 2017
Photographs Carmen Troesser
Category Sustainability
Manufacturers Loading...
客服
消息
收藏
下载
最近




























