查看完整案例


收藏

下载
Courtesy of unarchitecte
非建筑师的礼遇
架构师提供的文本描述。南昌市爱溪湖旁的郎琴湾,有一所幼儿园,园内充满了优雅细腻的风景,五彩缤纷的风景随季节而变化。在幼儿园主建筑大厅的东侧,有一个100㎡的双高室内空间,面向南面的院子。在听说过罗浮山的攀岩公园后,幼儿园来到了无建筑的地方,表达了他们想要创造一个以活动空间为主题的攀岩网的愿望。
Text description provided by the architects. In the Langqin Bay by the side of Aixi Lake in Nanchang City, there resides a kindergarten filled with elegant and delicate landscapes and colorful scenery changing through seasons. At the east side of the kindergarten’s main building lobby, there’s a double height indoor space of 100 ㎡, facing south to the yard. Having heard of the Climbing Park of Luofu Mountain, the kindergarten came to unarchitecte, and expressed their wish to create an activity space themed climbing net.
Text description provided by the architects. In the Langqin Bay by the side of Aixi Lake in Nanchang City, there resides a kindergarten filled with elegant and delicate landscapes and colorful scenery changing through seasons. At the east side of the kindergarten’s main building lobby, there’s a double height indoor space of 100 ㎡, facing south to the yard. Having heard of the Climbing Park of Luofu Mountain, the kindergarten came to unarchitecte, and expressed their wish to create an activity space themed climbing net.
Courtesy of unarchitecte
非建筑师的礼遇
建筑师的意图是为儿童提供一个不同于日常生活中常规人物的活动空间,从而启发孩子们对空间多样性和可能性的认识。在愉快的探索和嬉戏中,通过空间维度和形状的变化,孩子们可以找到规律和逻辑,他们对空间的感知也得到了更新。
The architect intends to provide an activity space different from the regular figure in daily life for children, by which chi ldren will be enlightened with the awareness of the diversity and possibility of space. When happily exploring and frolicking, through the changes of dimension and shape of space, children can find laws and logic, and their perception of space is renewed.
The architect intends to provide an activity space different from the regular figure in daily life for children, by which chi ldren will be enlightened with the awareness of the diversity and possibility of space. When happily exploring and frolicking, through the changes of dimension and shape of space, children can find laws and logic, and their perception of space is renewed.
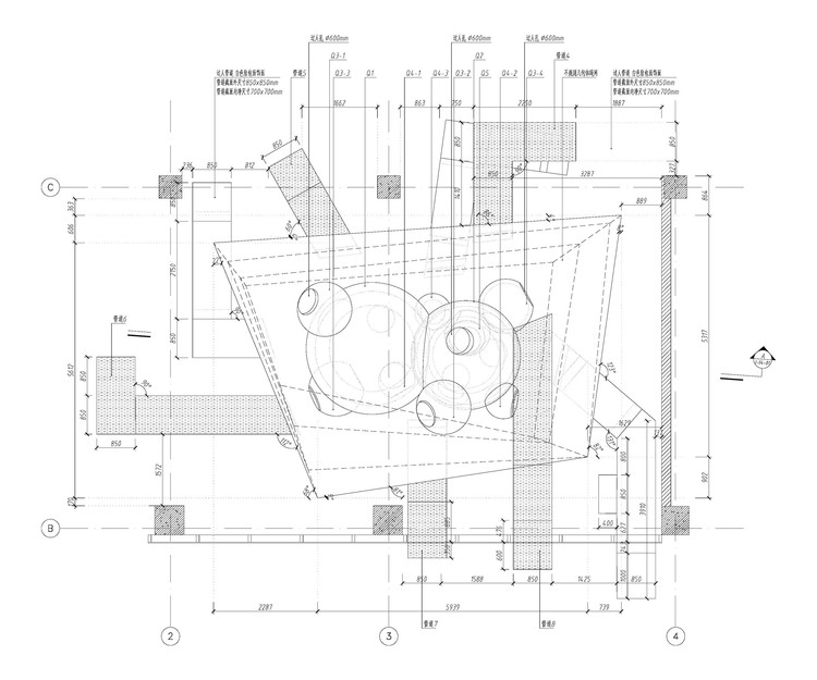
为了实现这一目标,插入了一系列安装。该系统由五个部分组成:以不规则形状的箱体为主体的钢结构;由10个不同尺寸的球组成的复杂钢结构;连接箱内上述两个部分的两个表面;附着在所有框架上的聚酯网;以及以8个弯管为入口和出口的复杂钢结构。安装的主要部分由23根钢丝绳挂在天花板顶部的钢梁上(钢梁锚定在原建筑的碳纤维增强结构梁上),同时8根斜拉钢丝绳有助于将其稳定到靠近结构柱的水平。
A series of installations are inserted to fulfill this goal. The system is made up of five parts: an irregular shape box as the main body of steel structure, a complex steel structure compounded by 10 snap-in balls of different sizes inside the box, two surfaces that connects the two above –mentioned parts inside the box, polyester nets adhering to all frameworks, and eight bended tubes as the entrances and exits to the box. The main part of this installation is hanged by twenty-three steel ropes to the steel beams newly added to the top of the ceiling( the steel beams are anchored to former architecture’s carbon-fiber-reinforced structural beams), and meanwhile eight cable-stayed steel ropes help to stabilize it to the close-by structure columns.
A series of installations are inserted to fulfill this goal. The system is made up of five parts: an irregular shape box as the main body of steel structure, a complex steel structure compounded by 10 snap-in balls of different sizes inside the box, two surfaces that connects the two above –mentioned parts inside the box, polyester nets adhering to all frameworks, and eight bended tubes as the entrances and exits to the box. The main part of this installation is hanged by twenty-three steel ropes to the steel beams newly added to the top of the ceiling( the steel beams are anchored to former architecture’s carbon-fiber-reinforced structural beams), and meanwhile eight cable-stayed steel ropes help to stabilize it to the close-by structure columns.
Courtesy of unarchitecte
非建筑师的礼遇
Courtesy of unarchitecte
非建筑师的礼遇
整个系统作为一个可以参与的装置,具有多个活动空间:浮箱的下面和周围(用下垂的聚酯绳填充和定义),弯曲的管道作为通过空间,球复合体的内部空间,以及围绕着球体内部复杂的三层不同高度的空间。为了连接室内和庭院的景观,三根弯曲的管子用钢化玻璃密封,穿过南侧的玻璃幕墙,然后倾斜到户外。这些空间层层重叠,一层地往前走,当我们看着它们的时候,我们的眼睛也是如此。快乐地穿越不同的空间,孩子们可以享受一个谨慎的探索和持续的理解过程。
The system, as a whole an installation one can participate in, possesses multiple activity space: the underneath and surrounding(filled and defined by drooping polyester ropes) of the floating box, the bended tubes as passing space, the interior space of the balls complex, and the three layers of space of different heights which surrounds the balls complex inside the box. To connect the indoor and yard landscape, three bended tubes sealed by tempered glass cross the glass curtain wall on the south side and lean out to the outdoors. These layers of space overlap and go further one by one, so do our eye sights when looking at them. Happily crossing the different spaces, children can enjoy a cautious exploration and continuing process of understanding.
The system, as a whole an installation one can participate in, possesses multiple activity space: the underneath and surrounding(filled and defined by drooping polyester ropes) of the floating box, the bended tubes as passing space, the interior space of the balls complex, and the three layers of space of different heights which surrounds the balls complex inside the box. To connect the indoor and yard landscape, three bended tubes sealed by tempered glass cross the glass curtain wall on the south side and lean out to the outdoors. These layers of space overlap and go further one by one, so do our eye sights when looking at them. Happily crossing the different spaces, children can enjoy a cautious exploration and continuing process of understanding.
Courtesy of unarchitecte
非建筑师的礼遇
于是诞生了这个由聚酯网和钢结构组成的、由六个双曲面组成的整个悬吊箱,重新定义了这个空间。耸耸肩的盒子和弯弯曲曲的管子,再加上精神上的浮球复合体,使这个空间充满活力,给它一个即将行走的姿势。因此,整个设计有助于启发儿童从亲人的角度看待生活中的各种事物,以爱心看待生活中的各种事物,以开放的心态理解和吸收周围的各种信息,从而拓宽他们的头脑,通过生动的活动进行教学。
So was born this whole-suspended box, made of polyester nets and steel structure and enclosed by six hyperboloids, gives redefinition of the space. The shrugging box and the bended tubes, together with the spiritual floating balls complex, vitalizes the space and gives it a posture about to walk. Therefore, the whole design helps to inspire children to look at various things in life from an anthropopathic perspective and with a caring heart, to understand and absorb the surrounding diverse information with an open mindset, so as to broaden their mind and teach through lively activities.
So was born this whole-suspended box, made of polyester nets and steel structure and enclosed by six hyperboloids, gives redefinition of the space. The shrugging box and the bended tubes, together with the spiritual floating balls complex, vitalizes the space and gives it a posture about to walk. Therefore, the whole design helps to inspire children to look at various things in life from an anthropopathic perspective and with a caring heart, to understand and absorb the surrounding diverse information with an open mindset, so as to broaden their mind and teach through lively activities.
Courtesy of unarchitecte
非建筑师的礼遇
在这里,一个快乐的步行箱正在努力走。在建筑的结构体系内攀爬而不受它的限制,盒子就像他里面或周围的孩子一样,他们自信、自信、快乐和积极。充满了生命和创造力的激情,走路的盒子伴随着孩子们在无忧无虑的玩耍中快乐成长。
Here it is, a happy walking box striving to walk. Climbing within the structural system of the architecture while not limited by it, the box is just like the children inside or around him, who are confident and self-strengthening, happy and positive. Full of the passion for life and creativity, the walking box is accompanying children to grow up happily in the carefree playing.
Here it is, a happy walking box striving to walk. Climbing within the structural system of the architecture while not limited by it, the box is just like the children inside or around him, who are confident and self-strengthening, happy and positive. Full of the passion for life and creativity, the walking box is accompanying children to grow up happily in the carefree playing.
Courtesy of unarchitecte
非建筑师的礼遇
Architects unarchitecte
Location Nanchang, Jiangxi Province, China
Architect in Charge Hetian Zhang
Design Team Hetian Zhang, Qingfeng Sun, Xuan Xu, Jihua Sun
Area 100.0 m2
Project Year 2018
Category Kindergarten
Manufacturers Loading...
客服
消息
收藏
下载
最近





















