查看完整案例


收藏

下载
结构计算Reboda Ingeniería安装Engademais多规格少规格
Structural Calculation Reboreda Ingeniería Installations Engademais More Specs Less Specs
Structural Calculation Reboreda Ingeniería Installations Engademais More Specs Less Specs
© Hector Santos Diez
赫克托·桑托斯·迪兹
架构师提供的文本描述。当我们在蒙特波雷罗寻找建筑的先见之明时,我们发现这个地方没有任何以前的“部分计划”。
Text description provided by the architects. When looking for architectural pre-existences in Monteporreiro, we find out that the place did not have any previous “partial plans”.
Text description provided by the architects. When looking for architectural pre-existences in Monteporreiro, we find out that the place did not have any previous “partial plans”.
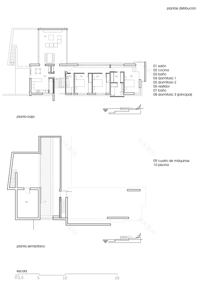
General Plans
一般计划
建筑,虽然,确实知道能量优化,太阳曝光率,位置和观点。它知道,结构传统是正确运作和耐久性的保证,也是基于逻辑和比例手段、多功能性、目的等的结构标准。这也是我们的参考。
Architecture, though, knows indeed about energetic optimization, sun exposure, position and views. It knows that structural tradition is a guarantee for proper functioning and durability, as well as structural criterion based in logic and proportioned means, versatility, purpose, etc. That is also a reference for us.
Architecture, though, knows indeed about energetic optimization, sun exposure, position and views. It knows that structural tradition is a guarantee for proper functioning and durability, as well as structural criterion based in logic and proportioned means, versatility, purpose, etc. That is also a reference for us.
© Hector Santos Diez
赫克托·桑托斯·迪兹
考虑到规范的局限性和规定(城市化、结构性…)总是一个项目的条件因素,在这种情况下,它们的重要性是主要的,因为该地区仍然有与一个古老的“花园城市”项目有关的城市化条件,尽管该项目的其余要素只是名称和一些与现行条例相冲突的维度限制。
Taking into account that normative limitations and impositions (urbanistic, structural …) are always conditioning elements for a project, in this case their importance is major since the area still has the urbanistic conditions related to an old “garden city” project, although the remaining elements from that project are only the name and some dimensional restraints that present a conflict with the current regulations.
Taking into account that normative limitations and impositions (urbanistic, structural …) are always conditioning elements for a project, in this case their importance is major since the area still has the urbanistic conditions related to an old “garden city” project, although the remaining elements from that project are only the name and some dimensional restraints that present a conflict with the current regulations.
同样重要的是客户-一对年轻、受过教育的夫妇,他们有着深刻的生态良知,对建筑的好奇心和兴趣,以及我们共同的愿景。没有他们的同谋,这个项目就不可能实现。
Equally important have been the clients –a young, educated couple with a deep ecologic conscience, curiosity and interest about Architecture in general and our shared vision. Without their complicity, this project would not have been possible.
Equally important have been the clients –a young, educated couple with a deep ecologic conscience, curiosity and interest about Architecture in general and our shared vision. Without their complicity, this project would not have been possible.
© Hector Santos Diez
赫克托·桑托斯·迪兹
Architects rodriguez + pintos
Location Pontevedra, Spain
Author Architects Jaime Rodríguez Abilleira, Santiago Pintos Pena
Collaborators Cristina Crespo Gallego
Area 230.0 m2
Project Year 2010
Photographs Hector Santos Diez
Category Houses
Manufacturers Loading...
客服
消息
收藏
下载
最近












