查看完整案例

收藏

下载
© Adam Rouse Photography
亚当·劳斯摄影
架构师提供的文本描述。在索诺马县风景优美的一片狭小土地上,通过对当地材料的创造性再利用,这个项目开始时是一个乡间避风港,后来演变成了一个全职住宅。所希望的项目增加了一个游泳池、室外起居区、花园、波切庭院和客人到达时的溢出停车场。这个项目又长又窄,拥抱繁忙的道路,但位于超越限制的壮观景色,滚动的葡萄园和经典的加州沿海山脊线以外。
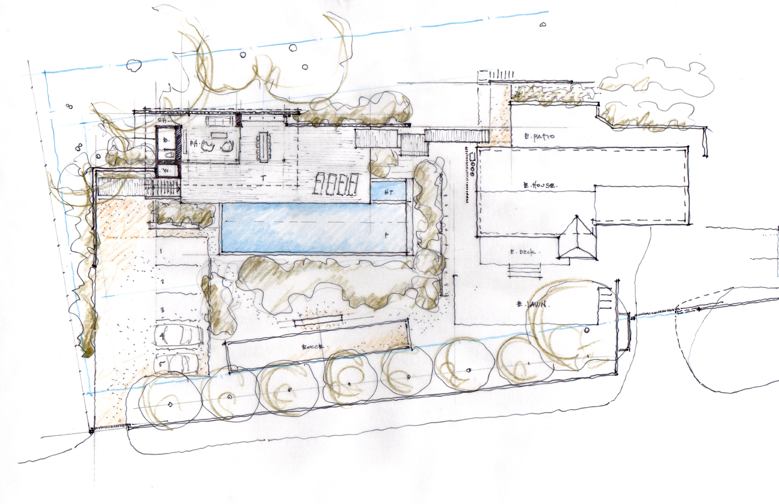
Text description provided by the architects. Anchored by an inventive reuse of local materials on a constrained lot in a beautiful Sonoma County landscape, this project started as a country retreat and evolved into a full-time residence. The desired program added a pool, poolhouse, outdoor living area, gardens, bocce court and guest arrival with overflow parking. The property was long and narrow, hugging a busy roadway but situated to look beyond the constraints to spectacular vistas of rolling vineyards and classic coastal California ridgelines beyond.
Text description provided by the architects. Anchored by an inventive reuse of local materials on a constrained lot in a beautiful Sonoma County landscape, this project started as a country retreat and evolved into a full-time residence. The desired program added a pool, poolhouse, outdoor living area, gardens, bocce court and guest arrival with overflow parking. The property was long and narrow, hugging a busy roadway but situated to look beyond the constraints to spectacular vistas of rolling vineyards and classic coastal California ridgelines beyond.
© Adam Rouse Photography
亚当·劳斯摄影
预算很紧,人们的期望也很大。这个设计把游泳池高高地抬高了起来,把游泳池的房子切成了山坡-让池边的地平线可以编辑到下面的道路上。它背靠着树,依偎在山上,这是新的,。土木地面是一个原始的基座,支撑着一个乡土围护。游泳池的主要程序是用葡萄桩包裹,从财产和重新锯,以作为一个裹尸布的私人内部建筑的运作。
The budget was tight and the aspirations were large. The design raises the pool high on the prop-erty and cuts the pool house into the hillside – allowing the horizon of the pool edge to edit the view to the road below. Nestled into the hill with its back to the trees, the new, earthen ground plane acts as a primitive plinth that supports a rustic enclosure. The prime program of the pool house is wrapped in grape stakes gathered from the property and re-sawn to operate as a shroud to the private innards of the building.
The budget was tight and the aspirations were large. The design raises the pool high on the prop-erty and cuts the pool house into the hillside – allowing the horizon of the pool edge to edit the view to the road below. Nestled into the hill with its back to the trees, the new, earthen ground plane acts as a primitive plinth that supports a rustic enclosure. The prime program of the pool house is wrapped in grape stakes gathered from the property and re-sawn to operate as a shroud to the private innards of the building.
Cross Section Sketch
横断面草图
这种覆盖层在必要的地方提供坚实的墙壁,并向理想的地方打开。适度的内部足迹无缝地扩展到露台之外,借助一个漂浮在头顶上的粗糙锯齿架,在一天中最热的时候提供所需的遮荫。
This cladding provides solid walls where necessary and opens to the view where desirable. The modest interior footprint seamlessly expands to the terrace beyond with the help of a rough-sawn trellis that floats overhead, providing needed shade in the hottest times of day.
This cladding provides solid walls where necessary and opens to the view where desirable. The modest interior footprint seamlessly expands to the terrace beyond with the help of a rough-sawn trellis that floats overhead, providing needed shade in the hottest times of day.
© Adam Rouse Photography
亚当·劳斯摄影
作为一对城市居民的乡村度假地,这处房产很快就变成了一种全职的休息,它的生活和呼吸都是索诺马县的生活方式。
Conceived as a rustic retreat for a couple of city dwellers, the property quickly became a full-time respite that lives and breathes the Sonoma County lifestyle.
Conceived as a rustic retreat for a couple of city dwellers, the property quickly became a full-time respite that lives and breathes the Sonoma County lifestyle.
© Adam Rouse Photography
亚当·劳斯摄影
Architects Ro I Rockett Design
Location United States
Area 301.0 m2
Project Year 2016
Photographs Adam Rouse Photography
Category Houses
Manufacturers Loading...
客服
消息
收藏
下载
最近






























