查看完整案例


收藏

下载
© Katherine Lu
(C)卢凯瑟琳
建筑师提供的文字说明。PrestonHouse是一个开放的、充满光明的家园,内部和外部空间有着密切和完善的联系,使它成为一个年轻的成长家庭的组成部分。
Text description provided by the architects. A new build, Preston House is an open, light filled home where the internal and external spaces have a close and refined connection, making it integral to a young growing family.
Text description provided by the architects. A new build, Preston House is an open, light filled home where the internal and external spaces have a close and refined connection, making it integral to a young growing family.
© Katherine Lu
(C)卢凯瑟琳
自然光是客户端短暂的一部分,因为他们以前住过的家很黑。考虑到这一点和场地定向,建筑概念和设计以一种方式发展,使建筑能够绕着场地的北部方向折叠,从而获得充足的自然阳光和来自室内几乎每个房间的视图,以及在进入时通过中央水池的邀请的全深度视觉链接。
Natural light was a big part of the clients brief as the home they previously lived in was very dark. Considering this and the site orientation, the architectural concept and design evolved in a way that allowed the structure to fold around the northern aspect of the site achieving ample natural sunlight and views from almost every room in the house as well as an inviting full depth visual link through the central pool upon entry.
Natural light was a big part of the clients brief as the home they previously lived in was very dark. Considering this and the site orientation, the architectural concept and design evolved in a way that allowed the structure to fold around the northern aspect of the site achieving ample natural sunlight and views from almost every room in the house as well as an inviting full depth visual link through the central pool upon entry.
© Katherine Lu
(C)卢凯瑟琳
客户是一个喜欢娱乐的家庭,所以烹饪区的功能和连接是一个重要的因素。我们对三个区域进行了配置和详细说明,包括主厨房、步入式厨房和室外露天厨房,它们可以单独使用,也可以组合使用,每个区域在招待家人和朋友时都发挥着各自的作用。
The clients are a family who love to entertain so the functionality and connection of the cooking zones was an important factor. We configured and detailed three areas, including the main kitchen, the walk-in-pantry and the outdoor alfresco kitchen in a way where they can be used individually or in combination, each serving their function when entertaining family and friends.
The clients are a family who love to entertain so the functionality and connection of the cooking zones was an important factor. We configured and detailed three areas, including the main kitchen, the walk-in-pantry and the outdoor alfresco kitchen in a way where they can be used individually or in combination, each serving their function when entertaining family and friends.
© Katherine Lu
(C)卢凯瑟琳
客户们为他们的家寻求一种原始的、工业的和健壮的美学。他们喜欢的材料是混凝土、再生砖、实木和黑钢的组合。考虑到内部和外部连接的重要性,我们选择了内外相同的材料,从Scyon包层到厨房回收砖的入口。
The clients sought a raw, industrial and robust aesthetic for their home. The materials they favoured were a combination of concrete, recycled bricks, solid timber and black steel. Considering the importance of the interior and exterior connection, we made the choice of using the same materials inside and out, from the Scyon cladding wrapping into the entry to the recycled bricks in the kitchen.
The clients sought a raw, industrial and robust aesthetic for their home. The materials they favoured were a combination of concrete, recycled bricks, solid timber and black steel. Considering the importance of the interior and exterior connection, we made the choice of using the same materials inside and out, from the Scyon cladding wrapping into the entry to the recycled bricks in the kitchen.
© Katherine Lu
(C)卢凯瑟琳
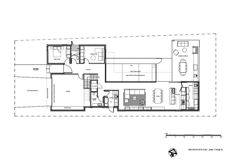
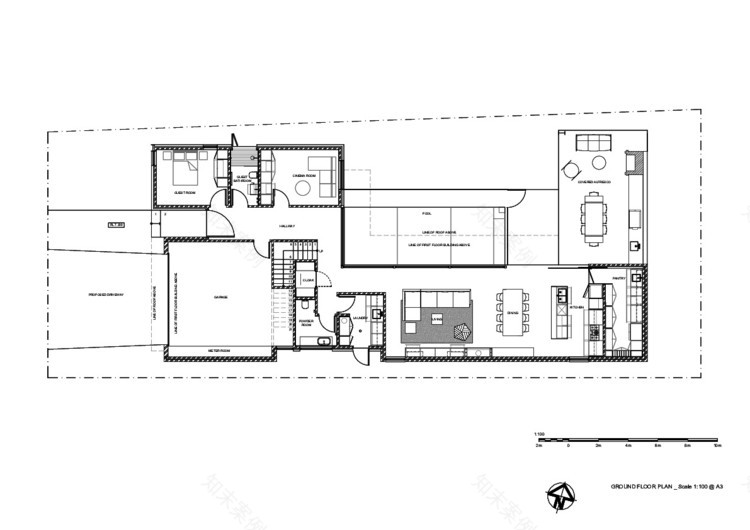
Gound Floor Plan
地面平面图
© Katherine Lu
(C)卢凯瑟琳
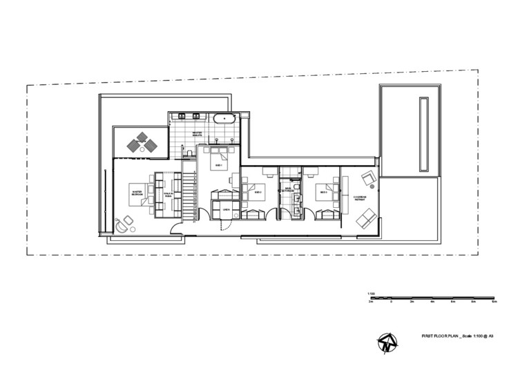
Floor Plan
黑色钢框架是这座房子突出的外部特征。在详细介绍室内设计时,我们借鉴了这一点,以便通过与房子外部的衔接,并在室内设计决策时使用“框架”这一概念作为平台。接受了这个概念,客户热情地与这个想法联系在一起,因为它演变了整个房子,包括他们的主人套间。
The black steel framing is a prominent external feature of the house. When detailing the interiors we drew from this in order to carry through a cohesive connection with the exterior of the house and used the concept of ‘Frame’ as a platform when making interior design decisions. Embracing the concept, the clients enthusiastically connected with this idea as it evolved throughout the entire house including their Master Ensuite.
The black steel framing is a prominent external feature of the house. When detailing the interiors we drew from this in order to carry through a cohesive connection with the exterior of the house and used the concept of ‘Frame’ as a platform when making interior design decisions. Embracing the concept, the clients enthusiastically connected with this idea as it evolved throughout the entire house including their Master Ensuite.
© Katherine Lu
(C)卢凯瑟琳
空间内的触觉和关系允许家庭中的所有成员在整个过程中无缝地过渡,并保持彼此之间的联系,无论他们是在一起娱乐,还是单独呆在一起,还是参加日常的仪式。
The tactility and relationship within the spaces allows all members of the family to seamlessly transition throughout and maintain a connection with one another whether they are entertaining together, spending time alone or attending to everyday rituals.
The tactility and relationship within the spaces allows all members of the family to seamlessly transition throughout and maintain a connection with one another whether they are entertaining together, spending time alone or attending to everyday rituals.
Architects Lot 1 Design, Sydesign
Location Five Dock, Australia
Design Team Shady Younes , Tammy Miconi
Area 404.0 m2
Project Year 2017
Photographs Katherine Lu
Category Houses
Manufacturers Loading...
客服
消息
收藏
下载
最近

























