查看完整案例


收藏

下载
Project name: Ice Shore House Architects: Gary Michael Conrath, Indesign Inc. Conrath Architecte Location: Montréal, Canada Floor space: 2200 sq. ft. Photography: Marc Cramer, Gary Conrath
项目名称:冰岸屋建筑师:GaryMichaelConrath,InDesign公司。Conrath建筑位置:加拿大Montréal建筑面积:2200平方英尺。英国“金融时报”。摄影:Marc Cramer,Gary Conrath
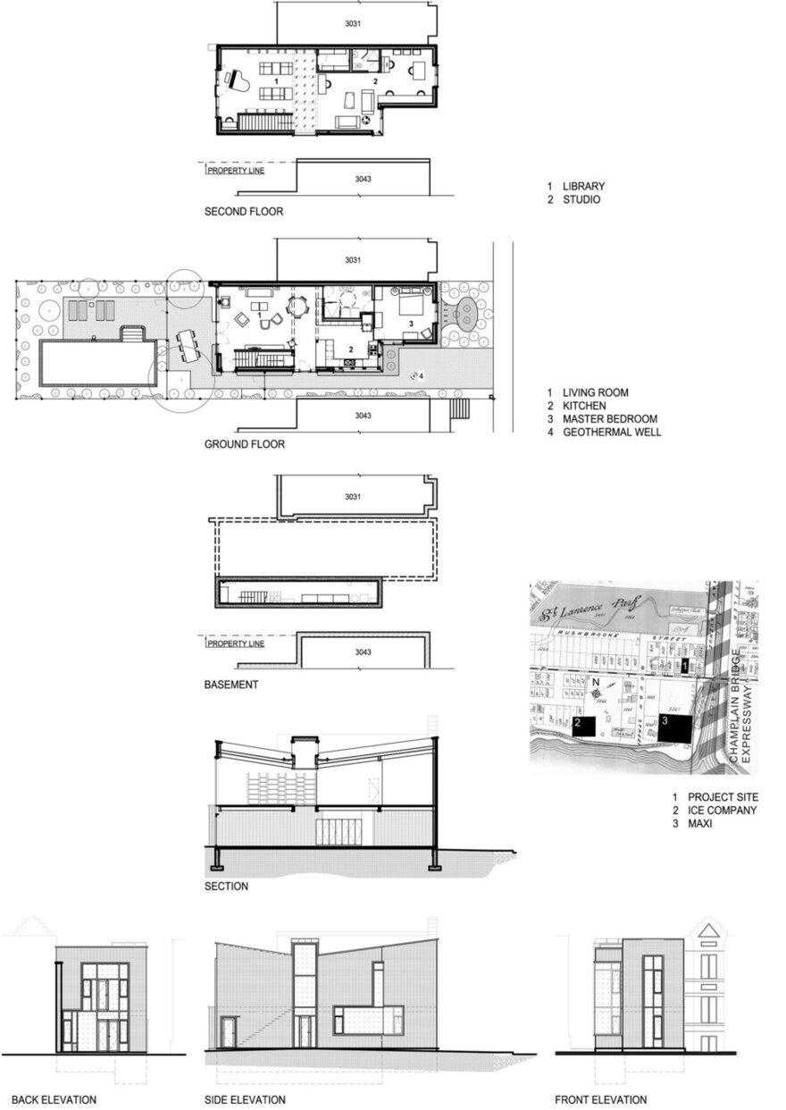
The Ice Shore house project brief was unusual, to say the least: “Ensure me freedom in my advanced years.” In 2013, an elderly citizen sought out the services of Gary Conrath. Both knew each other well since Indesign had conceived and constructed the co-property building where the woman had been living for a decade. The third storey dwelling was no longer suitable for her. She wanted to live at ground level, in an environment designed to meet her anticipated future needs.
冰岸屋项目简介是不寻常的,至少可以说:“确保我在我的晚年自由。”2013年,一位老年公民寻求加里·康拉斯(GaryConrath)的服务。这两个人都很了解对方,因为InDesign公司构思并建造了这位女士居住了十年的共同财产建筑。第三层的住宅不再适合她了。她想要生活在地面,在满足她预期未来需要的环境中生活。
Exterior Mobility Following the advice of her architect, the client purchased a vacant lot in Verdun, a neighbourhood with history dating from the beginning of New France. Of prime importance, the site provided several alternatives to automobile driving. Bus travel, as preferred by seniors is immediately available in front, and the Métro, Montréal’s subway is but a short walk away.
外部流动性,根据她的建筑师的建议,客户购买了在凡尔登空置的土地,一个社区的历史可追溯到新法国。最重要的是,该网站提供了几种汽车驾驶的替代方案。前面马上就有老年人喜欢的公共汽车旅行,而蒙特罗的地铁仅需一段很短的路程就可到达。
With an east-west orientation, the narrow 30-foot lot extends 120 feet in depth. Rather than occupying the full width, the architect opted for a footprint that allows for an open passageway adjacent to the southern façade. This approach preserves the privacy of the main entrance while also distinguishing the project from the densely built, shoulder to shoulder neighbouring homes.
在东西向,狭窄的30英尺地块延伸120英尺深.这位建筑师没有占据整个建筑的宽度,而是选择了一个足印,允许在南面附近建一条开放的通道。这种方法保护了主入口的隐私,同时也将项目与密集的、肩并肩的相邻住宅区分开来。
In order to facilitate eventual wheelchair use, a smooth level surface connects the city sidewalk, the parking space and the main entrance.
为了便于最终使用轮椅,平滑的平面连接城市人行道、停车位和主入口。
Anticipating the future In regards to his approach, Gary Conrath expresses the design paradox whereby existing urban forms must be challenged, but not so far as to disrupt the established architectural setting. In Verdun, the built environment is characterized by the recurring archetype of the duplex, adopted in the 1930s for financial considerations. If needed, owners and their families could curtail their spatial needs, live solely on the ground floor, and rent out the upper floor.
展望未来的他的方法,加里康拉斯表达了设计悖论,即现有的城市形式必须受到挑战,但不足以破坏既定的建筑环境。在凡尔登,建筑环境的特点是反复出现的复式,采用于20世纪30年代的财政考虑。如果需要的话,业主和他们的家人可以减少他们的空间需求,只住在底层,并出租上一层。
The idea of housing that can be adapted to accommodate significant life changes resonates throughout the project, with open, flat spaces found on two levels. The first floor includes essential living spaces including washroom and bedroom. The upstairs features a music room, study, artist’s studio and secondary washroom.
能够适应重大生活变化的住房理念在整个项目中产生了共鸣,在两个层次上都有开放的、平坦的空间。一楼包括必要的起居空间,包括洗手间和卧室。楼上设有音乐室、书房、艺术家工作室和二级洗手间。
Furthermore, should the owner ever require home care services, the studio space would serve as living quarters for an attending careperson. With that possibility in mind, the building includes a private entrance on the south side with direct access to the stairs.
此外,如果业主需要家庭护理服务,工作室空间将作为护理人员的住所。考虑到这一可能性,这栋建筑在南侧有一个私人入口,可直接进入楼梯。
Referencing the Past Several elements give the building’s architecture meaningful connections to the area’s history. First is the idea of a massive structure, common under the French regime, but expressed in a contemporary design language. Moreover, features typical to the traditional neighbourhood houses are integrated into the project, the inverted roof slopes serving as a case in point. This laneway design from the pre-rain gutter era serves to drain runoff from front and rear surfaces to a central point. More pragmatically, the structure’s form allows the inclusion of a discreet skylight not seen from the street. The resulting volumetrics combine to provide a complete solution in respect of municipal restrictions and the 29-foot height requirement.
参考过去的几个要素,建筑物的建筑与该地区的历史有着有意义的联系。首先是一个庞大的结构的想法,在法国政权下很常见,但是用当代的设计语言来表达。此外,传统邻里住宅的典型特征也被纳入到项目中,倒置的屋顶斜坡就是一个很好的例子。这条巷道的设计来自于雨前的排水沟时代,用于将径流从前面和后面的表面排入中心点。更实用的是,该结构的形式允许包括一个谨慎的天窗看不到从街道。由此产生的体积指标结合起来,为市政限制和29英尺高的要求提供了一个完整的解决方案。
Demonstrating sensitivity to Verdun’s history are the suspended moulded-glass modules on the street façade. This frosted veil, positioned before the 25-foot front window, evokes memories of the Dominion Glass Co., founded in 1905, as well as of the ice-cutters who were so important to the neighbourhood’s economy in the 19th century.
展示对凡尔登历史的敏感性的是街道外墙上悬挂的模制玻璃模组。这层蒙着霜的面纱位于25英尺的前窗前,唤起了人们对1905年成立的Dominion玻璃公司以及19世纪对邻里经济如此重要的切冰者的回忆。
Inside and Outside and Vice Versa The building itself is a design of cantilevered brick masses. Most striking is the strong connection made between the interior and exterior through dematerialized surfaces. Seen from the outside, the house’s interior planes replace that which is carved from the exterior walls. According to the designer, “a façade must entice the passer-by and extend a sense of welcome .” The invitation is all the more compelling thanks to the window frames that project outward, toward the street.
内外和副Versa建筑本身是一个悬臂砖块的设计。最引人注目的是,通过非物质化的表面,内部和外部之间形成了强有力的连接。从外面看,房子的内部平面取代了从外墙雕刻出来的东西。据这位设计师说,“一个外观必须吸引过路人,并延伸出一种欢迎的感觉。”由于向外、向街道伸出的窗框,邀请函更加引人入胜。
The inverse is also true: the landscape is brought inside, along with high-quality natural light. Diffused by the large east and west glazed surfaces, sunlight grazes along the walls and downward from top to bottom. To better capture sunshine from the south, a central vertical window projecting above the roofline (30 ft.) extends into a skylight feature. In addition, a transparent section of floor in the middle of the upper level floods the centre of the ground floor with a generous afternoon luminosity.
相反的情况也是正确的:景观和高质量的自然光一起被带到了里面.透过东面和西面的大釉面,阳光沿着墙壁掠过,并从上到下向下移动。为了更好地从南方捕捉阳光,中央垂直窗口突出在屋顶上方(30英尺)。扩展到天窗功能。此外,高层中间的一层透明部分在下午的明亮度下淹没了底层的中心。
The Therapeutic Aspect of Ice Shore House Visual fluidity is also a way to mitigate the trials and tribulations of the age at which people can find themselves confined to their home, the risk of depression never far away. The wide openings come into play here, allowing the owner to enjoy either nature or the city without having to go outside: a starry sky above the pool, the shadows of trees and raindrops on the glass catwalk; and on the street side, pedestrians passing by and the colourful morning sky.
冰岸屋视觉流动性的治疗方面也是一种方法,以减轻人们发现自己被限制在家中的年龄的考验和磨难,抑郁的风险从未远离。宽阔的洞口在这里发挥作用,让主人不必出门就可以享受自然或城市的乐趣:游泳池上方的星空,玻璃T台上的树影和雨滴;街道边,行人经过,早晨的天空五彩缤纷。
客服
消息
收藏
下载
最近
















