查看完整案例


收藏

下载
© Mauricio Salas + Cesar Castañedo
(Mauricio Salas Cesar Casta Edo
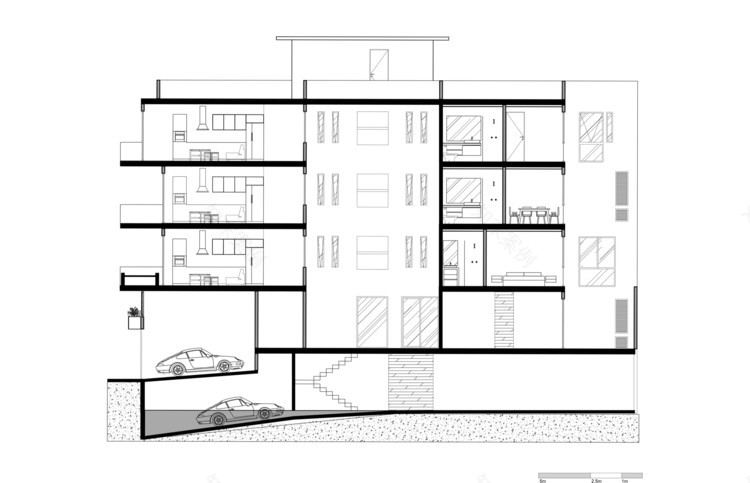
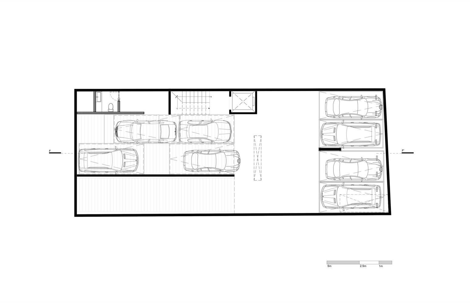
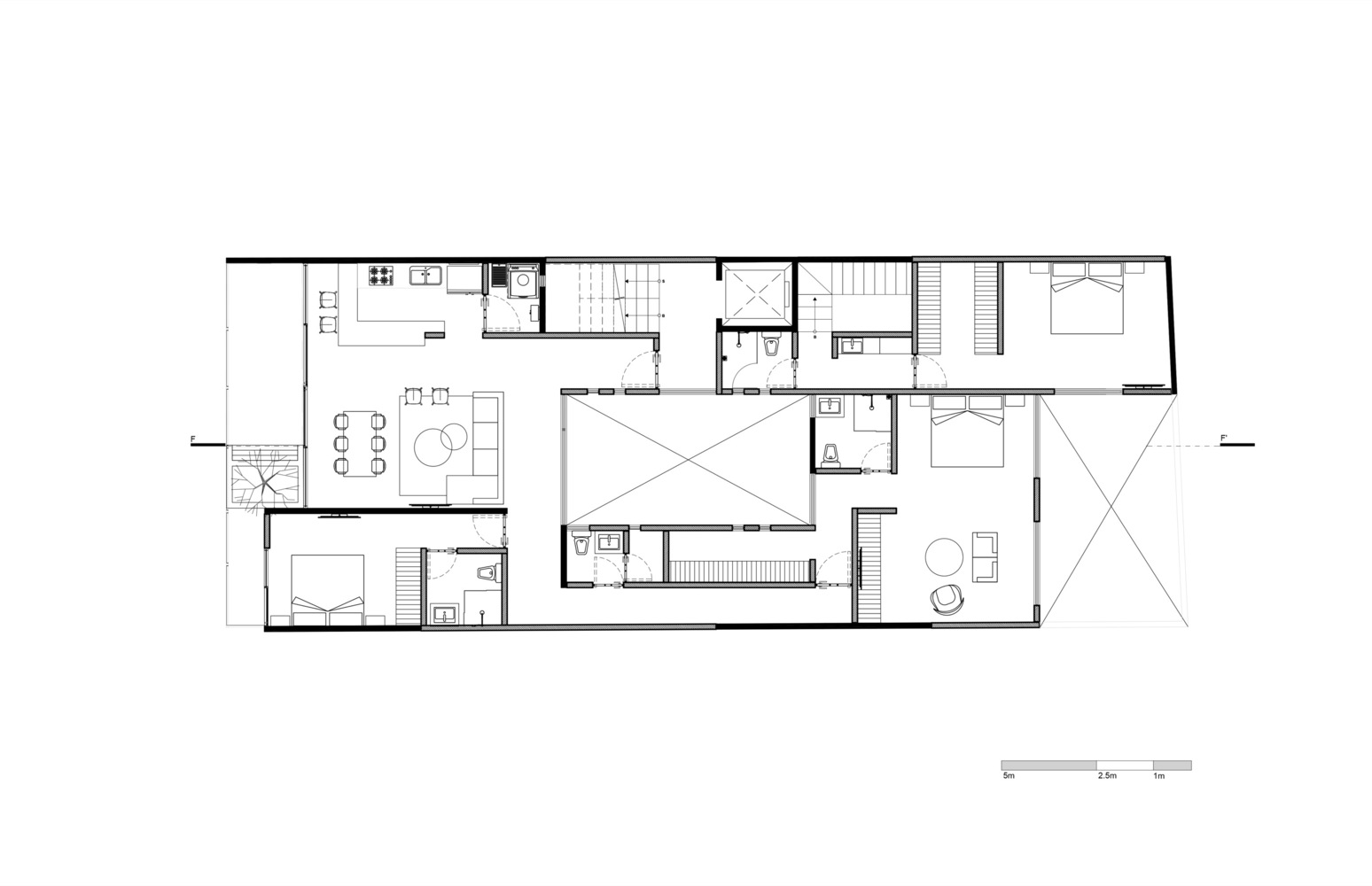
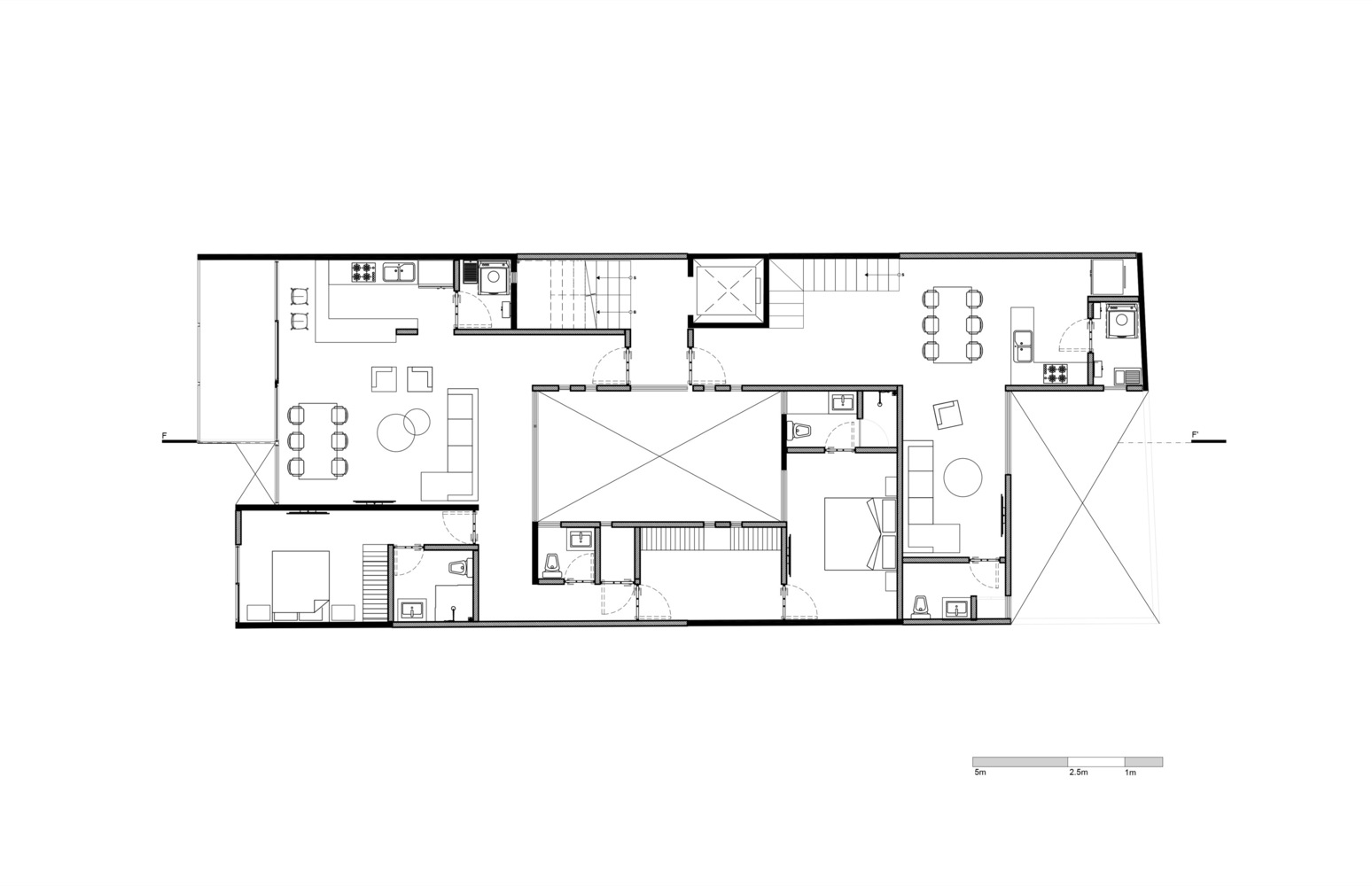
架构师提供的文本描述。Capulin 59是一座精品住宅建筑,位于墨西哥城Colonia del Valle最好的地区之一。这片240平方米的土地被建在一个小公园的前面,有一个长方形的形状,街道前有10米。该建筑由5个公寓单元组成,3个面向外部,2个内部联排有私人露台。
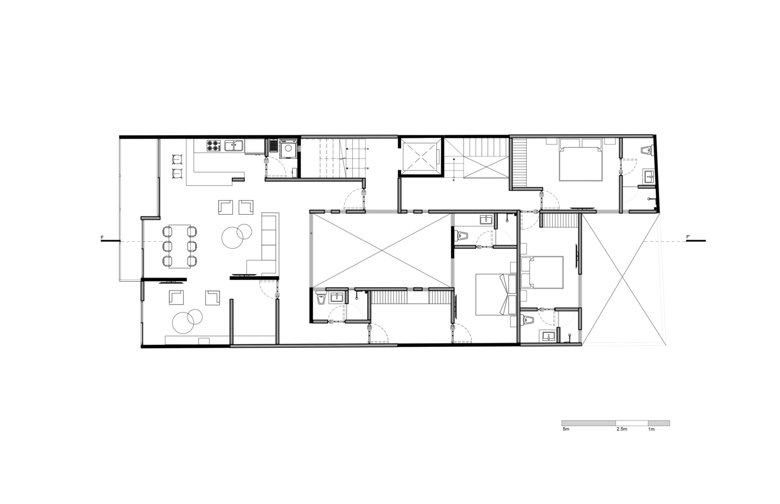
Text description provided by the architects. Capulin 59 is a boutique residential building located in one of the best areas in Colonia del Valle, Mexico City. The 240 sqm land where the property was built, located in front of a small park, has a rectangular shape with 10 meters street front. The building comprises 5 apartment units, 3 facing the exterior and 2 interior townhouses with private terraces.
Text description provided by the architects. Capulin 59 is a boutique residential building located in one of the best areas in Colonia del Valle, Mexico City. The 240 sqm land where the property was built, located in front of a small park, has a rectangular shape with 10 meters street front. The building comprises 5 apartment units, 3 facing the exterior and 2 interior townhouses with private terraces.
© Mauricio Salas + Cesar Castañedo
(Mauricio Salas Cesar Casta Edo
© Mauricio Salas + Cesar Castañedo
(Mauricio Salas Cesar Casta Edo
建筑物的边缘是不规则的,并且被种植在一个达到双重高度的公寓之一上的树划分。材料包括:黑色钢、大理石、混凝土、木材和绿化。诸如混凝土和大理石之类的低维护材料对于这种概念化来说是必要的,并且与内部设计的闪电、结构和简单性很好地匹配。
The façade of the building is irregular and is divided by a tree planted in one of the apartments that reaches a double height. Materials include: black steel, marble, concrete, wood, and greenery. Low maintenance materials such as concrete and marble are essential for this conceptualization and match well with the lightning, structure, and simplicity of the interior design.
The façade of the building is irregular and is divided by a tree planted in one of the apartments that reaches a double height. Materials include: black steel, marble, concrete, wood, and greenery. Low maintenance materials such as concrete and marble are essential for this conceptualization and match well with the lightning, structure, and simplicity of the interior design.
© Mauricio Salas + Cesar Castañedo
(Mauricio Salas Cesar Casta Edo
Architects ArquiPartners
Location Ciudad de México, Mexico
Architects in Charge Rubén Rodríguez Paredes, Omar Rodriguez Paredes, Diego Diaz Cebado, Marisol Dorantes Castro
Area 900.0 m2
Project Year 2018
Photographs Mauricio Salas + Cesar Castañedo
Category Apartment Interiors
Manufacturers Loading...
客服
消息
收藏
下载
最近





















