查看完整案例


收藏

下载
Project: Edwardian Terrace House Renovation Architects: Chan Architecture Project team: Anthony Chan, Meyvin Puspita Location: Brunswick, Australia Area 233.0 m2 Project Year 2017 Photography: Tatjana Plitt
项目:Edwardian平台房屋翻新建筑师:Chan建筑项目组:Anthony Chan,Meyvin Puspita地点:Brunswick,澳大利亚地区233.0平方米项目年2017年摄影:Tatjana Plitt
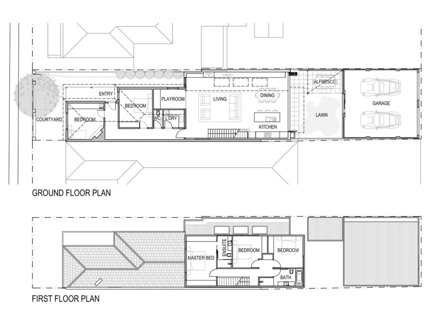
Renovating a semi-detached, single fronted Edwardian terrace house always poses a unique set of challenges. The sites are often long and narrow with a shared party wall on one side and an existing house which can be over 100 years old. The main challenge is always how to create modern, flexible, light-filled spaces with limited site access and a tight budget.
翻新一个半独立的,单一正面爱德华露台房子总是提出了一个独特的挑战。场地往往又长又窄,一边是共用的党墙,另一边是现有的房子,可能有100多年的历史。主要的挑战总是如何创造现代的,灵活的,轻盈的空间,有限的网站访问和紧张的预算。
With the Brunswick Rd house, Chan Architecture designed the extension to be built to boundary on both sides with high ceilings, light internal materials and strategically placed skylights to bring the light in from above. We also designed the cabinetry to be customised to the client’s needs so that everything had a place and how each space was to be used was carefully considered. The kitchen and dining areas also completely open up to the backyard, extending the feeling of space to the north.
陈家在布伦斯威克路住宅的基础上,设计了建筑的延伸部分,以高耸的天花板、轻巧的内部材料和策略性的天窗,将光线从上面引入到建筑的两侧。我们还设计了橱柜,以适应客户的需要,使所有的东西都有一个地方,并仔细考虑如何使用每一个空间。厨房和餐饮区也完全开放到后院,向北延伸空间的感觉。
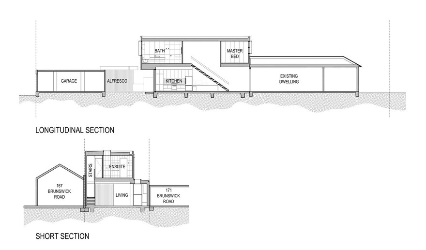
The external view from the backyard was designed to showcase the clean, rectilinear lines of the first floor extension with fine perimeter detailing, and the vertical batten cladding providing visual depth and transparency to the façade. The steel box around the window provides shelter, shading and privacy to the upstairs windows.
后院外景的设计是为了展示一楼延伸部分干净、直线的线条,并详细说明周长,以及为立面提供视觉深度和透明度的垂直板条覆盖层。窗户周围的钢制盒子为楼上的窗户提供了遮蔽、遮阳和隐私。
The materials were carefully chosen to provide texture and variety to give each element and room its’ own individuality, in particular with the selection of flooring, wall tiles and joinery finishes.
材料精心选择,提供质感和多样性,使每个元素和房间都有自己的个性,特别是地板、墙砖和细木工饰面的选择。
客服
消息
收藏
下载
最近

















