查看完整案例


收藏

下载
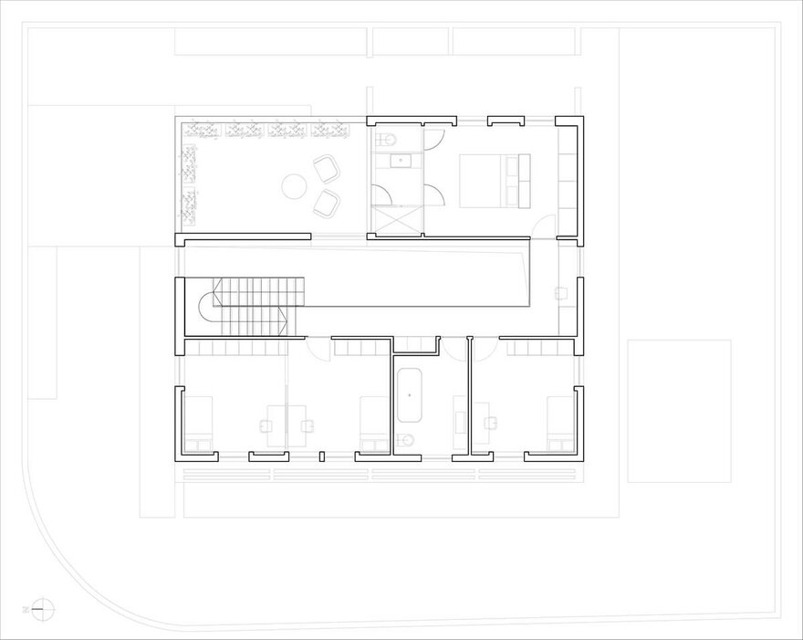
Project: Ramat Efal House Architects: ET Eicholz Antebi Arch Location: Israel Area: 250 sqm Photographer: Gal Porat
项目:Ramat Efal House Architect:ET Eicholz Antebi拱门位置:以色列地区:250平方米摄影师:gal Porat
Planing and interior design of two-story 250 sqm house in Ramat Efal, for a couple and their three children. The house was designed as a rectangular arc with a different interpretation of a tiled roof, which meets an imperative requirement to build tiled roofs, while at the same time conforms to the planning concept.
为一对夫妇和他们的三个孩子计划和室内设计两层250平方米的RamadsEefal。该房屋被设计成具有不同解释的瓦片屋顶的矩形弧形,这满足了建造瓦片屋顶的必要要求,同时符合规划概念。
A wall of shelves was designed as the backbone of the house, double-floor element, visible from everywhere. An indoor outdoor courtyard was designed as an integral part of the residential space of the house. The public space can be closed for shading and privacy through wooden shutters.
墙上的架子被设计成房子的支柱,双层结构,随处可见。室内室外庭院被设计为住宅空间的组成部分。公共空间可以通过木制百叶窗来遮阳和保护隐私。
客服
消息
收藏
下载
最近



















