查看完整案例

收藏

下载
Hawthorn East住宅项目包括对一座两层意大利风格别墅的修复和改造。这个传统住宅的改造尊重了正面的历史意义,而当代三层楼的增加和一系列的社会空间内化了景观,提供隐私和加强景观。该项目围绕客户简介中的两个主要元素进行设计。
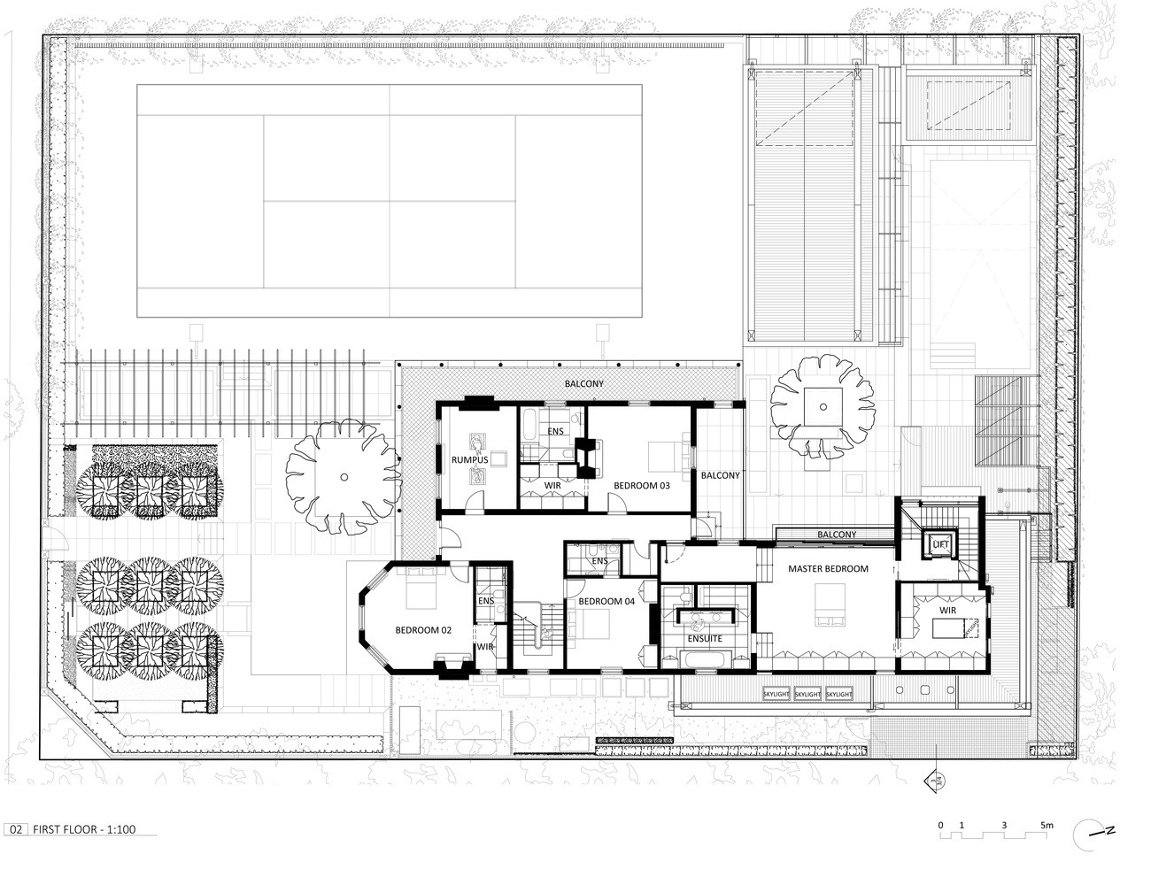
第一个是从恢复的房子到后面的附加部分的无流动的内部过渡,而第二个是一系列灵活的空间,向景观区域开放。随着遗产的正面和当代三层楼的增加,后花园住宅作为一个通过入口和美学设计连接的空间集合。这些不同的氛围可以用作私人庇护所或社交聚会的娱乐空间,始终提供一个良好的导向和通风的空间。
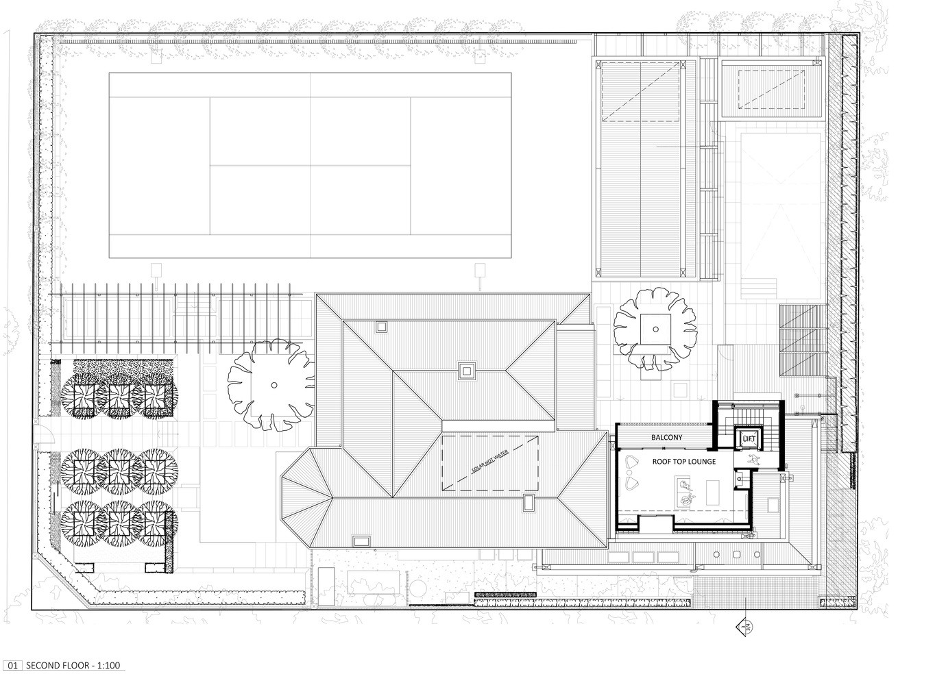
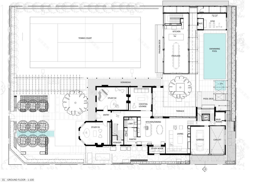
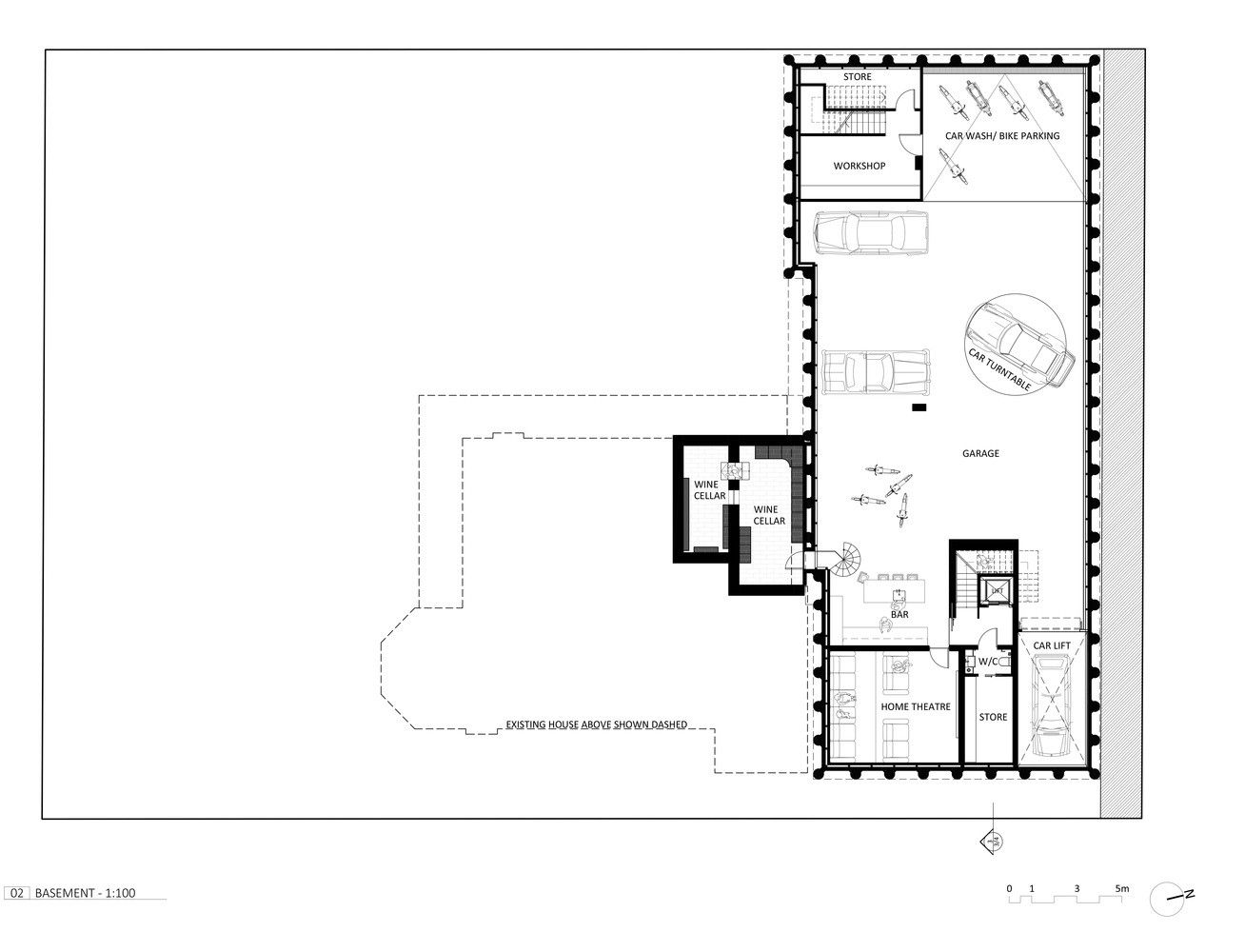
新的地下室包括一个车库、一个洗车间、一个酒吧和一个家庭影院,并与传统住宅下方现有的地下室相连。电梯/楼梯井连接了所有楼层,二楼的私人天空休息室可以一览墨尔本的美景。当代的附加部分——游泳池、健身房和亭子,设计在地下室的顶部——创造了各种空间的集合,通过入口和视觉连接连接起来。
该设计试图创造对比——新旧、冷与暖、重与轻。新结构和天然石材表面的宏伟自然与绿色墙壁的对比使用以及大型玻璃表面提供的透明度相平衡,这些玻璃表面用于滑动门,将一楼的空间开放给外部空间,并在三层楼高的电梯/楼梯井塔中使用。
来自新西兰,我们的客户的主要设计元素之一是希望在建筑和景观设计中体现新西兰海岸的感觉和色彩。这是通过将蓝色的水池瓷砖与绿色的景观斑块结合起来,并将Pohutukawa树融入到景观设计中来实现的。作为背景,电梯井和泳池亭天花板采用了新西兰本土木材Rimu作为覆层。
客服
消息
收藏
下载
最近






























