查看完整案例

收藏

下载
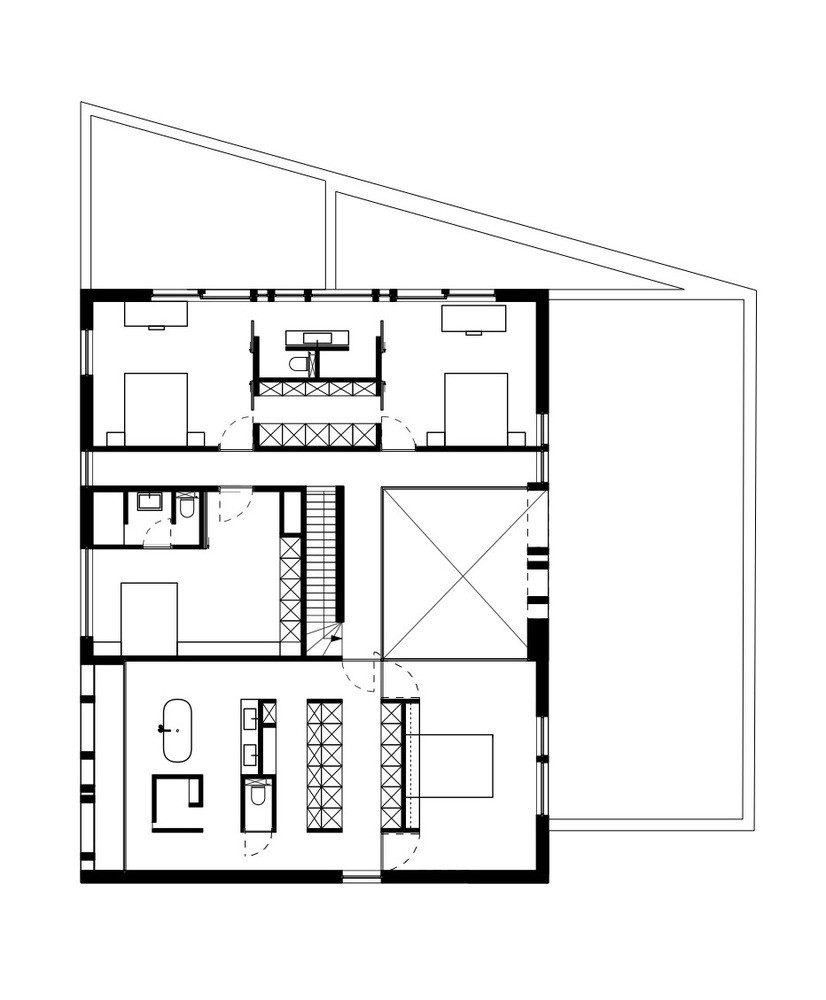
倾斜的地形产生了一个体积效应的概念。建筑的基本体量完全围绕着一个中央庭院。它被转移到不同的层次,以创造有趣的外部区域。在街道一侧,住宅的设计似乎是封闭的,以保持最大的隐私。
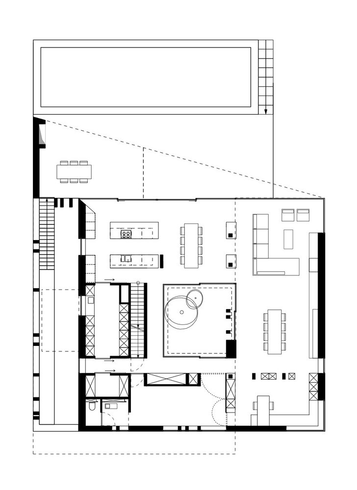
起居空间从内部向庭院开放,这确保了最大的开放性和舒适的生活质量与大量的日光。
只有办公区域完全朝向街道一侧,才能保持足够的社会控制力。因此,立面的右下角完全被玻璃覆盖。在后方faç正面,一楼是完全开放向花园,因此带来了生活区与花园的一面,因为内部和外部之间的界限变得模糊。遮阳篷和带屋顶的露台只会强化这种想法。
夜间区域位于楼上。为了保护街道一侧的隐私,立面是完全封闭的。主卧室朝向一楼的露台,儿童房朝向花园一侧。在地下室,通过在左侧设置一个露台,充足的日光被引入室内。正因为如此,几个生活区可以被安置在“生活”地下室。从天井,可以通过外部楼梯直接进入屋顶露台和花园。
客服
消息
收藏
下载
最近
























