查看完整案例


收藏

下载
近几十年,日本建筑师在世界上影响力越来越大,一个个当红建筑师在现代主义当道之下,走出日本建筑的独特之路,同时也影响了很多西方设计师。
今天介绍的建筑师Matthew Woodward就是一个喜欢东方设计的人,尤其欣赏安藤忠雄的建筑风格,经常去日本考察学习,热爱与天赋让他大学没毕业就一炮而红。
△Matthew Woodward 事务所成员
Matthew Woodward于2007年毕业于纽卡斯尔大学,并于2012年创办了Matthew Woodward 建筑事务所,先看一下他最近的新作品。
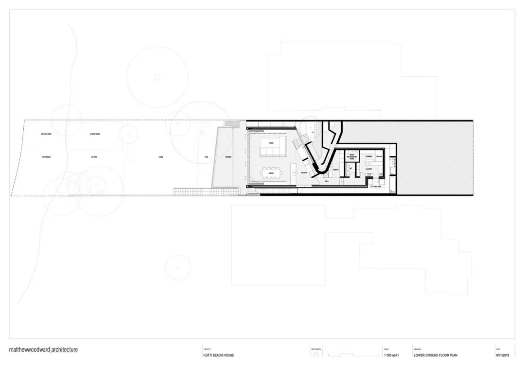
安藤忠雄喜欢使用清水混凝土作为建筑材料,他认为混凝土是一种具有生命力的材质,Matthew Woodward建造这栋住宅也是深受其启发,利用混凝土打造了这栋极简风格别墅。
住宅可以俯瞰悉尼港,将海滨美景尽收眼底,面积439平方米,建筑师融合了当代建筑和设计,同时也突出了环境的元素,让建筑与自然完美融合。
住宅内部设计遵循简约和现代美学,纯色中点缀绿色、黄铜和红色,这样的设计让室外的景观能够成为“建筑化的景观”,而非独立的元素,与室内已经产生对话互动。
光是安藤忠雄建筑作品的重要主题之一,Matthew Woodward也引用了这一点,天花板上设计了很多采光天井,有椭圆形和不规则几何形。
别墅中最主要的走廊被设计成“艺术画廊”,将所有房间连接在一起,将上下层的空间巧妙链接在一起。
光线所具有的独特美感以及对于空间的强大表现、探索能力,与朴质自然的混凝土结合,让现代美无限的放大。
圆形的露台有着优美的弧线,犹如海边的一滴水滴,与卧室无缝衔接,随时都能看见壮观的美景。
Matthew Woodward本人是个非常热爱学习的人,除了对安藤忠雄的学习,对世界很多著名建筑师作品都深入的去研究,寻找他们作品成功的经验。
这栋房屋的设计是受到了密斯·凡德罗设计的范思沃斯住宅的启发,这同时也是Matthew Woodward大学最后一年的设计作品,因它的成功而备受瞩目。
△密斯·凡德罗 范思沃斯住宅 1945年
密斯的作品是“于无声处听惊雷”类型,看去平实朴素,但却越看越耐看,因为他有自己强烈的诉求,作品就不仅仅是个建筑,而是一个固化的哲学作品。
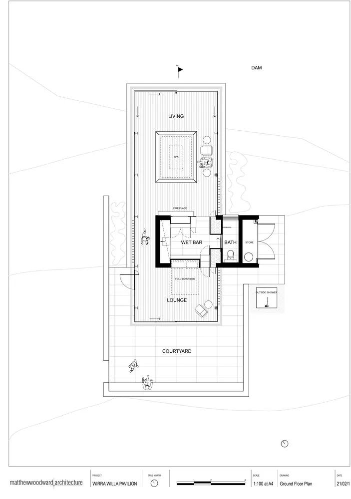
Matthew Woodward提取了它简约的设计风格,也融合了一些日式的建筑风格,设计了这栋WIRRA WILLA PAVILION房屋。
Matthew Woodward将这个房屋描述为“一座以Miesian为灵感的玻璃展馆” 。
房屋位于一个天然湖泊旁边,景色宜人,建筑悬臂在湖泊上方2.5米处,营造了一个非常好的视线角度,整体面积约72平方米,配有36平方米的外部庭院。
建筑耗时约八个月,主结构采用复合钢框架、玻璃,地板和屋顶采用混凝土板,而较小的房屋采用混凝土砌块。
在温暖的月份,滑动玻璃面板打开可以自然交叉通风,而在冬季,太阳能的热量可以传导给木地板,以创造相对恒定的内部气候。
在起居室中间有一个水疗池,不需要时可以用木板隐藏起来,来增加空间面积。
房屋内部采用当地材料,地板是牛脂木,一种天然的桉树种类,因其在当地温泉区的耐用性而受到青睐,颜色偏金黄色。卧室家具、浴室和存储柜使用了环形松木胶合板。
在外面一个隐蔽的角落增加了一个淋浴,为家人提供了一个与周围环境互动的机会。
她是柯布西耶最好的搭档,LV为了纪念她,完成了她80年前的设计
首发 | 东仓:UR 伦敦旗舰店--稀声,中国品牌全球商业里程碑
2019 米兰家具展必收藏「攻略」,趋势、热点、创意、外围展早知道
未开业,预定已排到半年后!这家沉入大海的餐厅为何如此火爆
客服
消息
收藏
下载
最近

































































