查看完整案例


收藏

下载

翻译
En bord de pinède, la Halle des sports des Verriès mêle bois et béton dans une construction sobre, ingénieuse et manifeste.
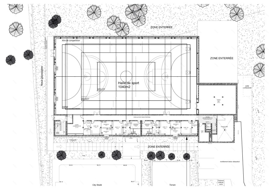
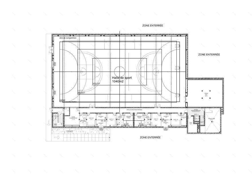
Le premier point de singularité du projet est son implantation sur un terrain en pente qui présente 5 mètres de dénivelé. Afin de minimiser la quantité de déblai et d’intégrer le bâtiment à l’environnement existant, nous avons imaginé l’optimisation du programme en termes de compacité.
La Halle se singularise également par sa structure grande portée au-dessus de l’espace de jeu. Une charpente en bois lamellé collé surplombe l’aire multisport, tandis que les façades, légères, à ossature bois, sont rehaussées par un bardage métallique nervuré, le béton brut apportant contraste au bois.
Réalisée en concertation avec A+Architecture, une fresque de 30 m de large par 10 m de haut, signée par l’artiste ASTO, a été réalisée sur-mesure pour le projet. Intégrée à l’architecture de la Halle, elle habille un mur en béton de 265 m². Créant un jeu de profondeur et de miroir avec l’architecture géométrique, elle sublime le volume de la Halle, dynamise l’espace et apporte contraste avec les matériaux bruts employés.
+ Charpente en bois lamellé collé et murs à ossature bois
+ Démarche environnementale responsable
> conception bioclimatique
> éclairage naturel
> économies d’énergie
> énergies renouvelables et durables
> économies d’eau
> choix raisonné de matériaux de construction
> gestion acoustique
> gestion du chantier
客服
消息
收藏
下载
最近

















