查看完整案例


收藏

下载
业主基本信息:民航飞行员
第一次与业主碰面,干练的气质,帅气的脸庞,令人羡慕的职业,无一不体现现代社会精英的气息。我想,我必须要用设计师的专属语言诠释这次理性、质感的奢美空间。
大面积海棠木色,沉稳、大气、典雅,在快节奏的喧嚣生活中,让人静下心来,享受家中安静的美好;低调的灰系中点缀着丝丝金与蓝,成就了国际范儿的高级,一缕轻奢,让我们在忙碌的生活中,追求高品质生活。蓝色的抽象艺术画和地毯象征着业主在碧海蓝天中翱翔,走廊尽头的挂画寓意穿越时光到达幸福的彼岸,空间的艺术装饰完美的和业主的职业特性产生了共鸣。
业主喜欢简单利落的空间设计,利用简洁硬朗的金属板定制而成的电视墙,正好与之相符,并辅以灯带的柔光,赋予空间独特光影魅力。
不同的色调及材质划分空间,简单的吊顶,视觉上拔高了层高,扩大了空间感。
精致的壁炉散发出浪漫迷人的气息,寒冷的冬天,屋内的壁炉却火光温暖,让人觉得格外浪漫,感受到别有一番情趣。
设计对空间功能性、情感性、观赏性颇为注重,摆设从简,挂画的选配也是由业主的狮子座星座而来,让整个客厅的气质更显霸气,创造空间融合及视觉张力。
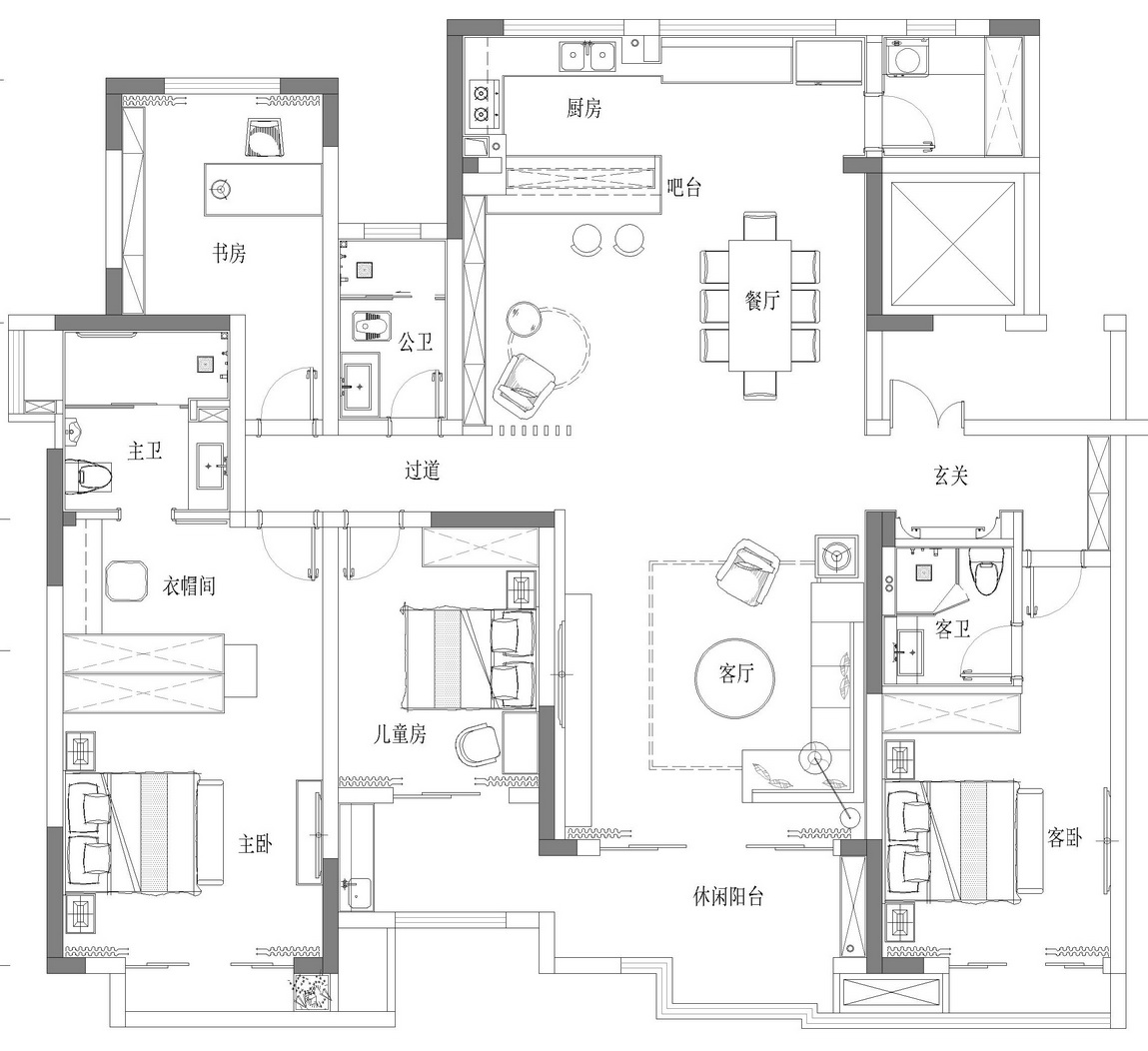
拆除原有非承重墙体,打造开放式格局,对空间重新进行动静划分和布局整合,客餐厅与厨房一览无余。
高贵的爵士白大理石餐桌配上朴实的棕色餐椅,在沉稳的黑色镜面墙与亮丽的金色吊灯的色彩碰撞中,共同演绎低调而又奢华大气的风范。
半敞开式结构的厨房,以黑白为主基调,错落有致的操作台面与吧台。通过吧台玻璃移门,既能阻隔部分油烟,又确保通透,还能与客餐厅产生互动,形成空间流畅连续的过渡,让厨餐厅布置配比更合理。
主卧位于走廊尽端,关于主人房间的设计,我们兼具舒适与雅致,从细节着手,床头利用非对称线条的硬包构成,原木色的地板、利落的墙面、毫无冗赘的家具相搭配,演绎材质的自然拼接,落地窗通透的采光,让整个空间简洁而温暖。
移除书房原结构中非承重墙作为独立书房,最大化利用有限的空间,构建具有现代美学的书房,深浅两色,不比黑和白的纯粹,却也不似单一。
位于独立端头的客房也拥有通彻明亮的落地玻璃滑门,基于延续主卧的设计,让空间变得顺其自然。
用现代线条感极强的防腐木打造精致阳台,每到傍晚江风习习,主人便可以坐在吧凳上,俯瞰江景,远离喧嚣,营造了广阔视野的一个别致的私人空中花园。
楼盘信息:重庆 紫御江山御湾
设计工作室:一邸丨室内设计
客服
消息
收藏
下载
最近























