查看完整案例

收藏

下载
Happy Haus在一个不太可能的环境中为年轻客户提供了一个聪明的四合院;昆士兰州东南部一个新的郊区住宅区。客户是一对年轻的夫妇,这是他们第一次与这家总部位于布里斯班的公司合作,将Helensvale Haus打造为一个开放的庭院风格的住宅,位于他们中等大小的街区上,与庄园的项目风格住宅紧密相连。
Happy Haus董事总经理拉克兰•格兰特(Lachlan Grant)表示:“我们与客户的愿景合作,指导他们完成设计和建造住宅的过程。”“我们有着建立在信任基础上的良好工作关系;我们相信他们的需求和想法,当遇到困难的设计选择时,他们相信我们的经验,尤其是因为他们和我们所有的客户一样,都有预算。”
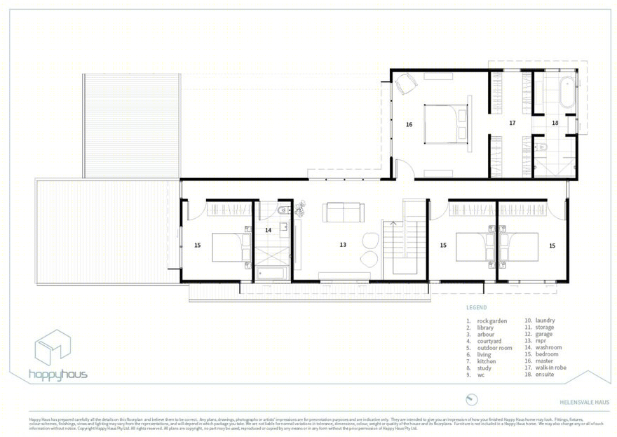
Helensvale Haus住宅的设计是为了呼吸。住宅的每一个区域都可以向自然光线和空气开放,满足客户利用亚热带气候建造一个经典四合院的愿望。
当起居区域被包围并流入中央郁郁葱葱的庭院时,Happy Haus考虑到客户在人口密集的住宅中对隐私的需求。从街上看,Helensvale Haus的现代盒子立面作为客户室内外生活空间的屏障。
一进门,穿过院子前边的大门,住宅立刻给人一种私密感,与街道分隔开来。开放式的起居和厨房区域被滑动门包围,允许无缝的交叉通风和与庭院的连接。
楼上,房子的多样性变得显而易见。一系列的卧室、浴室和安静的生活空间都面向内部的绿色庭院。第二个隐居式的生活区增加了住宅的灵活性,允许居民远离开放的一楼,有一个僻静的休息空间。
位于黄金海岸的新郊区房产整齐地排列在一排排千篇划一的房子里,这些房子有可能侵犯海伦斯韦尔别墅(Helensvale Haus)的隐私。Grant继续说道:“郊区的房产很少是那些注重客户需求和生活方式的建筑设计住宅。”
“通常,批量建造的住宅占据了这些网站的主导地位,因为它们只关注成本结果。我们的理念是创造一个设计、质量和成本都是平等伙伴的住宅。”
“建筑设计的住宅不需要昂贵或高不可攀;了解您的需求和预算是进行构建时最重要的因素。”
我们交付这所房子的价格远低于每平方米2150美元的标准澳大利亚建筑成本,而且与邻近房屋的建筑费率更接近。”
总部位于布里斯班的Happy Haus公司认为,建筑应该是一种更广泛的服务,因为它有能力改变人们生活和与环境互动的方式。该业务提供了多学科的设计和施工方法。建筑师、有执照的建筑商、制造商和项目经理都坐在同一个团队中,用一个共同点为广泛的客户提供解决方案;渴望一个高品质的家,将提高他们的生活质量,通过良好的设计。
客服
消息
收藏
下载
最近


















