查看完整案例


收藏

下载

翻译
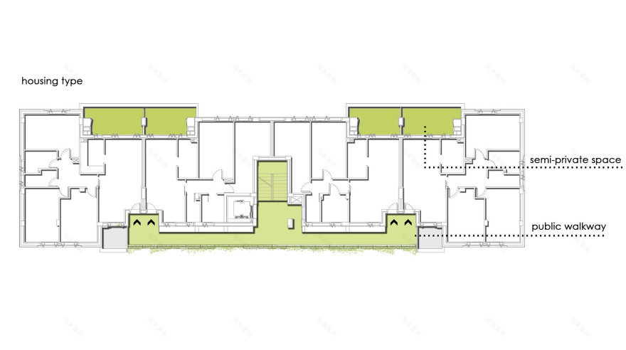
Il progetto del nuovo fabbricato nel quartiere di Primavalle a Roma si inserisce all'interno di un programma di Contratti di Quartiere che riqualificano all'interno dell'area urbana. L'intervento riguarda la costruzione di un fabbricato di alloggi sociali per ventidue alloggi in Via Pietro Bembo, una decina di anni fa è stato demolito un fabbricato preesistente. Il progetto si incentra sulla elaborazione di un'interrelazione spaziale tra tipi di edilizi e morfologia dello spazio, tra gli spazi pubblici e luoghi dell'abitare, oltre a una struttura tipologica che divide la base di riferimento per la definizione architettonica degli alloggi. Il nuovo edificio, che riprende le dimensioni e la volumetria di quello preesistente, edificio e la città è mitigato sul fronte principale da una grande parete verde, un filtro urbano al tempo stesso artificiale e naturale composto da un sistema schermante a lamelle colorate, con arbusti e piante rampicanti quartiere. L'intervento si propone di interpretare nuove strategie dell'abitare, puntando sulla miscela, sulla flessibilità, sull'organizzazione degli spazi comuni, sull'uso del colore e sull'adattabilità dell'alloggio a esigenze diverse e mutevoli nel tempo. con arbusti e piante rampicanti che dividono un punto di riferimento verde per il quartiere. L'intervento si propone di interpretare nuove strategie dell'abitare, puntando sulla miscela, sulla flessibilità, sull'organizzazione degli spazi comuni, sull'uso del colore e sull'adattabilità dell ' alloggio a esigenze diverse e mutevoli nel tempo. con arbusti e piante rampicanti che dividono un punto di riferimento verde per il quartiere. L'intervento si propone di interpretare nuove strategie dell'abitare, puntando sulla miscela, sulla flessibilità, sull'organizzazione degli spazi comuni, sull'uso del colore e sull'adattabilità dell'alloggio a esigenze diverse e mutevoli nel tempo.
Programma/Program Alloggi bioclimatici in via Bembo | Social housing, apartments in via Bembo
Luogo/Location Roma, Italy
Committente/Client A.T.E.R. del Comune di Roma RUP Oscar Piricò - Paola Colonna
Progetto/Project 2009-2010 Primo Premio / First Prize
Realizzazione/ Construction 2016-2020
Team Progettazione architettonica / Architecture Tstudio - G. Salimei
Progettazione strutturale / Structure EUTECNE s.r.l.
Progettazione impiantistica/MEP: B.Nutile, P.Saraceni
Progettazione paesaggistica/Landscape design E.B.S.G. s.r.l., G. Fantilli
Impresa esecutrice / Contractor Sarep S.r.l.
Direzione Lavori G.Salimei
ufficio D.L. C.Salimei con L.Pergolesi, A.C. Giustizieri
客服
消息
收藏
下载
最近
























