查看完整案例

收藏

下载
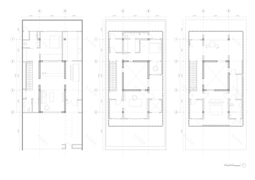
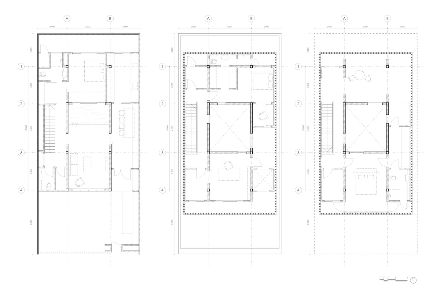
这栋房屋坐落在一个小型老旧居民区中,与现代生活标准相比这里的建筑和生活规模都很小。在窄小的街道上,社区中的房屋正在经历向更大的新建筑的转变。
这个项目是探讨小地块怎样才能与时俱进实现价值作出的尝试,并与周边环境进行对话。日常活动被安排在中部天井周遭进行,这模仿了东南亚炎热气候下诞生的骑楼建筑,以产生自然对流换气并让柔和的天然光进入到每个房间。
这栋建筑为了应对附近区域的多种建筑风格,设计了围合住建筑边界的混凝土砖墙,以保留不同程度的隐私。
与当地混凝土砌块生产商的合作使混凝土砖这种现代本土材料跟上了时代的脚步,得到更多应用方式。
客服
消息
收藏
下载
最近

















































