查看完整案例


收藏

下载

翻译
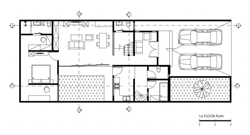
A residential project located in Bandung, Indonesia, built on 225 sqm land with a building area of 270 sqm. The design approach is to build a simple, modern, and unique looking house with a triangular shape facade and asymmetrical roof. A seemingly enclosed facade that has only several openings becomes an interesting concept to create an inward orientation. We bring an inner court concept as a central mass of the building, allowing air and daylight to circulate through this two-floor house. The first floor consists of a parent's main bedroom and common room, whereas another main bedroom, two children's bedroom, and supporting room are on the second floor. Each room adjoins the void and/or inner court, so every room gets lighting and natural ambiance.
客服
消息
收藏
下载
最近
























