查看完整案例


收藏

下载
Aperture House是一个不断增长的家庭的家,它连接了私人住宅的舒适与悉尼城市天际线的不间断的观点,包围在一个安静的社区。威洛比住宅的部分概念框架来自我们与客户的关系,以及他作为工业设计师的工作。物体制作的概念允许我们处理形状和几何,并通过改变光线、阴影和独特的几何饰面将图案和重复引入设计中。
进入住宅后,光线通过天窗、漂浮的天花板和独特的几何窗户照射进来。圆的孔径在设计中发挥了重要的作用,被大规模地用来框起树叶散落的天空。然后通过网格栏杆在微观尺度上重复这个过程。两者都创造了一种独特的光的游戏,因为太阳在一天中移动。
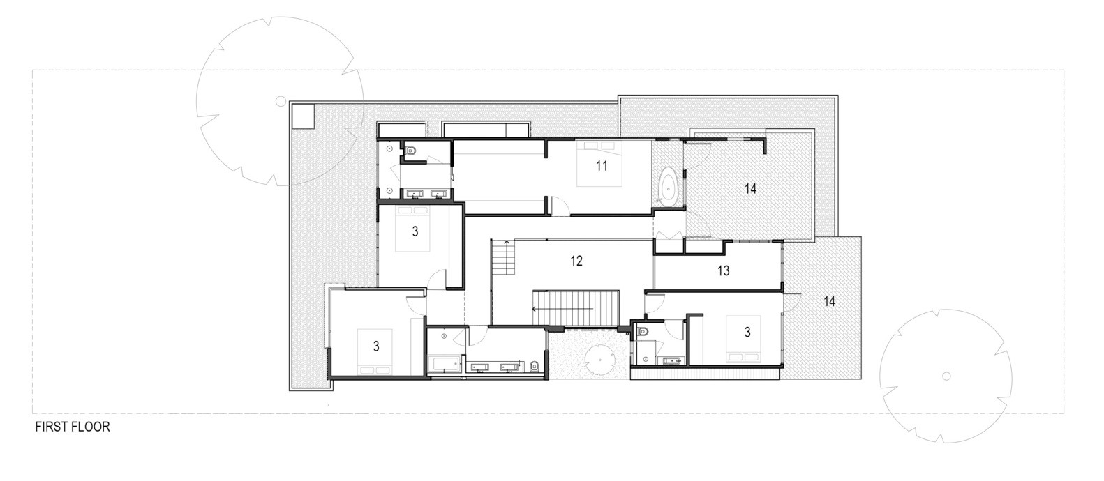
光圈的概念通过分层的建筑再次发挥作用,不断创造出住宅的远景和视野。站在前门,你可以看到孩子们在后院玩耍。从夹层到一楼娱乐区之间的屏风——向中东家庭的Mashrabiya格子图案致敬——暗示了孩子们观察聚会,通过空间保持身体和情感上的联系。
除了一个能满足家庭需要的家,他们还能在细节中感受到快乐。巧妙地使用了隐藏式led灯和柔和弯曲浴室天花板的瓷砖,并与工业材料并列。裸露的混凝土和钢梁的使用进一步连接了客户的工业设计背景。
客服
消息
收藏
下载
最近































