查看完整案例


收藏

下载

翻译
ENG_
We are in a building with a very important volume in the architecture of Gradisca d'Isonzo, in front of the theater, overlooking the big garden.
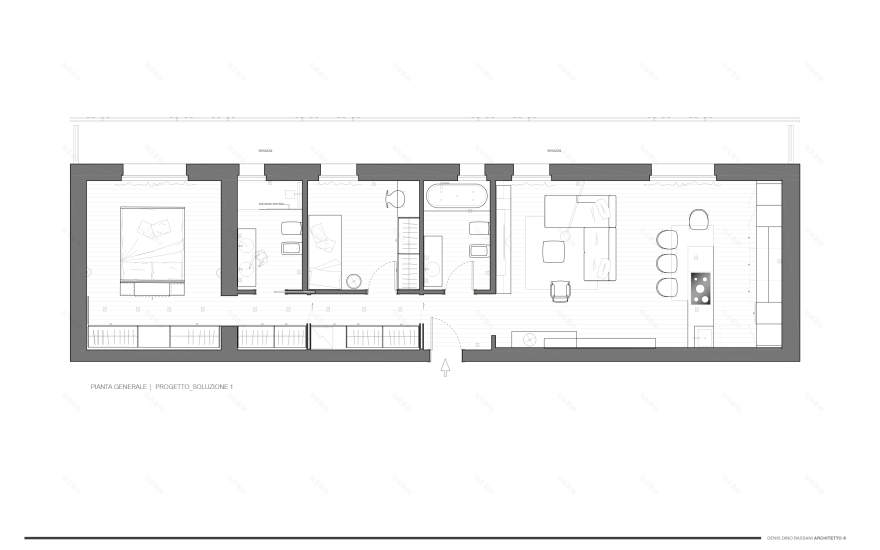
An interior architecture project that starts with the new distribution of spaces, creating generous and functional environments, where natural light makes everything very harmonious but indirect light is the real protagonist.
The materials and the colors bind together with the surrounding landscape, observing from the windows you perceive a continuity from the outside to the inside, where the attention to detail and the choice of materials is enhanced by the lighting.
From the entrance you enter with a view towards the living area, an open space where the living communicates with the kitchen and the choice to standardize the use of finishes gives a balanced atmosphere.
The living area communicates with the sleeping area, through a long corridor where we find all the custom-made wardrobe with full-height sliding doors. The chromatic choice enhances the sense of depth and dynamism. There are two bathrooms, designed as places of well-being and regeneration of the body, the representative one has a tub and is dark to give a relaxing atmosphere, while the master one has a shower and is lighter to transmit a charge of energy.
The dominant materials of the project are natural ones such as the oiled oak floor and the materiality of carrara marble.
Despite the singularity of the apartment, there is a warm atmosphere that derives from strong and ambitious stylistic choices such as the choice of noble materials. The association of the three main materials such as the wood of the floor (from the kitchen to the living room passing through the corridor to the rooms and bathrooms), the wood of the kitchen and Carrara marble, are a signature that underlines the overall coherence between the spaces.
Using the product design knowledge, every element from the kitchen to the TV wall, to the wardrobes, has been designed, prototyped and built.
The care and attention of every single part of this project, from the plan distribution, to the choice of materials, furnishings and above all the lighting, has made it possible to enhance and make this apartment noble.
Cooperation: Akua Living Bath - supply materials and bathrooms furniture ; Archinterni - supply furniture
ITA_
Ci troviamo all’interno di un palazzo dal volume molto importante nell’architettura di Gradisca d’Isonzo, di fronte al teatro, affacciati al Giardino Grande.
Un progetto di architettura d’interni che parte dalla nuova distribuzione degli spazi, creando ambienti generosi e funzionali, dove la luce naturale rende tutto molto armonioso ma è la luce indiretta la vera protagonista. I materiali e i colori sì legano tra loro con il paesaggio circostante, osservando dalle finestre sì percepisce una continuità dall’esterno verso l’interno, dove la cura del dettaglio e la scelta dei materiali viene esaltata dall’illuminazione.
Dall’ingresso sì entra con la vista verso la zona giorno, un open space dove il living dialoga con la cucina e la scelta di uniformare l’utilizzare delle finiture dona un atmosfera equilibrata.
La zona giorni comunica con la zona notte, attraverso un lungo corridoio dove troviamo tutta l’armadiatura realizzata su misura ad ante scorrevoli a tutta altezza. La scelta cromatica esalta il senso di profondità e dinamismo. I bagni sono due, pensati come luoghi di benessere e rigenerazione del corpo, quello di rappresentanza ha la vasca ed è scuro per dare un atmosfera rilassante, mentre quello padronale ha la doccia ed è più chiaro per trasmettere una carica di energia. I materiali dominanti del progetto, sono quelli naturali come il pavimento in legno di rovere oliato e la matericità del marmo di carrara.
Nonostante la singolarità dell'appartamento, c'è un'atmosfera calda che deriva da scelte stilistiche forti ed ambiziose come la scelta di materiali nobili. L'associazione dei tre materiali principali come il legno del pavimento (dalla cucina al soggiorno passando attraverso il corridoio verso le stanze e i bagni), il legno della cucina e il marmo di Carrara, sono una firma che sottolinea la coerenza globale tra gli spazi.
Utilizzando le conoscenze di progettazione del prodotto, ogni elemento dalla cucina alla parete tv, agli armadi, è stato progettato, prototipato e costruito.
La cura e l’attenzione di ogni singola parte di questo progetto, dalla distribuzione in pianta, alla scelta dei materiali, degli arredi e sopratutto dell’illuminazione, ha permesso di valorizzare e rendere nobile questo appartamento.
Collaboratori: Akua Living Bath - fornitura materiali di finiture e arredi bagno ; Archinterni - fornitura arredamenti
客服
消息
收藏
下载
最近
















































