查看完整案例


收藏

下载

翻译
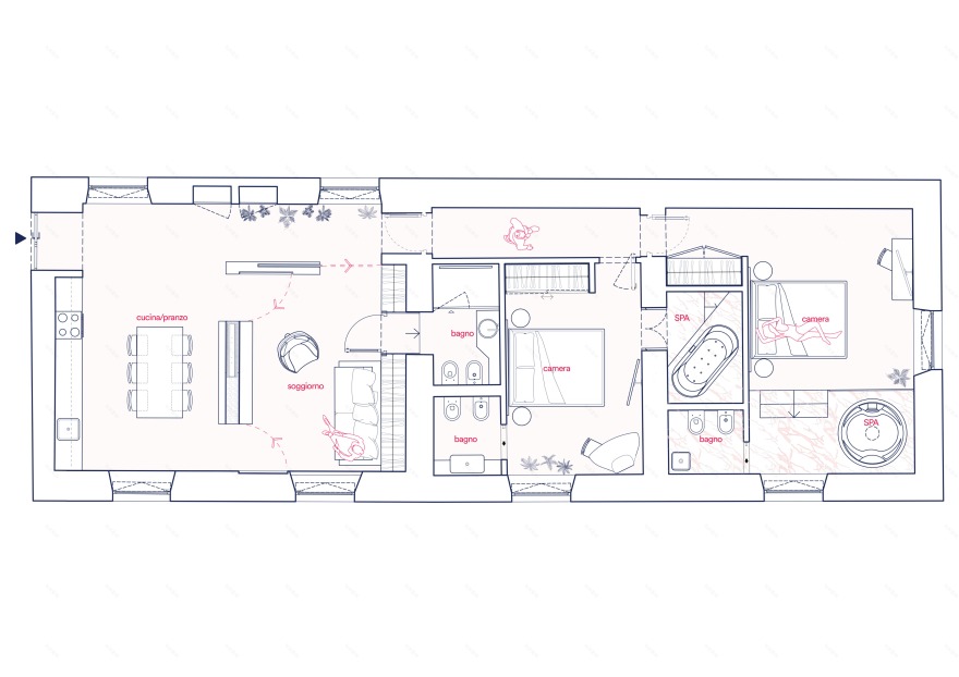
La nuova Casa Vacanze Annarita si trova in uno degli angoli di Via Veneto, dove una volta i film in bianco e nero raccontavano la 'dolce vita' romana sospesa tra bar, hotel e locali. Ora Via Veneto è ancora una zona di attrazione del turismo internazionale ma si è arricchita anche di numerosissime sedi di società nazionali e multinazionali. L’idea di progetto nasce dall'analisi di questo contesto urbano: la casa vacanze è destinata ad una fascia di mercato medio-alta e gli ambienti interni, oltre a soddisfare un momento di riposo, offrono la possibilità di effettuare delle esperienze di benessere o continuare a lavorare in tutta comodità. La casa vacanze è quindi polifunzionale, mantenendo però un adeguato livello di eleganza che non intimorisce. La zona living è stata pensata come uno spazio polivalente e flessibile grazie ad elementi di arredo su misura che danno la possibilità di trasformare quando necessario il living in un’aggiuntiva camera: una delle ante del grande armadio bianco del living nasconde un ambiente piccolo ma accogliente bagno; dal setto rivestito in ottone e dal muro perimetrale si staccano delle ante larghe circa 1 metro per 2,9 metri di altezza, delle quali non si nota l'esistenza fino al momento del loro utilizzo; l'elemento centrale a doppio vetro, che contiene al proprio interno un bio-camino bifacciale, si oscura creando la corretta privacy di questa stanza aggiuntiva. La zona della cucina rimane sempre a disposizione nelle varie configurazioni: questo è un spazio in grado di accogliere grandi tavolate, ma anche momento di smart-working, lettura, relax condiviso.
I portali in “nero marquina” accompagnano l’ospite attraverso i vari ambienti dettando lo spazio, dialogando con le geometrie delle falegnamerie. Gli ambienti, moderatamente minimalisti, si vestono di finiture che si alternano tra rivestimenti “marmorei” e falegnamerie su misura a volte rivestite in bronzo. Queste finiture si arricchiscono dei velluti dei letti su misura e dei preziosi mosaici delle zone con vasche idromassaggio che le due camere hanno al proprio interno.
客服
消息
收藏
下载
最近


































