查看完整案例


收藏

下载

翻译
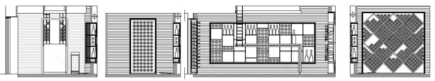
Studio delle caratteristiche edificio, quindi progettazione e realizzazione speciale Wine Room in una residenza privata in Brianza. Particolare design degli arredi , retroilluminazione, controllo temperatura e umidità relative. Un luogo particolare dove conservare e consumare in compagnia le proprie etichette !
客服
消息
收藏
下载
最近


















