查看完整案例


收藏

下载
“万物以感觉始: 肉体,物体,情趣为自我构成一个最初的空间。 ” —— 罗兰·巴尔特
【FKD-方鲲国际设计】是一家专注豪宅别墅全案设计与整装为一体的专业服务机构,每年定量只接受30套高端别墅的全案设计服务,为极少数商业精英、各界名流提供专业的一对一私人定制式服务,为客户建立终身档案。服务过的项目:恒大丽宫、远洋LAVIE、格拉斯小镇、碧水庄园、澳大利亚悉尼玫瑰湾海景别墅、润泽御府、润泽庄园、棕榈滩、龙湖颐和原著、优山美地、东方普罗旺斯(融创壹号庄园)、北京院子、万科观承等。针对公司性质我们想打造出一个有接待功能,在空间架构上引用了中国传统的园林结构语言,风格取向用了具有现代建筑语言。
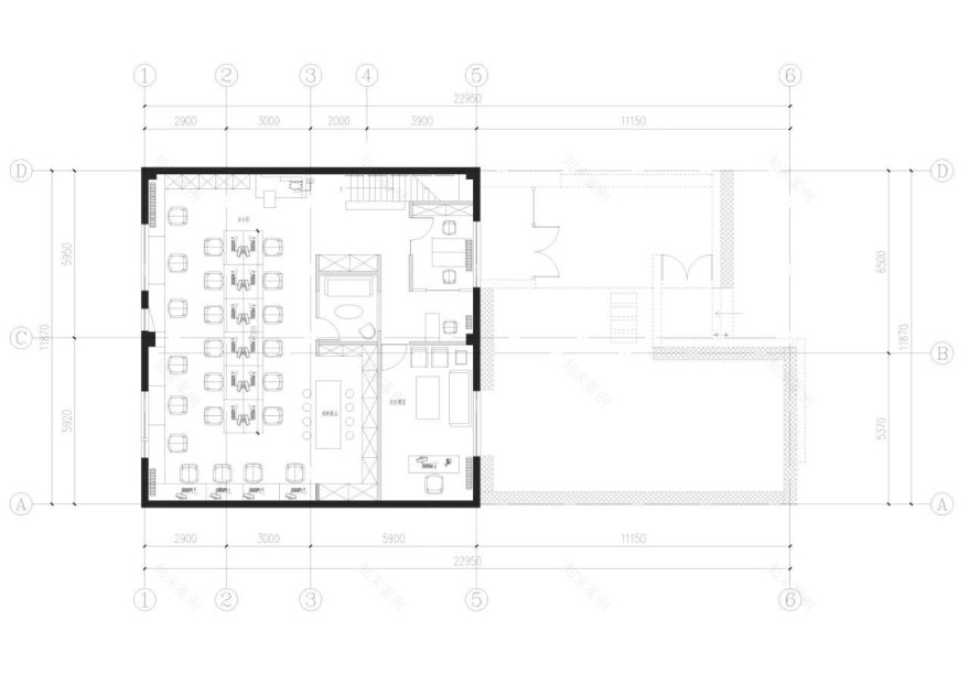
本次设计项目位于北京市朝阳区花家地南里2号院B栋。建筑二层总面积320平方,带前院花园。一层主要接待,二层办公区。
当所有的功能和要求都确定后,我们回归到自己以往的知觉经验里,在现有建筑空间320平方的空里,我们想用现代建筑语言表达出具有中国传统建筑虚实相生,内外交融辨证思想。
院子以笔断意连的同一材质的墙体,由室外一直穿插到室内空间,把影背,带入感和移步移景的中国传统园林思维用现代建筑语言表达出来。
前台区通过插入的一段墙体,与室外交融一体,并巧妙的把楼梯做了分隔,与前台的接待台彼此独立并合在一起。建筑模数采用“方鲲国际”中的“方”和黄金分割,使空间在尺度比例这块有些古典意识美。
会议室悬挑,两种材质形体互相插入极有现代建筑语言感。在一个独立的空间里我们还想创造出建筑中的建筑,所以插入一带壁炉的书房,空间变得丰富又层次并有温情感,折叠的玻璃门把室外又带入了室内,玻璃后过道区的绿植墙,让整个会议空间仿佛至立于院子中间,一切都开始变模糊,变得无界,似乎从不同的角度变得无限的可能。
文武国家注册高级室内建筑师,从业20年,荣获国内外大奖。为客户提供设计落地服务,立足于北京,项目涵盖国内外。致力于酒店、地产、办公空间、高端别墅等项目的建筑规划、设计室内设计、软装陈设一体化服务。提倡的设计取向:建筑空间、国际时尚、艺术、家。空间是骨架,格调是衣衫,内在气质决定了最终的高级感。超越的不是形式,而是思想本身。
客服
消息
收藏
下载
最近































