查看完整案例


收藏

下载

翻译
La casa se encuentra cerca del Municipio del Retiro, el lugar es favorecido por las múltiples vistas que hay de las montañas antioqueñas.
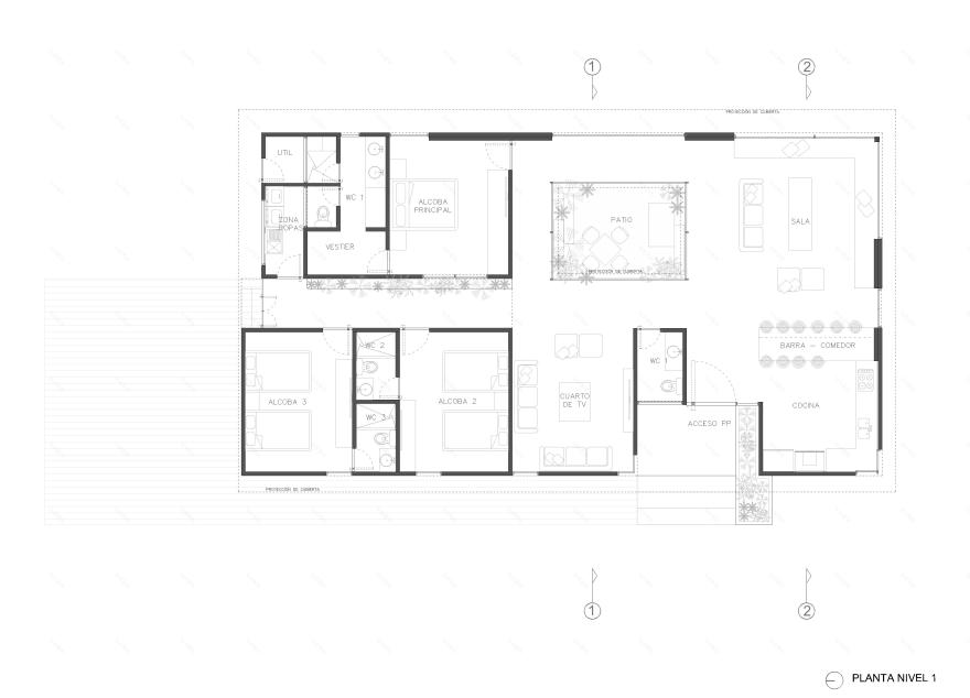
La propuesta de diseño surge del deseo de proyectar una casa de descanso rodeada de naturaleza en la que el interior y el exterior están estrechamente vinculados, de esta manera se plantea como eje estructurador de la vivienda un jardín interior central a partir del cual se desarrollan todas las estancias de la casa.
El jardín interno funciona como un regulador del confort al interior de la casa, al ser un volumen acristalado transmite al interior de la vivienda el calor captado por la radiación solar en los días fríos, mientras que en los días calientes se abre completamente el volumen permitiendo refrescar las estancias interiores por medio de la ventilación natural.
El interior de la casa se vincula directamente con el paisaje natural a través de las amplias ventanas. Desde el exterior el volumen de vidrio refleja la naturaleza del entorno que se convierte en parte de la casa y se materializa al interior mediante los dos jardines intermedios.
La materialidad del proyecto refuerza la idea de tener una casa de descanso en el campo que combina detalles rústicos con conceptos modernos en busca de formar el conjunto perfecto entre el exterior que se mimetiza con el entorno y un interior cálido y acogedor.
客服
消息
收藏
下载
最近






















