查看完整案例


收藏

下载

翻译
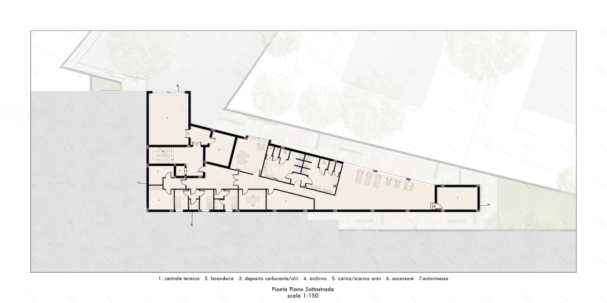
La nuova caserma dei carabinieri sorge a San sebastiano al Vesuvio, un piccolo paese della provinci di napoli, che dista 14 km dal capoluogo campano e rientra all'interno del Parco Nazionale del Vesuvio. Questo lotto è infatti soggetto a diversi tipi di vincoli e gli interventi mostrano come tale vincoli siano stati rispettati. La villa apparteneva precedentemente a Luigi Vollaro, nome legato alla criminalità organizzata napoletana. Negli anni '80 Vollaro viene arrestato e nel 2004 questa proprietà viene acquisita al patrimonio comunale. Solo nel 2009 un bando della provincia di Napoli prevede qui la realizzazione della nuova Casema, progetto che poi viene abbandonato per mancanza di fondi. Nelle prime fasi progettuali ho deciso di sottrarre alcuni elementi simbolici che caratterizzano questo edifico. Elementi che connotano sia il suo aspetto residenziale, domestico ma anche quei caratteri formali che negli anni lo hanno reso riconoscibile ed identificato come il covo del camorrista. Tuttavia non volevo che questo edificio perdesse completamente la sua identità morfologica. Le trasformazioni effettuate sono state influenzate dalla scelta di intervenire sulla preesistenza conservando la struttura portante, intervenendo sugli spazi non più compatibili con la nuova destinazione d'uso. Cambiando destinazione, inevitabilemnte variano le funzioni interne che si proiettano sui prospetti nel loro rapporto tra pieni e vuoti. E' un intervento che tiene anche conto dell'aspetto economico per non commettere gli stessi errori del passato, un progetto che viene messo da parte perche non rientra nei fondi stanziati. Nelle trasformazione effettuate si può leggere una riscrittura modernista dell'edificio attraverso la rarefazione degli elemnti architettonici, una rarafazione che tende a sottolineare il passaggio da privato a pubblico. La difficoltà più grande in questo progetto è stata proprio convertire un edificio privato in uno pubblico. La villa in particolare si porta dietro una serie di incongrenze costruttive e barriere architettoniche che ho eliminato per consentire la fruizione degli spazi senza limitazioni. Per gli spazi interni è stata fatta una ricerca dei requisiti minimi che una stazione dell'arma di medie dimensioni debba avere. Vorrei dimostrare con questo progetto che è possibile recuperare un edificio ormai inutilizzato con pochi interventi mirati e la scelta di trasformare proprio questo edificio con una storia particolare alle spalle ha assunto un po' una valenza simbolica; dopo le strasformazioni questo edificio diventa esattamente il suo opposto volendo sottolineare il suo legame con la legalità.
客服
消息
收藏
下载
最近


















