查看完整案例


收藏

下载

翻译
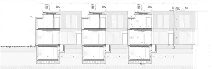
L’intervento si innesta in un processo di rigenerazione urbana di un interno corte in un tipico isolato della periferia Sud-Est di Milano. Il contesto è un tessuto urbano misto, composto da edifici residenziali a cortina con affaccio su strada e da modeste attività produttive presenti all’interno dell’isolato con affaccio interno. Dal secondo dopo guerra in poi un costante processo di trasformazione urbana, costruito per addizioni e sostituzioni nel tempo, ha portato con questo intervento alla totale occupazione ad uso residenziale dell’intero isolato. Il lotto oggetto dell’intervento ha una forma trapezoidale lunga 30 metri e larga 11 metri, con un’altezza edificabile di 6.80 metri. L'edificio esistente era un'officina di riparazione di automobili risalente al 1940, un edificio in cemento a un piano con tetto a volta, demolita per bonificare il terreno contaminato su cui si trovava. Oltre ai limiti imposti dalla dimensione del lotto, anche i limiti negli affacci sono stati determinanti nelle scelte progettuali.
1. Pieni e vuoti
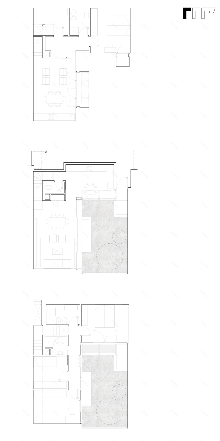
Abbiamo intrapreso questo incarico con un approccio più ampio, sia in termini spaziali che in termini temporali, per arrivare alla necessaria soluzione progettuale che risponde al trinomio: regole - tecnica - committente. Impiegando un metodo deduttivo dal generale al particolare abbiamo analizzato l’alternanza dei pieni e vuoti a partire dall’isolato urbano fino ad arrivare alle singole unità residenziali che costituiscono il progetto. Quello che abbiamo ottenuto è una matrice compositiva che ci ha permesso non solo di progettare un edificio funzionale e solido - secondo i principi di utilitas, firmitas e venustas di Vitruviana memoria - ma anche di farlo dialogare a più scale urbane, collegandole tra loro. Abbiamo identificato un vuoto architettonico generatore, il patio, diventato la regola compositiva di tutto il progetto nonché il suo elemento caratterizzante. Recuperando un concetto che viene dell’antichità classica, l’atrium, ovvero la parte più importante della domus romana, dove venivano accolti gli ospiti e verso il quale affacciavano gli ambienti più pubblici della casa, abbiamo attribuito un patio ad ogni unità. Intorno ad esso abbiamo dato un’articolazione e una misura a tutti gli spazi della casa. Per necessità di spazio e per esigenze che rispondono a modelli abitativi contemporanei, la parte più pubblica della casa si trova al piano terra intorno al patio e la parte più privata è stata collocata al piano superiore della casa, in connessione tramite una scala a giorno. L’edificio è costituito da tre unità abitative indipendenti con una pianta ad “L” giustapposte, di cui le prime due esattamente identiche e l’ultima di circa un terzo più grande, a chiudere il lotto. Nei due piani fuori terra si trovano rispettivamente la zona giorno e la zona notte, mentre al piano interrato ci sono degli spazi accessori attrezzati predisposti per essere personalizzati dagli abitanti a seconda dell’utilizzo desiderato.
2. Luci e ombre
Abbiamo modulato le aperture con il preciso intento di creare un costante dialogo tra luce e architettura, per far risaltare la natura plastica dei volumi puri e delle superfici bianche in esterno, per garantire la permeabilità visiva e fisica con l’esterno negli ambienti con affaccio diretto e per valorizzare e dare un comfort percettivo anche agli spazi interni senza un affaccio diretto verso l’esterno. E così il corridoio sul fronte nord, che funge da accesso alle singole unità, viene illuminato con una luce naturale soffusa mediante dei lucernari posti in corrispondenza degli ingressi di ciascuna casa. Questi pozzi di luce animano un fronte interno altrimenti cieco e rendono il percorso di accesso alle case dinamico e vibrante, come momento anticipatore dell’ingresso in casa che avviene attraverso il patio. I fronti a ovest delle case, all’apparenza completamente ciechi, mediante un arretramento della parte superiore, celano finestre a nastro che accolgono e filtrano il sole pomeridiano nelle camere del piano superiore. I piani interrati hanno ampie bocche di lupo che attingono luce zenitale dal patio creando ambienti intimi e contemplativi, pervasi da un’atmosfera di fresca penombra. Le facciate sud-est sono pensate in totale contrapposizione agli altri fronti, aperte e leggere esse sono costituite da una pelle in legno e vetro con un alternanza di aperture a tutta altezza vetrate, pannelli ciechi ed apribili a seconda degli spazi che servono. E’ su questi fronti che la natura introversa dell’edificio cambia, diventando ariosa ed espansiva verso lo spazio esterno, tramite la membrana architettonica della facciata.
3. Natura e artificio
Il patio ritorna, non più solo come vuoto progettuale e organizzazione spaziale della casa, ma come estensione fatta di natura dell’ambiente domestico. Si tratta di una natura conclusa tra muri, ma sconfinata verso il basso e l’alto. Infatti i 30 metri quadrati di patio non sono terra di riporto in vasca , bensì un vero giardino a cielo aperto, che può ospitare essenze vegetali rampicanti, arbusti perenni e alberi di medio fusto. Il comfort ambientale e il benessere psicofisico di chi abita l’architettura - inclusi i suoi fruitori visivi - sono una cosa sola. Ne abbiamo fatto uno dei nostri principi guida ed è per questo che perfezioniamo le scelte prettamente architettoniche con un attento bilanciamento tra vegetazione e costruito, con uno studio attento dei dettagli costruttivi dell’involucro, mediante l’uso di tecnologie avanzate in termini di controllo e approvvigionamento dell’energia, e sopra ogni cosa, attraverso una visione unitaria ed emotiva dell’ambiente costruito, pensato da persone per altre persone.
4. Sostenibilità
Ognuna delle 3 unità abitative è completamente autonoma tanto dal punto di vista funzionale quanto energetico. Per la produzione dell'energia termica e frigorifera relativa alla climatizzazione e per la produzione di acqua calda a uso sanitario sono state previste n. 3 pompe di calore direttamente accoppiate ad altrettanti recuperatori di calore preposti alla ventilazione meccanica centralizzata di ogni alloggio controllati da un'unica apparecchiatura elettronica in grado di gestire tanto il bilancio energetico quanto la regolazione della portata identificando in ogni momento le migliori condizioni di funzionamento (dai tempi di inserimenti fino al by-pass estivo). L'elettronica della pompa di calore gestisce anche l'utilizzo ottimizzato della corrente generata dall'impianto fotovoltaico.
Per la realizzazione dei 3 campi fotovoltaici sono stati previsti dei pannelli la cui produzione di celle fotovoltaiche cristalline avviene con alto rendimento, particolarmente conveniente per il basso consumo di energia e materiale. I moduli solari adottati presentano una struttura stratificata e tra le lastre di vetro è presente un materiale di tenuta trasparente capace di fissare le singole celle incapsulandole e proteggendole dagli agenti atmosferici.
客服
消息
收藏
下载
最近































