查看完整案例

收藏

下载

翻译
Its facade has few, but precise elements, such as the entrance door very well marked by a portico that lights up at night and a low window that composes next to the large volumes. The highlight is the vertical garden with a variety of plants that add to the composition of the clean facade.
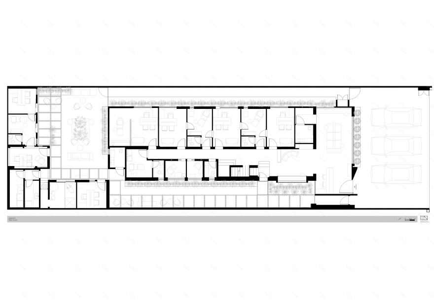
With minimalist interior and delicate details present, all spaces contribute to create an affective atmosphere, such as the granilite floor, doors with rosic Formica designed exclusively for the project and the harmonic compositions of the furniture with light fabrics in the gray palette, making permanence and every special moment. Large openings allow plenty of natural light in the clinics, serving as a private garden, in functional, dynamic and sophisticated spaces - works of art developed exclusively for the clinic contribute to this.
The SPA has a more intimate atmosphere, with more sober furniture and attention to detail. It is through the precise openings that games of light and shadow are possible and transform the experience into something unique.
With a lot of nature present in planters on the floor, walls and trees integrated with the art of a great colorful graffiti, the space of the Villa appears, an open multipurpose environment with loose furniture, with a toy library and service rooms. Graffiti takes the lead and makes “street art” a unique, cheerful and “instagramable” element. There, moments of sharing are possible, celebrating life as it deserves, in its fullness.
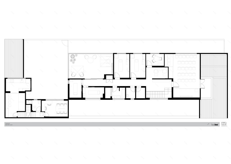
In short, the project as a whole has a minimalist base, with few elements and great plans, but without leaving aside much personality, colors and elegance, making this a unique and special project with a welcoming atmosphere.
客服
消息
收藏
下载
最近



























